← East Cambridgeshire District Council

Status

Pending Consideration House extension
Received
Last month
New homes
0

Full proposal

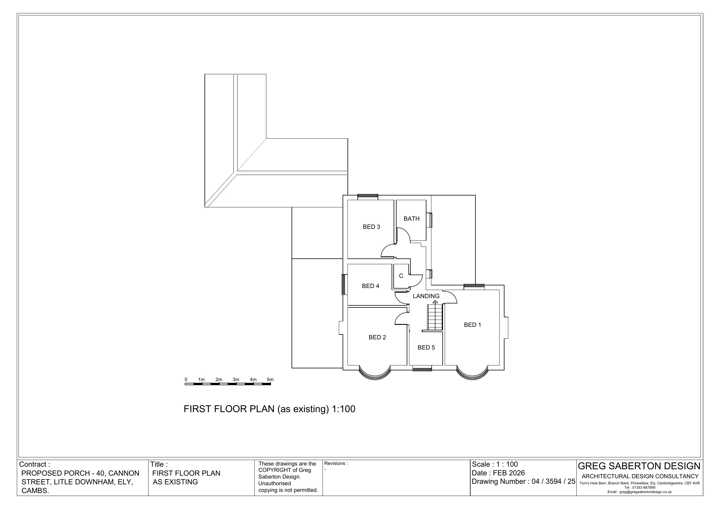
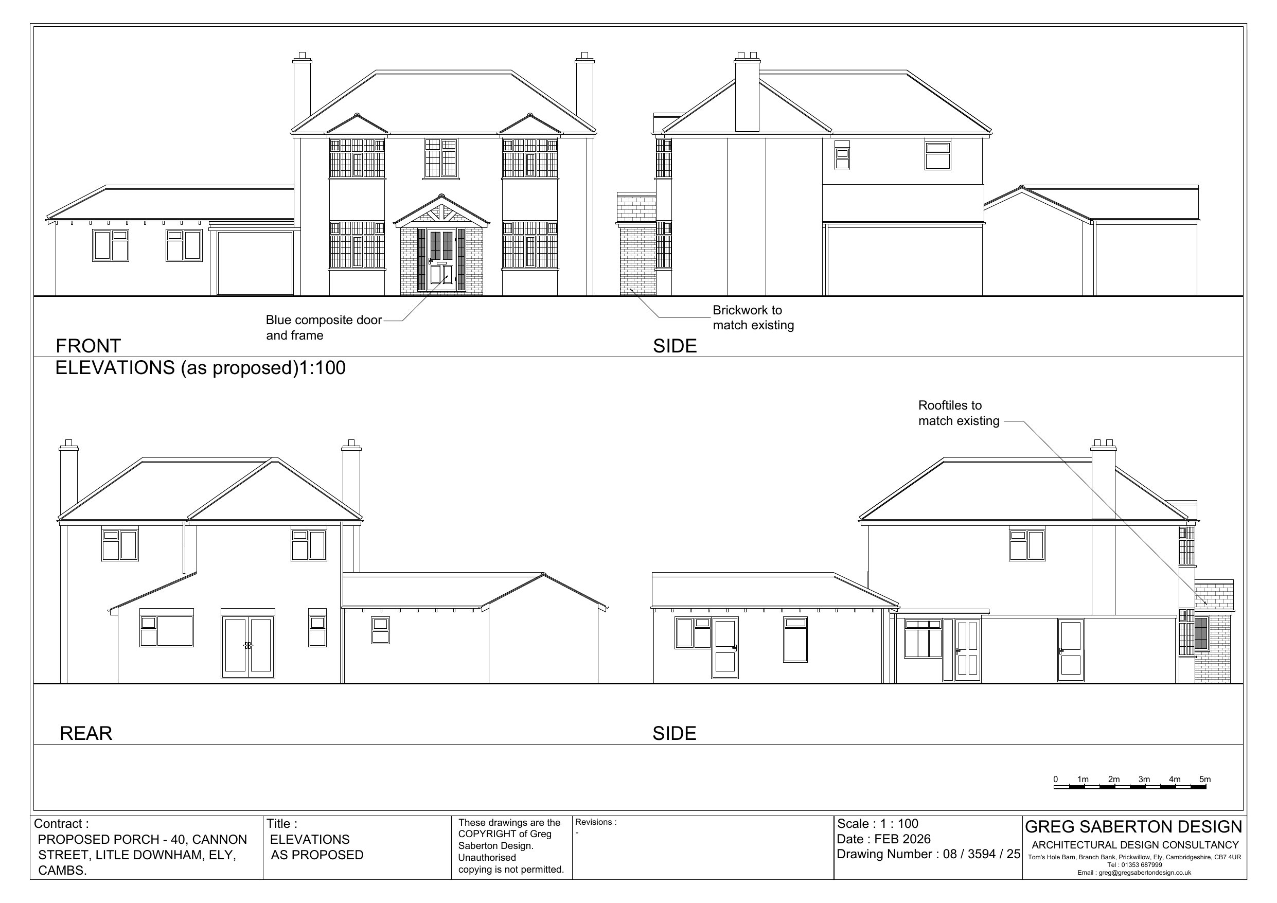
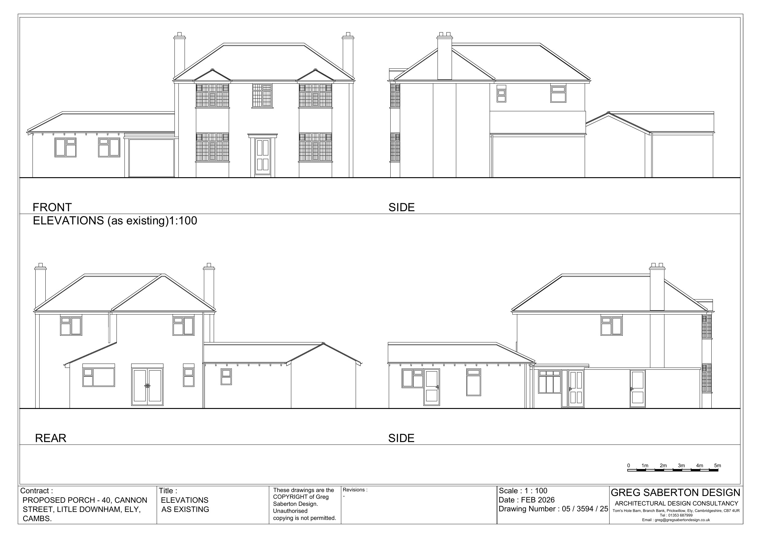
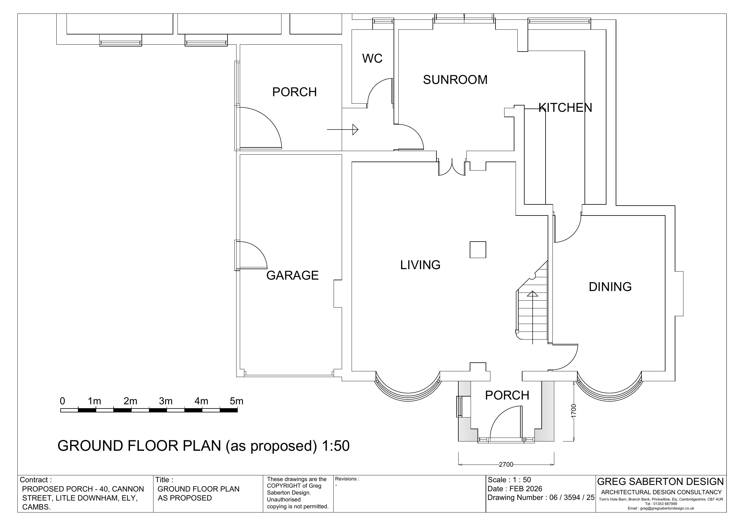
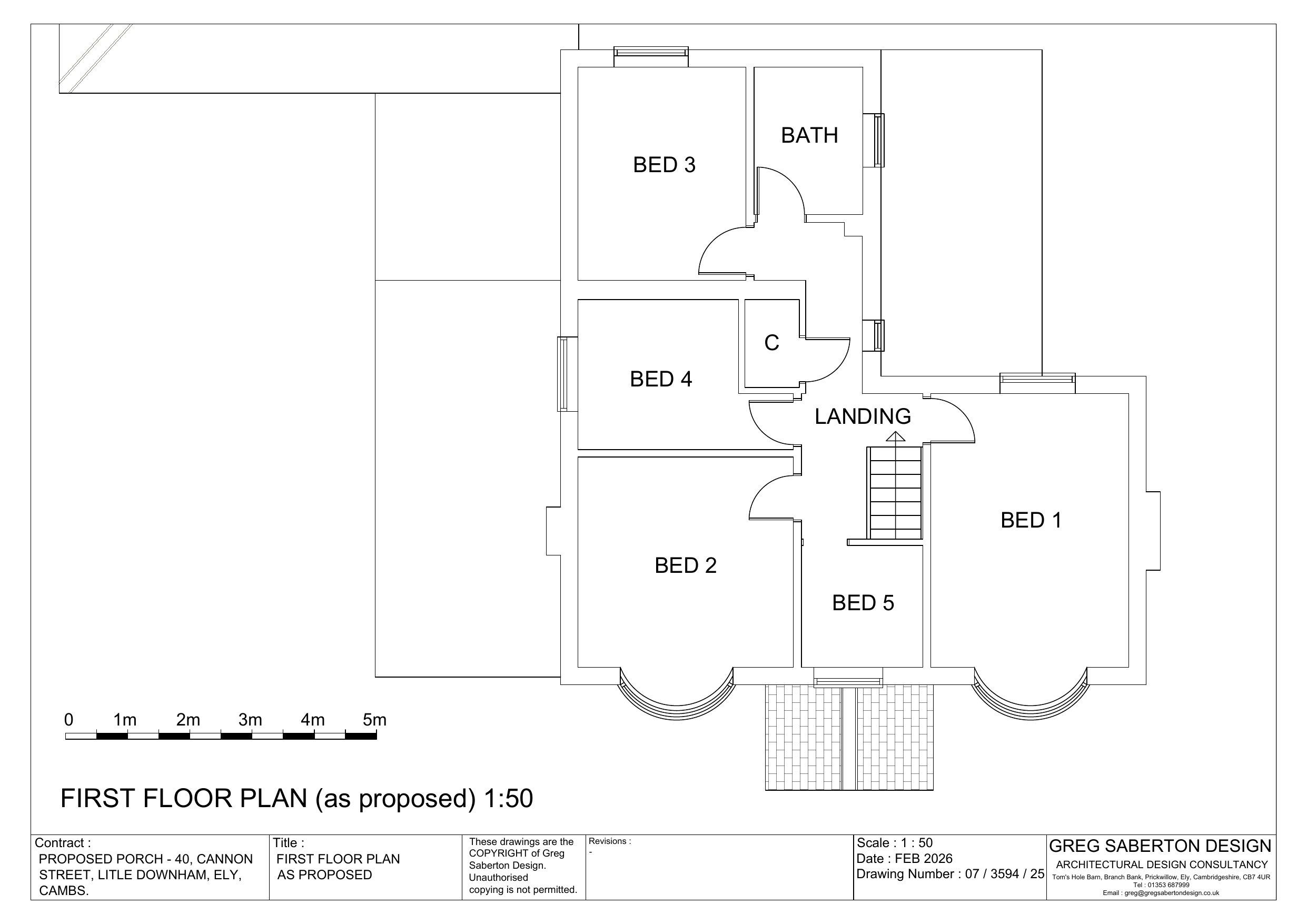
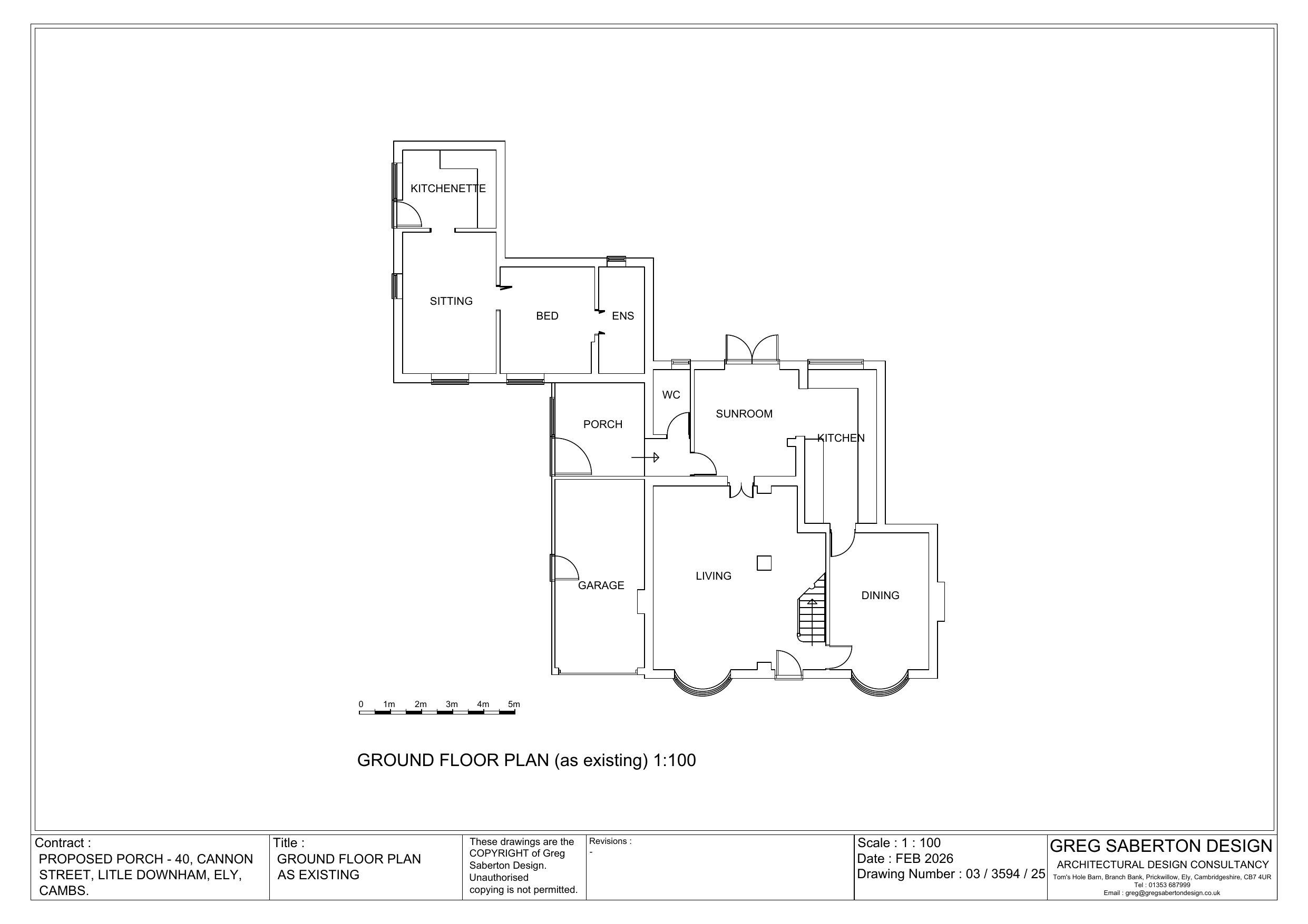
Porch to front of existing dwelling

Have your say

Your comment matters. Councils must consider every representation that raises material planning considerations.

Write a comment