← All councils

Recent applications

The most recent records we hold for this council (up to 200).

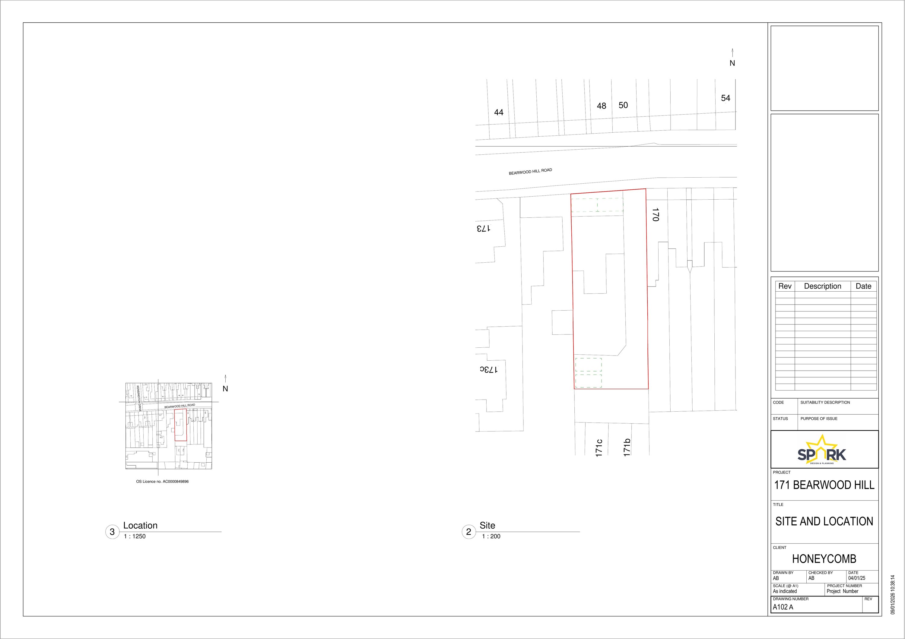
Erection of a single storey rear extension.

Type House extension
Status Live
Received 30 Jan 2026

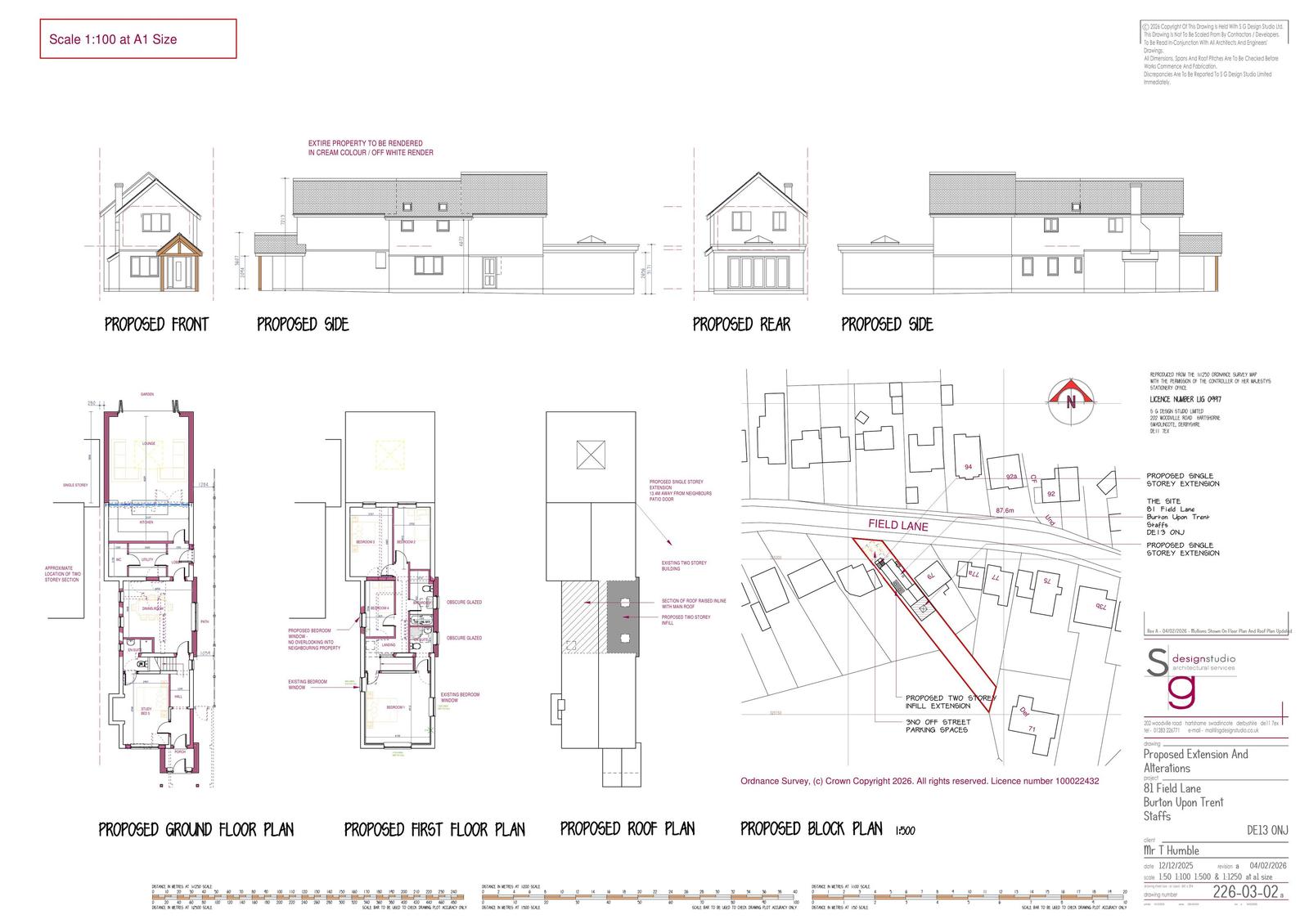
Erection of a part two storey part first floor front/side extension, single storey side extension, raising of ridge height, installation of ...

Type House extension
Status Live
Received 23 Jan 2026
Plan thumbnail

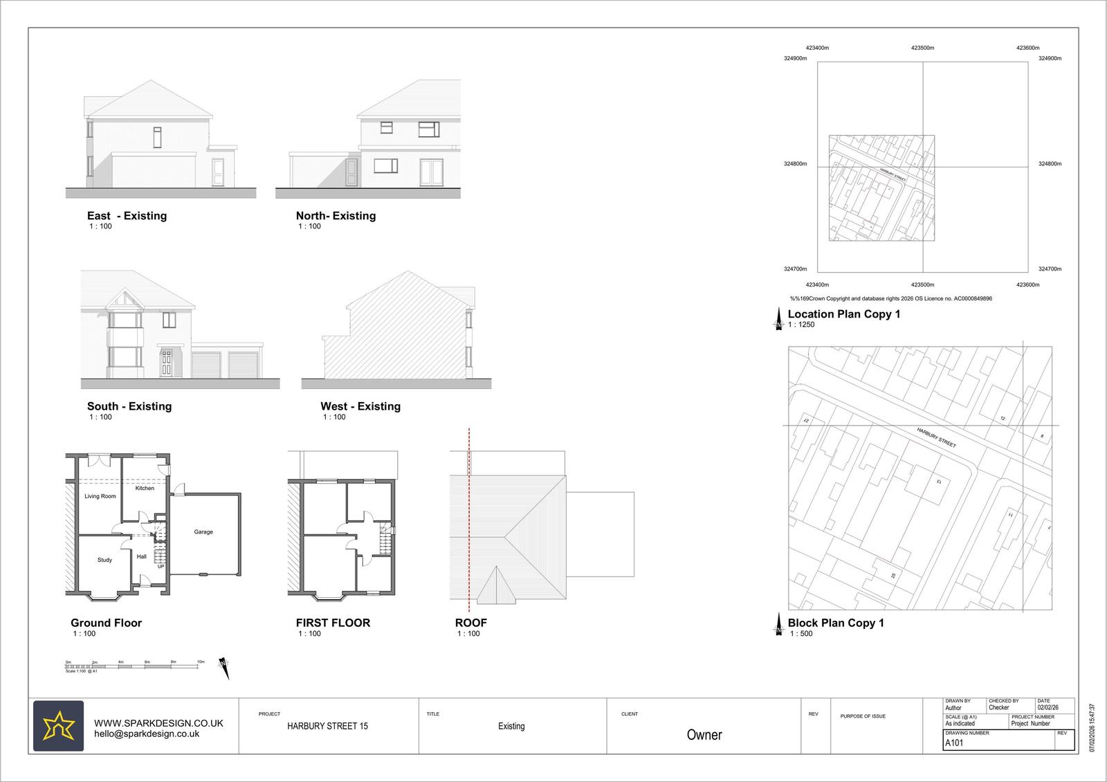
Erection of a part two storey part single storey rear extension with Juliet balconies, installation of first floor side windows and solar pa...

Type House extension
Status Live
Received 21 Jan 2026
Plan thumbnail

Demolition of vacant building to facilitate the erection of 5 residential dwellings

Type New housing
Status Live
Received 16 Jan 2026
Plan thumbnail

Change of use to residential curtilage and retention of hardstanding.

Type Change of use
Status Live
Received 16 Jan 2026
Plan thumbnail

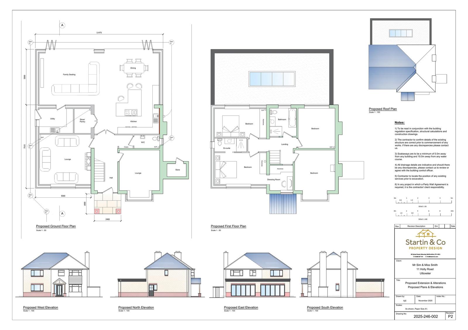
Erection of a single storey rear extension, two storey side extension including dormers to front & rear elevations, installation of canopy t...

Type House extension
Status Live
Received 12 Jan 2026
Plan thumbnail

Erection of a single storey side and rear extension with dual pitched roof and parapet wall and installation of roof lights

Type House extension
Status Live
Received 12 Jan 2026
Plan thumbnail

Erection of a single storey extension with rooflights to the south elevation and open porch to the north elevation, installation of roofligh...

Type House extension
Status Live
Received 12 Jan 2026
Plan thumbnail

Listed Building Application for the erection of a single storey extension with rooflights to the south elevation and open porch to the north...

Type Listed building
Status Live
Received 12 Jan 2026
Plan thumbnail

Erection of a first floor side extension and storm porch, installation of dormer windows to rear elevation, formation of brick plinth and al...

Type House extension
Status Live
Received 09 Jan 2026
Plan thumbnail

Change of use from a dwelling house (C3) to a house in multiple occupation (HMO) (C4) to accommodate up to 4 residents and the erection of a...

Type Change of use
Status Live
Received 07 Jan 2026
Plan thumbnail

Change of use of agricultural field to a secure dog walking field (Class Sui Generis), erection of a 1.8 metre high fence and formation of c...

Type Change of use
Status Live
Received 07 Jan 2026
Plan thumbnail

Erection of a first floor side extension, single storey front extension, first floor rear extension and erection of front porch, alterations...

Type House extension
Status Live
Received 06 Jan 2026
Plan thumbnail

Change of use of stable block to form ancillary accommodation, erection of link extension to dwellinghouse and associated internal and exter...

Type Change of use
Status Live
Received 06 Jan 2026
Plan thumbnail

Demolition of single storey garage to facilitate the erection of a two storey side extension, single storey rear extension and open porch to...

Type House extension
Status Live
Received 06 Jan 2026
Plan thumbnail

Erection of a part two storey part single storey rear extension and installation of a first floor side window

Type House extension
Status Live
Received 02 Jan 2026
Plan thumbnail

Change of use from a dwelling house (Class C3) to a residential children's home (Class C2) to accommodate ONE child aged between 5-17 years ...

Type Change of use
Status Live
Received 14 Jan 2026
Plan thumbnail

Permission in Principle application for the erection of up to 4 self-build dwellings

Type New housing
Status Live
Received Last month
Plan thumbnail

Demolition of existing garage to facilitate the erection of a single storey side/rear extension with rooflights and a chimney to the North E...

Type House extension
Status Live
Received 15 Jan 2026
Plan thumbnail

Erection of a two storey side, single storey rear extension with roof lantern and demolition of existing garage to facilitate the erection o...

Type House extension
Status Live
Received 15 Jan 2026
Plan thumbnail

Permission in principle application for demolition of garage to facilitate the erection of 2 dwellinghouses

Type New housing
Status Live
Received 15 Jan 2026
Plan thumbnail

Permission in principle application for the demolition of garages to facilitate the erection of two dwelling houses

Type New housing
Status Live
Received 15 Jan 2026
Plan thumbnail

Permission in principle application for the demolition of garages to facilitate the erection of up to 2 dwellinghouses

Type New housing
Status Live
Received 13 Jan 2026
Plan thumbnail

Erection of a single storey rear extension with roof lantern

Type House extension
Status Live
Received 08 Jan 2026
Plan thumbnail

Demolition of existing garage to facilitate the erection of a two storey side extension

Type House extension
Status Live
Received Last month
Plan thumbnail

Erection of single storey extension to front elevation including render

Type House extension
Status Live
Received Last month
Plan thumbnail

Change of use from Use Class C3 (Dwellinghouse) to Use Class F1 (Learning and non-residential institutions).

Type Change of use
Status Live
Received 03 Feb 2026
Plan thumbnail

Erection of a single-storey side extension.

Type House extension
Status Live
Received 03 Feb 2026
Plan thumbnail

Raising of ridge height to facilitate loft conversion including installation of roof lights, Erection of part two storey and part single sto...

Type House extension
Status Live
Received 02 Feb 2026

Remodelling of existing dwelling including alterations to existing rear extension to form flat roof with installation of roof lantern, alter...

Type House extension
Status Live
Received Last month

Erection of a single storey side extension with flue, partial demolition of existing single storey side projection to form bay window and al...

Type House extension
Status Live
Received Last month

Appeal against the refusal for the retrospective consent for change of use to a Gypsy/Traveller site, proposed works to provide 3 no. family...

Type Change of use
Status Pending
Received Date not available

Fast Track Appeal against the refusal of planning permission for the erection of a detached double garage with first floor to be used as a h...

Type Other
Status Pending
Received Date not available

Appeal against the refusal of planning permission for the erection of a block of 3 terraced dwellings and 1 detached dwelling

Type Other
Status Pending
Received Date not available

Appeal by Miss Georgina Common against the refusal of planning permission for the erection of a detached dwelling and construction of vehicu...

Type New housing
Status Pending
Received Date not available

Against a refusal for erection of 9 dwellings and associated garaging and parking (including local needs housing and first homes) and constr...

Type New housing
Status Pending
Received Date not available

Erection of an extension to existing garage to form a dwelling with associated access and installation of a package treatment plant

Type New housing
Status Pending
Received Date not available

Outline application for up to 135 dwellings including means of access

Type New housing
Status Pending
Received Date not available

Demolition of existing dwelling and farm buildings and erection of 5 dwellings including walling, landscaping and associated parking

Type New housing
Status Pending
Received Date not available

Appeal against refusal of planning permission for the erection of three detached dwellings and a detached garage to Plot 3 and construction ...

Type Other
Status Pending
Received Date not available

Appeal against the refusal of planning permission for the erection of a detached dwelling and detached double garage and construction of veh...

Type Other
Status Pending
Received Date not available

Appeal against the refusal of planning permission for the erection of 8 dwellings, detached car port building, including associated landscap...

Type New housing
Status Pending
Received Date not available

Erection of a new single detached dwelling, cycle store and associated parking

Type New housing
Status Pending
Received Date not available

Appeal against the refusal of outline application for up to 9 dwellings including details of access

Type Other
Status Pending
Received Date not available

Outline application for residential development including details of access

Type New housing
Status Pending
Received Date not available

Appeal against the refusal of outline application for residential development for the erection of three dwellings with all matters reserved

Type Other
Status Pending
Received Date not available

Erection of a single storey rear extension

Type House extension
Status Pending
Received Date not available

Appeal against an outline application for the erection of up to 9 dwellings including details of access

Type Other
Status Pending
Received Date not available

Appeal against the refusal of planning permission for the conversion of existing barn to a dwelling

Type Other
Status Pending
Received Date not available

Appeal against the refusal of planning permission for the conversion of existing detached garage to form 2 residential units (maisonettes) i...

Type Change of use
Status Pending
Received Date not available

Change of use of existing garage/games room building to form detached dwelling

Type Change of use
Status Pending
Received Date not available

Erection of a detached dwelling.and construction of vehicular access

Type New housing
Status Pending
Received Date not available

Appeal against the refusal of planning permission for the erection of 8 dwellings, comprising of 3 pairs of semi-detached dwellings and 2 de...

Type New housing
Status Pending
Received Date not available

Demolition of existing detached garage/office and erection of a detached dwelling

Type New housing
Status Pending
Received Date not available

Appeal against the refusal of planning permission for the change of use including the erection of a single storey side extension of existing...

Type Change of use
Status Pending
Received Date not available

Erection of a replacement dwelling and detached garage and installation of package treatment plant

Type New housing
Status Pending
Received Date not available

Conversion and alterations of former stables to create single storey dwelling including alterations to roof

Type Change of use
Status Pending
Received Date not available

Fasttrack appeal against the refusal of planning permission for the extension and alteration to existing first floor front dormer

Type House extension
Status Pending
Received Date not available

Appeal against non-determination relating to the erection of two detached dwellings and associated vehicular access

Type New housing
Status Pending
Received Date not available

Appeal against the refusal of planning permission for the erection of a first floor side extension and single storey link extension between ...

Type House extension
Status Pending
Received Date not available

Fasttrack appeal against the refusal of planning permission for the erection of a two storey front and side extension and a two storey detac...

Type House extension
Status Pending
Received Date not available

Fasttrack appeal against the refusal of planning permission for the erection of a first floor rear extension

Type House extension
Status Pending
Received Date not available

Erection of 128 no. affordable dwellings and construction of vehicular access (Description and Plans Revised)

Type New housing
Status Pending
Received Date not available

Appeal against the refusal of planning permission for the change of use of Public House to form 3 no. dwellinghouses (to include repair and ...

Type Change of use
Status Pending
Received Date not available

Change of use of land and erection of two Shepherd huts for tourist accommodation

Type Change of use
Status Pending
Received Date not available

Appeal against the refusal of planning permission for the continued use of former annexe as separate dwelling including new window to side

Type Change of use
Status Pending
Received Date not available

Appeal against the refusal of planning permission for the erection of 2 detached dwellings and widening of existing highway and formation of...

Type New housing
Status Pending
Received Date not available

Outline application for the erection of an agricultural workers dwelling including details of means of access

Type Agricultural
Status Pending
Received Date not available

Erection of a detached dwelling and associated parking (Revised Scheme)

Type New housing
Status Pending
Received Date not available

Appeal against the refusal of planning permission for the conversion of existing dwellinghouse into 3 flats

Type Other
Status Pending
Received Date not available

Fast Track Appeal against the refusal of planning permission for the erection of part single storey side and two storey side and rear extens...

Type House extension
Status Pending
Received Date not available

Appeal against the refusal of planning permission for the conversion and alterations to existing workshops to form 2 no residential dwelling...

Type New housing
Status Pending
Received Date not available

Fast Track Appeal against the refusal of planning permission for the erection of a two storey front extension

Type House extension
Status Pending
Received Date not available

8 Arden Road, Barton under Needwood, Burton-on-Trent, DE13 8LD erection of a single storey detached dwelling

Type New housing
Status Pending
Received Date not available

Appeal against the refusal of planning permission for modifications to existing dwelling to create a two bedroom flat with vehicular access ...

Type New housing
Status Pending
Received Date not available

Fasttrack appeal against the refusal of planning permission for the demolition of garage/storage & utility area to facilitate the erection o...

Type House extension
Status Pending
Received Date not available

Appeal against the non-determination of planning permission for the erection of two three-storey semi-detached buildings to form four dwelli...

Type Other
Status Pending
Received Date not available

Appeal by Mr Luke Aitkenhead. Site Address: Land off School House Lane, Abbotts Bromley, Staffordshire. Erection of a steel framed agricultu...

Type Agricultural
Status Pending
Received Date not available

Change of use from dwelling (Class C3) to 2-bed home for children in care (Class C2)

Type Change of use
Status Pending
Received Date not available

Appeal against the refusal of planning permission for the conversion and alteration of existing building to form 1no. dwellinghouse

Type Other
Status Pending
Received Date not available

Erection of a single storey rear extension and replacement of existing study room roof with a flat roof with lantern roof light

Type House extension
Status Pending
Received Date not available

Fast Track Appeal by Mr T Mohammad against the refusal of planning permission relating to the raising of ridge height to facilitate a loft c...

Type House extension
Status Pending
Received Date not available

Conversion of first floor to create 4 apartments.

Type Change of use
Status Pending
Received Date not available

Erection of a single storey rear extension and alterations to garage and porch to form pitched roofs.

Type House extension
Status Pending
Received Date not available

Demolition of commercial works to facilitate the erection of 8 No. dwellinghouses including landscaping and parking.

Type New housing
Status Pending
Received Date not available

Appeal against the refusal of planning permission for the change of use from a single residential dwelling (Use Class C3 (a)) to use as a ch...

Type Change of use
Status Pending
Received Date not available