← East Suffolk Council

Status

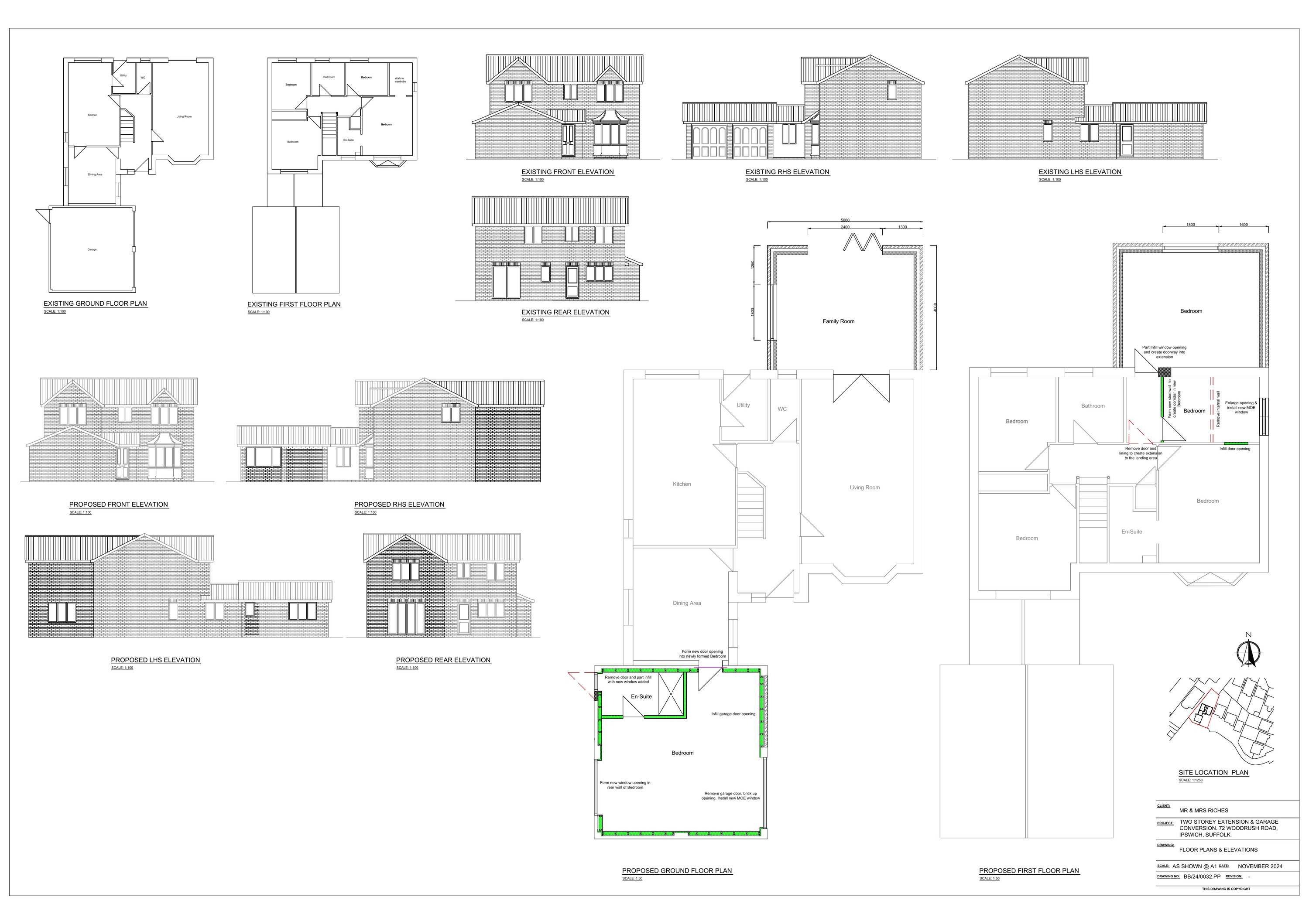
Permitted House extension
Received
19 Dec 2024
New homes
0

Full proposal

Rear two storey extension with new enlarged window at first floor. Garage conversion (permitted development)

Documents

Application Form
Archived · Original link
Decision Notice
Archived · Original link
Revised Drawing
Archived · Original link
Consultee Comment
Archived · Original link
Consultee Comment
Archived · Original link
Neighbour Notification List
Archived · Original link
Site Plan
Archived · Original link
Officer / Committee Report
Archived · Original link
Consultee Comment
Archived · Original link
Consultee Comment
Archived · Original link

Have your say

Your comment matters. Councils must consider every representation that raises material planning considerations.

Write a comment