← East Suffolk Council

Status

Permitted Other
Received
22 Aug 2025
New homes
0

Summary

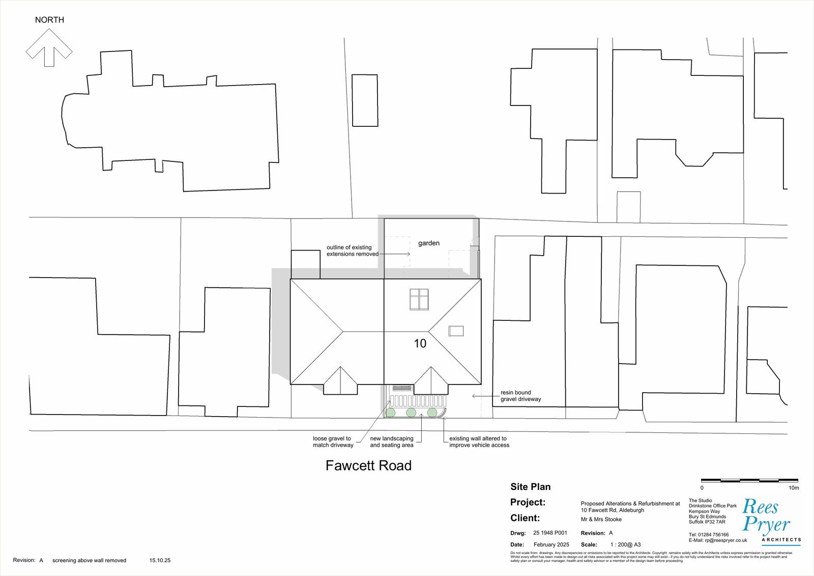
Alterations and refurbishment including removal of single-storey extension, chimney and part rear garage demolition.

Full proposal

Alteration and refurbishment to the dwelling including the removal of single storey extension and chimney, part demolition of rear projecting garage, new windows and doors and other related works.

Documents

ALDEBURGH TOWN COUNCIL
Consultee Comment
Not yet archived · Original link
APPLICATION FORM REDACTED
Application Form
Not yet archived · Original link
APPROVE - FULL APPLICATION
Decision Notice
Not yet archived · Original link
BODDY & WRIGHT - 5 FAWCETT ROAD
Public Comment
Not yet archived · Original link
EXISTING ELEVATIONS
Drawing
Not yet archived · Original link
EXISTING FLOOR PLANS
Drawing
Not yet archived · Original link
INFO SHEET
Neighbour Notification List
Not yet archived · Original link
Officer / Committee Report
Officer / Committee Report
Not yet archived · Original link
PLANNING STATEMENT
Supporting Documents
Not yet archived · Original link
PROPOSED BLOCK PLAN
Drawing
Not yet archived · Original link
PROPOSED ELEVATIONS
Revised Drawing
Not yet archived · Original link
Revised Drawing
Archived · Original link
Site Plan
Archived · Original link
Revised Drawing
Archived · Original link
SUPERSEDED PROPOSED BLOCK PLAN
Drawing
Not yet archived · Original link
SUPERSEDED PROPOSED ELEVATIONS
Revised Drawing
Not yet archived · Original link
SUPERSEDED PROPOSED ELEVATIONS AND RENDERINGS
Drawing
Not yet archived · Original link
WRIGHT-8 FAWCETT ROAD
Public Comment
Not yet archived · Original link

Have your say

Your comment matters. Councils must consider every representation that raises material planning considerations.

Write a comment