← East Suffolk Council

Status

Permitted Change of use
Received
06 Oct 2025
New homes
0

Summary

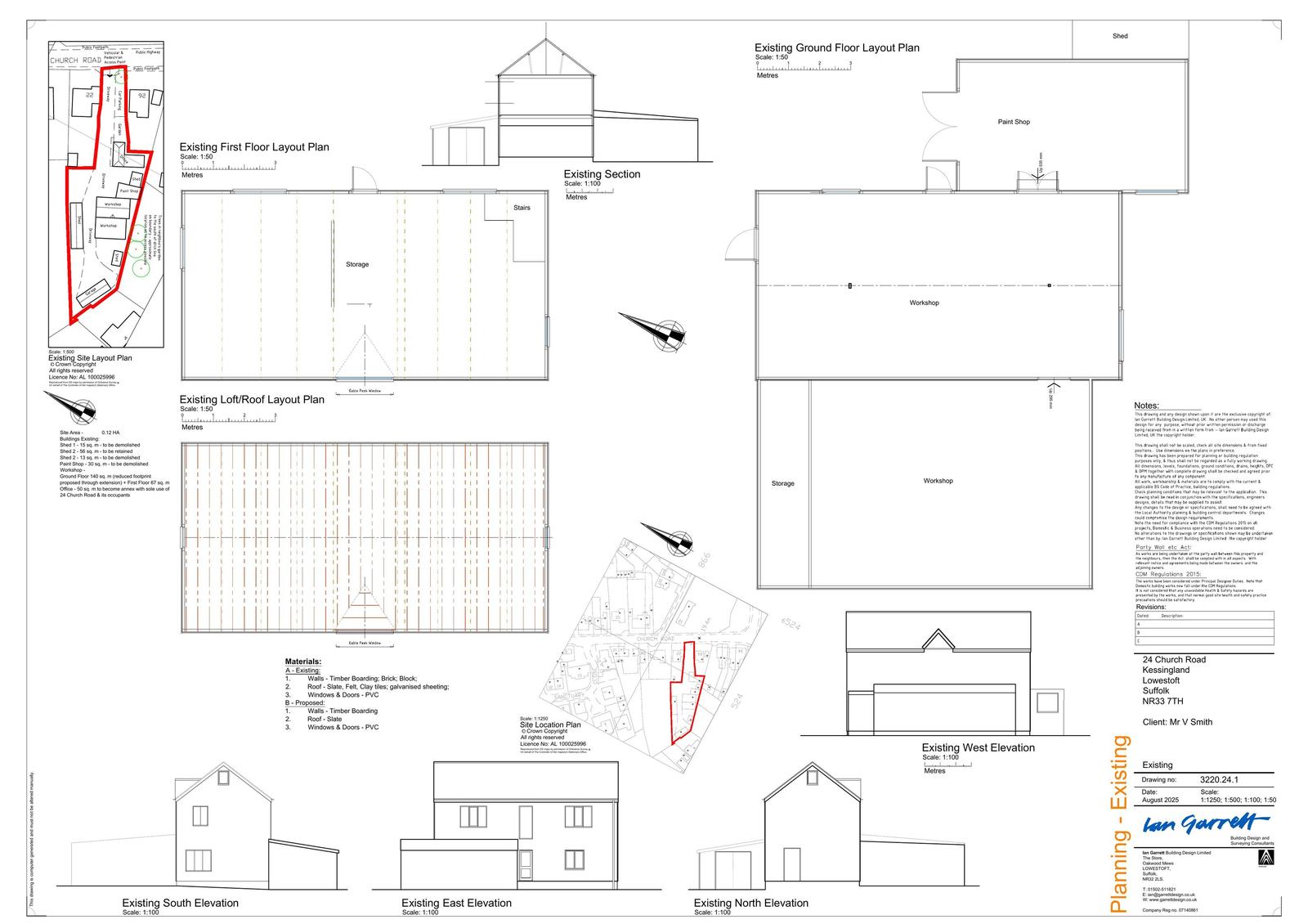
Change of use of workshop to a dwelling, office to residential annex; demolition and erection of cart shed.

Full proposal

Change of Use of workshop to C3 Dwellinghouse and office to residential annex, demolition of existing shed and paint shop and erection of cart shed

Documents

APPLICATION FORM
Application Form
Not yet archived · Original link
APPROVE - FULL APPLICATION
Decision Notice
Not yet archived · Original link
DESIGN & ACCESS STATEMENT
Supporting Documents
Not yet archived · Original link
ENVIROSEARCH
Supporting Documents
Not yet archived · Original link
ESC ARBORICULTURE AND LANDSCAPE
Consultee Comment
Not yet archived · Original link
ESC ECOLOGY
Consultee Comment
Not yet archived · Original link
ESC ECOLOGY
Consultee Comment
Not yet archived · Original link
ESC ENVIRONMENTAL PROTECTION
Consultee Comment
Not yet archived · Original link
EXISTING & PROPOSED ANNEX
Drawing
Not yet archived · Original link
INFO SHEET
Neighbour Notification List
Not yet archived · Original link
KESSINGLAND PARISH COUNCIL
Consultee Comment
Not yet archived · Original link
LAND CONTAMINATION QUESTIONNAIRE
Supporting Documents
Not yet archived · Original link
Officer / Committee Report
Officer / Committee Report
Not yet archived · Original link
PROPOSED BLOCK PLAN, ELEVATIONS, FLOOR PLAN, SECTION
Drawing
Not yet archived · Original link
SCC FIRE AND RESCUE SERVICE
Consultee Comment
Not yet archived · Original link
SCC FIRE AND RESCUE SERVICE GENERIC SPRINKLER LETTER
Consultee Comment
Not yet archived · Original link
SCC LOCAL HIGHWAY AUTHORITY
Consultee Comment
Not yet archived · Original link
SUPERSEDED - EXISTING & PROPOSED ANNEX
Drawing
Not yet archived · Original link
SUPERSEDED - PROPOSED BLOCK PLAN, ELEVATIONS, FLOOR PLAN, SECTION
Drawing
Not yet archived · Original link

Have your say

Your comment matters. Councils must consider every representation that raises material planning considerations.

Write a comment