← East Suffolk Council

Status

Awaiting decision New housing
Received
09 Dec 2025
New homes
1

Full proposal

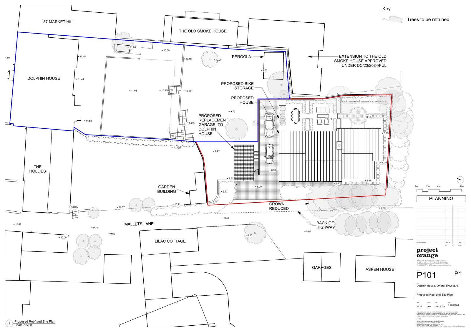
A replacement single garage to Dolphin House and below it, to the south, and parallel to Mallets Lane, a new single storey dwelling with 2 tandem parking spaces.

Documents

2216 DRAWING ISSUE SHEET
Supporting Documents
Not yet archived · Original link
APPLICATION FORM REDACTED
Application Form
Not yet archived · Original link
BIODIVERSITY NET GAIN (STATUTORY METRIC) DESIGN STAGE REPORT
Biodiversity Net Gain
Not yet archived · Original link
BIODIVERSITY NET GAIN ASSESSMENT
Biodiversity Net Gain
Not yet archived · Original link
BIODIVERSITY NET GAIN CALCULATION METRIC
Biodiversity Net Gain
Not yet archived · Original link
CONTAMINATED LAND REPORT
Supporting Documents
Not yet archived · Original link
DESIGN AND ACCESS STATEMENT
Supporting Documents
Not yet archived · Original link
DEVELOPMENT MANAGEMENT DOMESTIC VEHICULAR ACCESS LAYOUTNO EXISTING FOOTWAY OR KE
Drawing
Not yet archived · Original link
DRIVEWAY MATERIALS SPECIFICATION
Supporting Documents
Not yet archived · Original link
ECOLOGY REPORT
Supporting Documents
Not yet archived · Original link
ESC DESIGN AND HERITAGE
Consultee Comment
Not yet archived · Original link
ESC ECOLOGY
Consultee Comment
Not yet archived · Original link
ESC ENVIRONMENTAL PROTECTION
Consultee Comment
Not yet archived · Original link
EXISTING ELEVATIONS
Drawing
Not yet archived · Original link
EXISTING GROUND FLOOR PLAN
Drawing
Not yet archived · Original link
EXISTING ROOF PLAN
Drawing
Not yet archived · Original link
Drawing
Archived · Original link
EXISTING SITE SECTION
Drawing
Not yet archived · Original link
HERITAGE IMPACT ASSESSMENT
Supporting Documents
Not yet archived · Original link
HIGHWAY ACCESS STATEMENT INGENT
Supporting Documents
Not yet archived · Original link
INFO SHEET
Neighbour Notification List
Not yet archived · Original link
LAND-CONTAMINATION-QUESTIONNAIRE
Supporting Documents
Not yet archived · Original link
MR EDWARD PLATT-THE HOLLIES 85 MARKET HILL ORFORD WOODBRIDGE SUFFOLK(FULL)
Public Comment
Not yet archived · Original link
ORFORD PARISH COUNCIL
Consultee Comment
Not yet archived · Original link
PLANTING SCHEDULE
Supporting Documents
Not yet archived · Original link
PROPOSED GROUND FLOOR PLAN
Drawing
Not yet archived · Original link
PROPOSED LONG ELEVATIONS
Drawing
Not yet archived · Original link
PROPOSED PLANTING PLAN
Drawing
Not yet archived · Original link
PROPOSED ROOF PLAN
Drawing
Not yet archived · Original link
PROPOSED SECTION
Drawing
Not yet archived · Original link
PROPOSED SHORT ELEVATION & SECTION A-A
Drawing
Not yet archived · Original link
PROPOSED SITE SECTION
Drawing
Not yet archived · Original link
S278 VEHICULAR CROSSOVER GENERAL ARRANGEMENT
Drawing
Not yet archived · Original link
SCC ARCHAEOLOGICAL UNIT
Consultee Comment
Not yet archived · Original link
SCC RIGHTS OF WAY
Consultee Comment
Not yet archived · Original link
TRAFFIC SURVEY MALLETS LANE
Supporting Documents
Not yet archived · Original link
TREE - EAST SUFFOLK LANDSCAPE TEAM
Consultee Comment
Not yet archived · Original link
TREE SURVEY AND PROTECTION PLAN
Drawing
Not yet archived · Original link

Have your say

Your comment matters. Councils must consider every representation that raises material planning considerations.

Write a comment