← East Suffolk Council

Status

Awaiting decision House extension
Received
05 Jan 2026
New homes
0

Full proposal

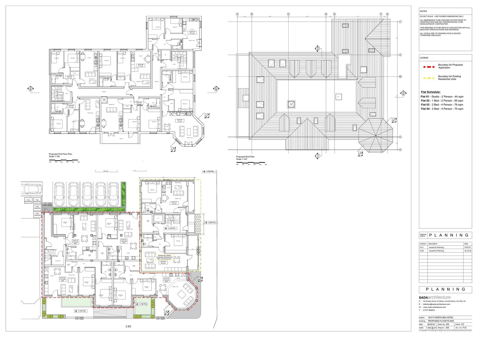
Single-storey rear extension (to infill beneath existing overhang) and change of use of part of ground floor from commercial unit to 2x 1 bed flats and 2x 2 bed flats)

Documents

APPLICATION FORM REDACTED
Application Form
Not yet archived · Original link
BLOCK
Site Plan
Not yet archived · Original link
ESC ENVIRONMENTAL PROTECTION
Consultee Comment
Not yet archived · Original link
EXISTING FLOOR PLANS
Drawing
Not yet archived · Original link
EXISTING SECTION & ELEVATIONS
Drawing
Not yet archived · Original link
HERITAGE IMPACT ASSESSMENT
Supporting Documents
Not yet archived · Original link
INFO SHEET
Neighbour Notification List
Not yet archived · Original link
JPC FLOOD RISK ASSESSMENT SUMMARY REPORT
Supporting Documents
Not yet archived · Original link
MARKETING ASSESSMENT/ADDENDUM
Supporting Documents
Not yet archived · Original link
Drawing
Archived · Original link
Drawing
Archived · Original link
PROPOSED SECTIONS & ELEVATIONS
Drawing
Not yet archived · Original link
PROPOSED SITE LAYOUT PLAN
Drawing
Not yet archived · Original link

Have your say

Your comment matters. Councils must consider every representation that raises material planning considerations.

Write a comment