← East Suffolk Council

Status

Permitted Change of use
Received
08 Jan 2026
New homes
0

Full proposal

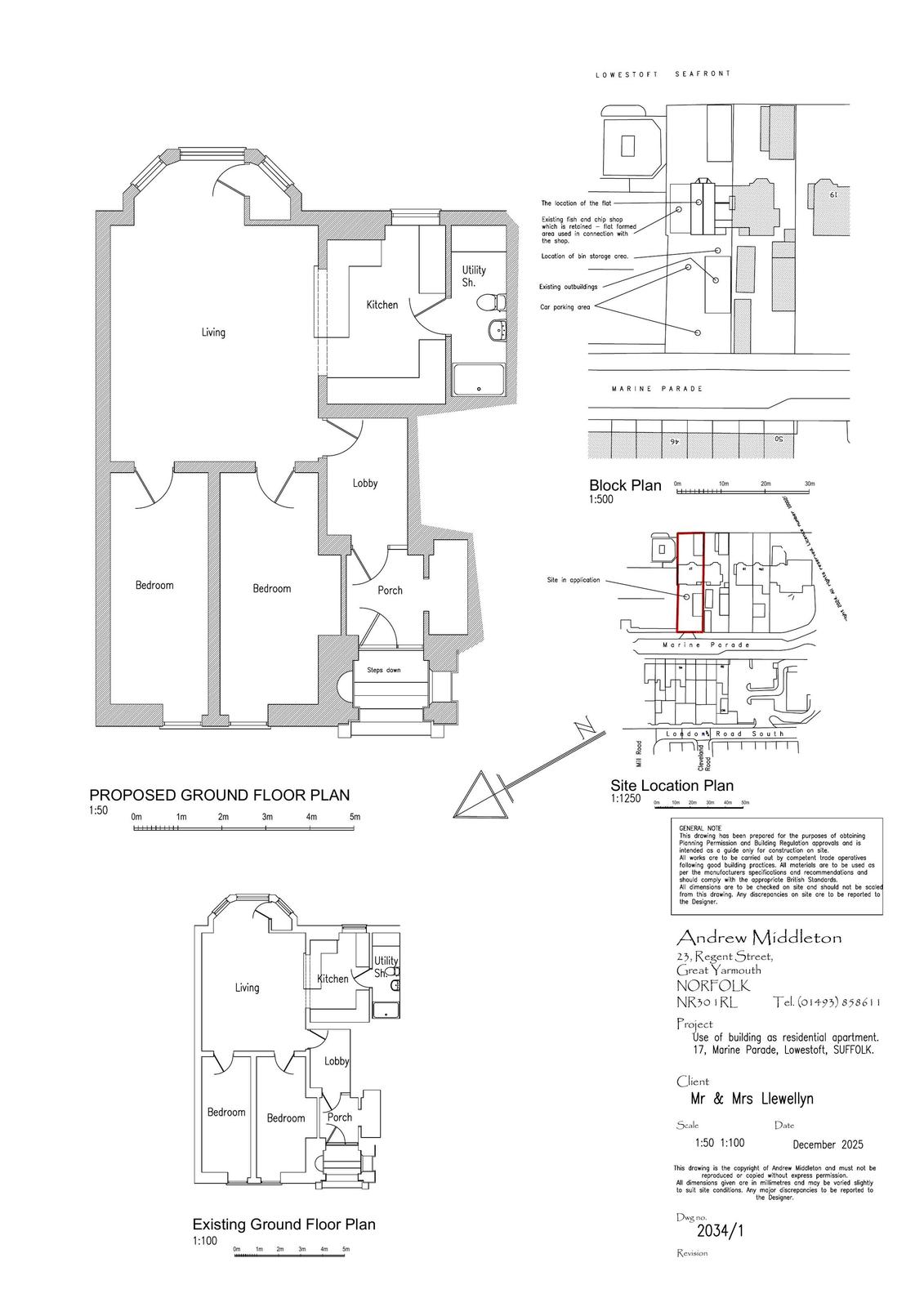
Retrospective Application - Change of use of ground floor storage (previously used in connection with adjoining fish and chip shop) to residential flat.

Documents

APPLICATIONFORMREDACTED
Application Form
Not yet archived · Original link
APPROVE - FULL APPLICATION
Decision Notice
Not yet archived · Original link
ENVIRONMENT AGENCY
Consultee Comment
Not yet archived · Original link
ENVIRONMENTAL PROTECTION
Consultee Comment
Not yet archived · Original link
ESC ECOLOGY
Consultee Comment
Not yet archived · Original link
FLOOD RISK ASSESSMENT
Supporting Documents
Not yet archived · Original link
LOWESTOFT TOWN COUNCIL
Consultee Comment
Not yet archived · Original link
MR BRANDON TAYLOR-19 - 21 STATION SQUARE LOWESTOFT SUFFOLK(FULL)
Public Comment
Not yet archived · Original link
Officer / Committee Report
Officer / Committee Report
Not yet archived · Original link
PLANNING AND HERITAGE STATEMENT
Supporting Documents
Not yet archived · Original link
SCC HIGHWAYS DEPARTMENT
Consultee Comment
Not yet archived · Original link
SCC LOCAL HIGHWAY AUTHORITY
Consultee Comment
Not yet archived · Original link
SUFFOLK FIRE & RESCUE
Consultee Comment
Not yet archived · Original link
SUFFOLK FIRE & RESCUE
Consultee Comment
Not yet archived · Original link

Have your say

Your comment matters. Councils must consider every representation that raises material planning considerations.

Write a comment