← East Suffolk Council

Status

Permitted House extension
Received
13 Jan 2026
New homes
0

Full proposal

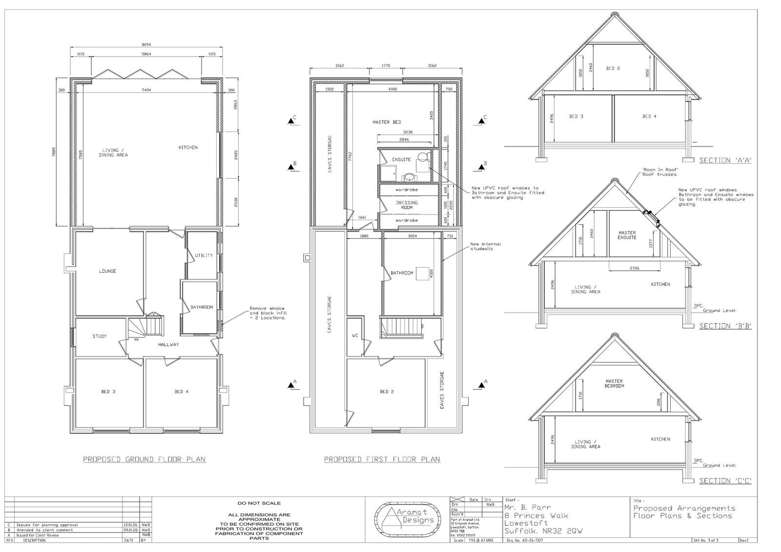
One and a half storey chalet style rear extension and re-rendering of existing dwelling

Documents

APPLICATIONFORMREDACTED
Application Form
Not yet archived · Original link
APPROVE - FULL APPLICATION
Decision Notice
Not yet archived · Original link
LOWESTOFT TOWN COUNCIL
Consultee Comment
Not yet archived · Original link
Officer / Committee Report
Officer / Committee Report
Not yet archived · Original link
PROPOSED ELEVATIONS
Drawing
Not yet archived · Original link

Have your say

Your comment matters. Councils must consider every representation that raises material planning considerations.

Write a comment