← East Suffolk Council

Status

Awaiting decision Change of use
Received
Last month
New homes
1

Full proposal

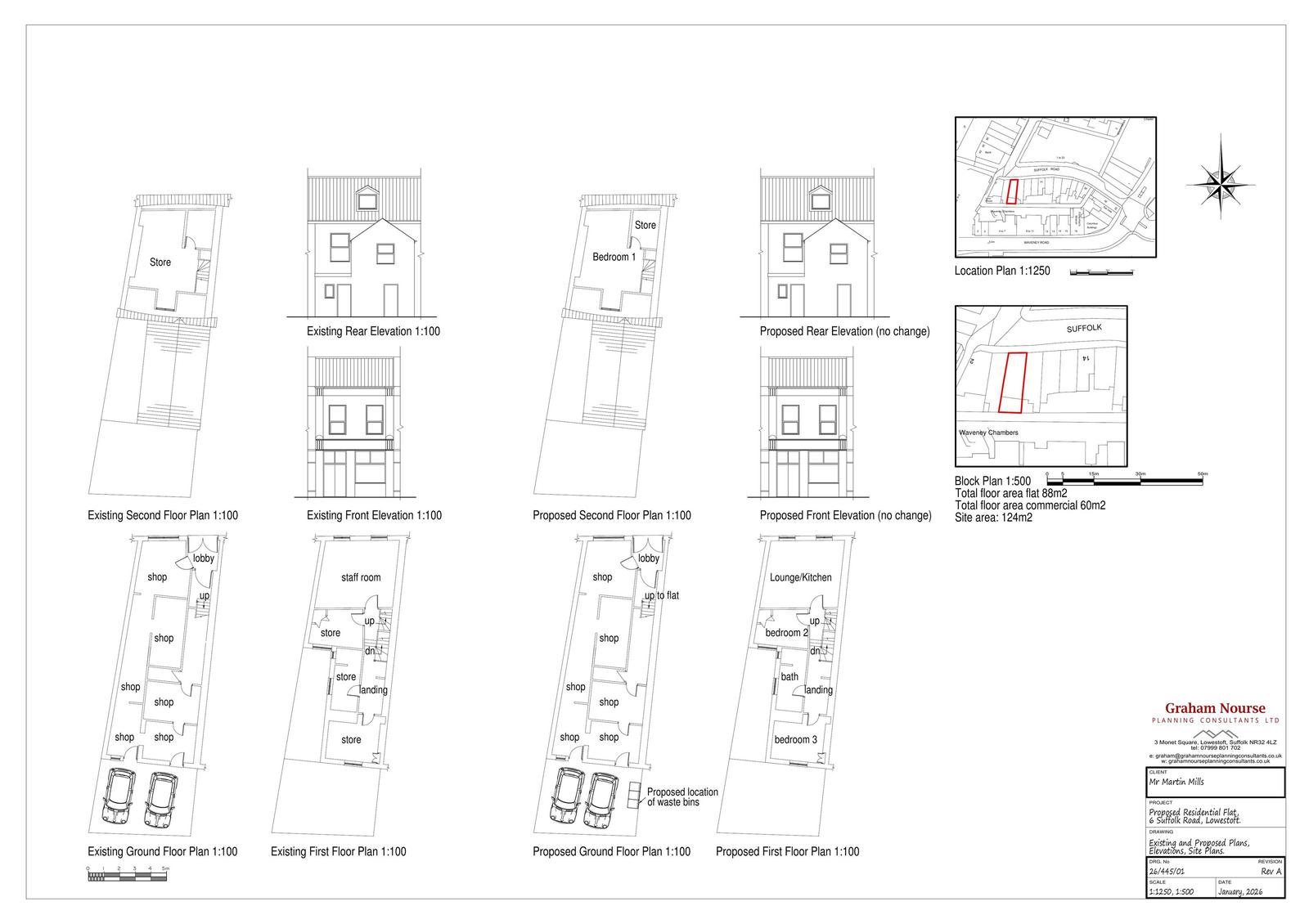
Prior Approval (Commerial to Mixed Use) - The existing property consists of three floors - commercial at ground floor with ancillary commercial uses at first and second floor. It is proposed to convert the first and second floor to a single 3 bedroom flat with commercial use at ground floor (see also planning statement)

Documents

APPLICATION FORM REDACTED
Application Form
Not yet archived · Original link
ESC ENVIRONMENTAL PROTECTION
Consultee Comment
Not yet archived · Original link
FLOOD RISK ASSESSMENT
Supporting Documents
Not yet archived · Original link
INFO SHEET
Neighbour Notification List
Not yet archived · Original link
LAND CONTAMINATION QUESTIONNAIRE
Supporting Documents
Not yet archived · Original link
LOWESTOFT TOWN COUNCIL
Consultee Comment
Not yet archived · Original link
PLANNING STATEMENT
Supporting Documents
Not yet archived · Original link
SCC HIGHWAYS
Consultee Comment
Not yet archived · Original link

Have your say

Your comment matters. Councils must consider every representation that raises material planning considerations.

Write a comment