← East Suffolk Council

Status

Awaiting decision House extension
Received
Last month
New homes
0

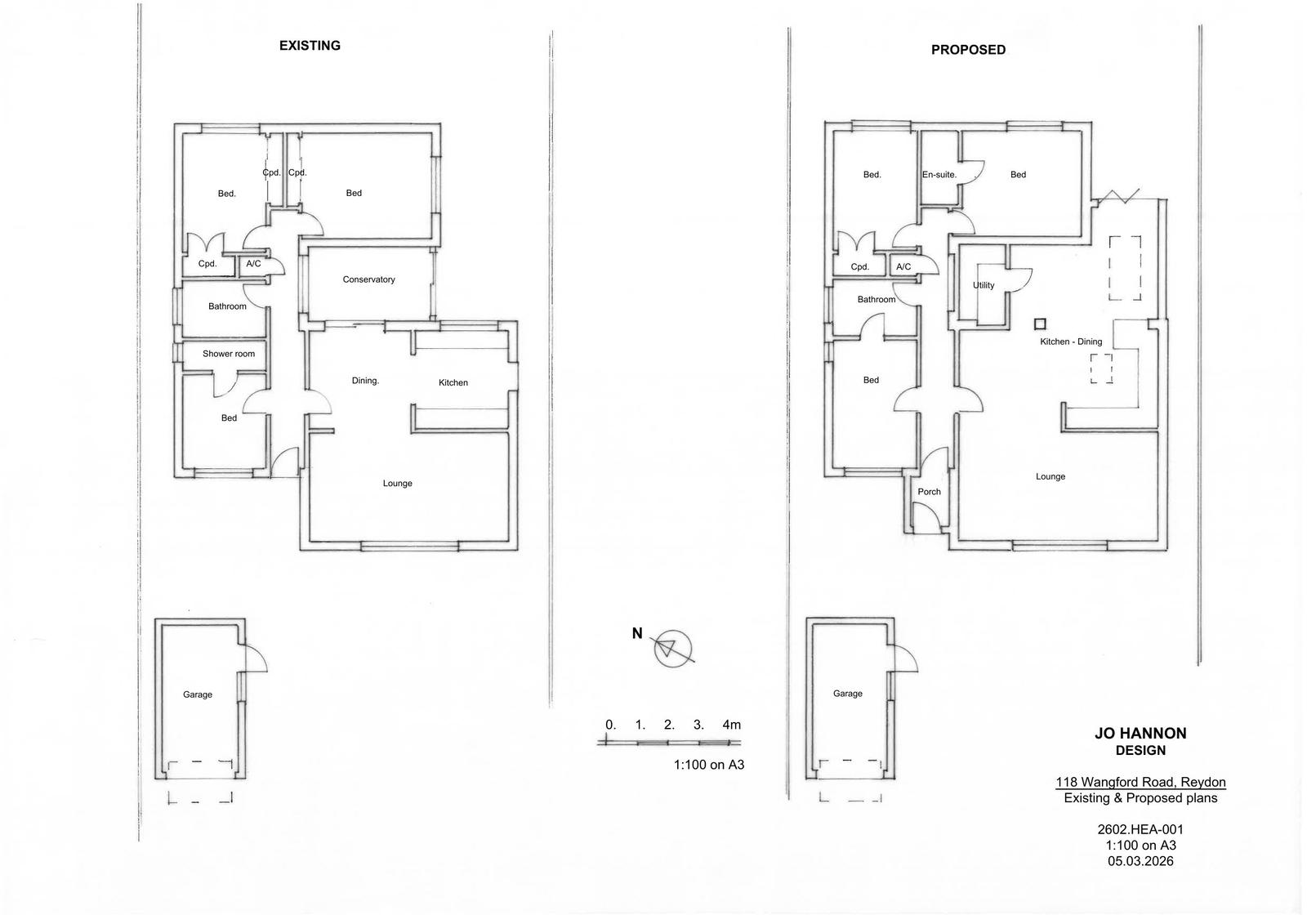
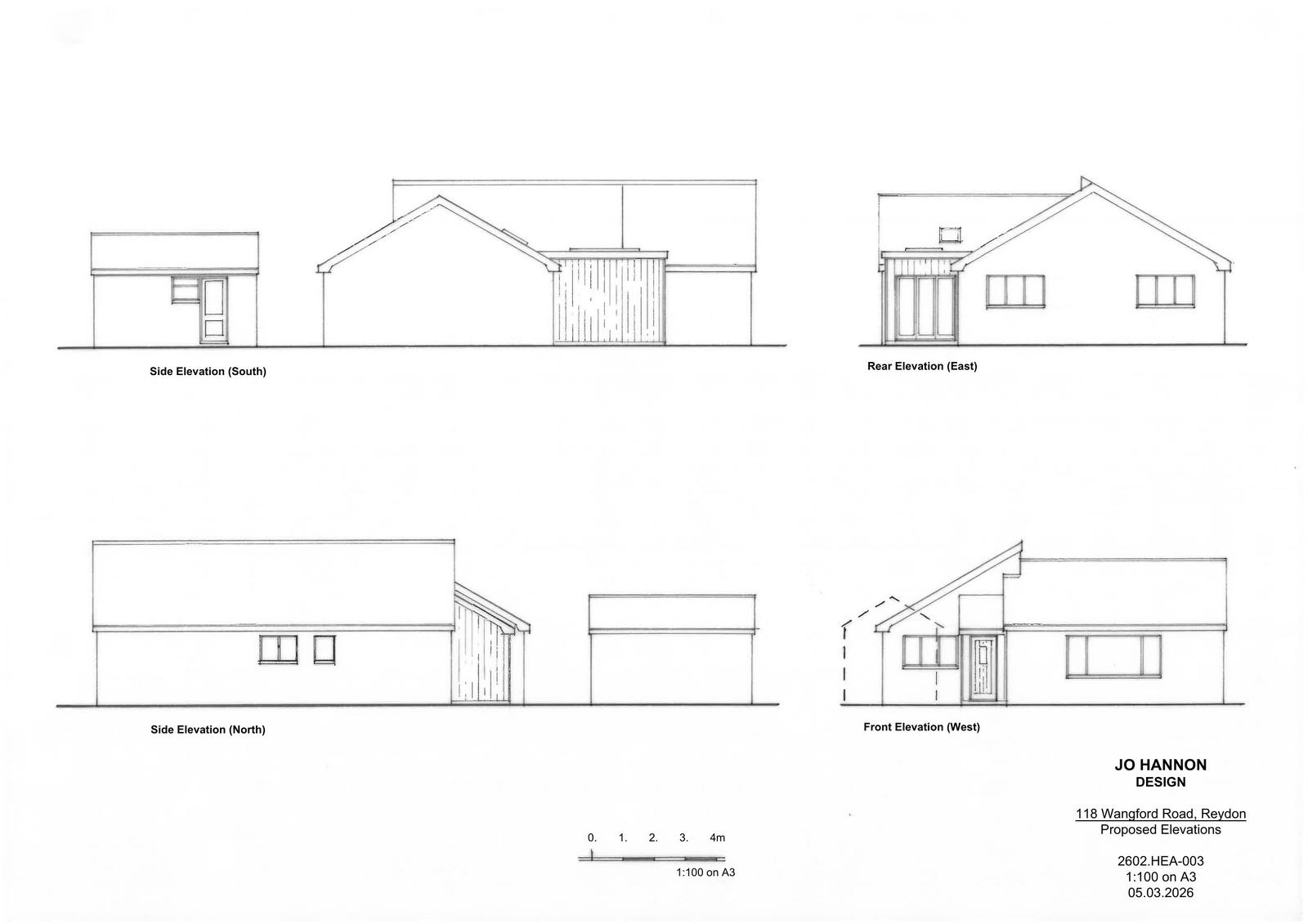
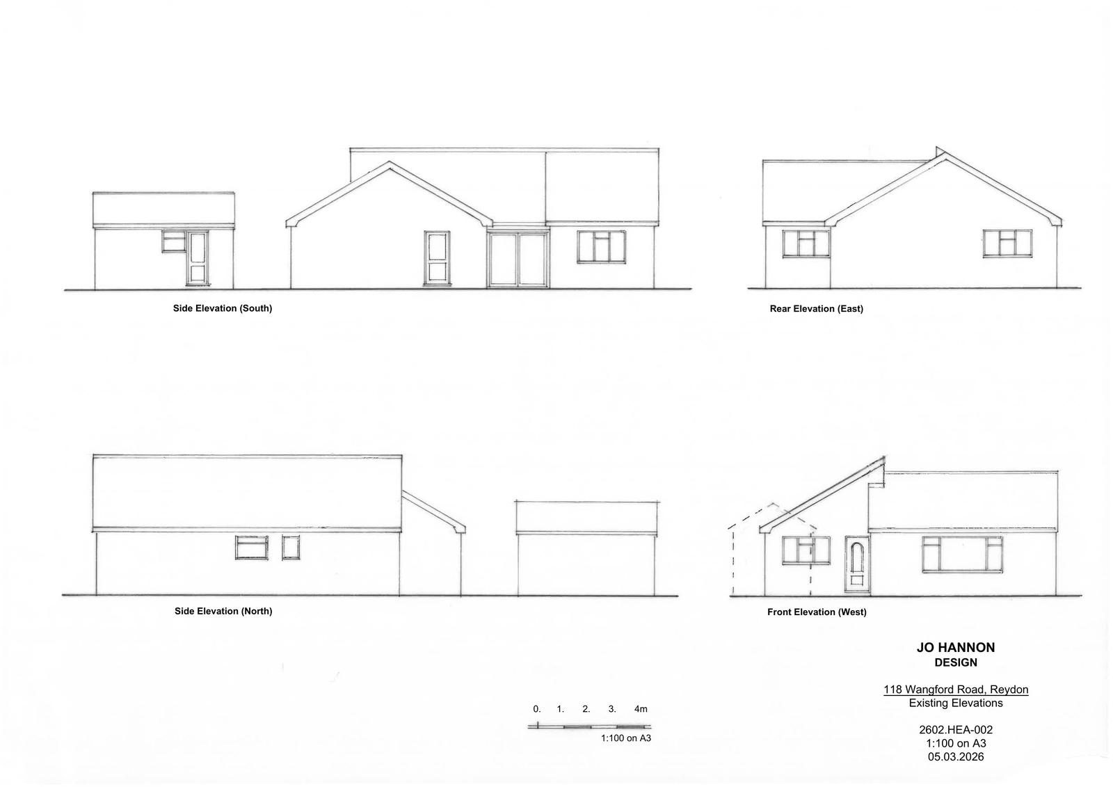
Full proposal

Single storey infill and side extension. Bifold doors on east elevation, vertical heat treated tongue and groove timber on South elevation. Flat roof GRP construction.

Have your say

Your comment matters. Councils must consider every representation that raises material planning considerations.

Write a comment