← Enfield

Status

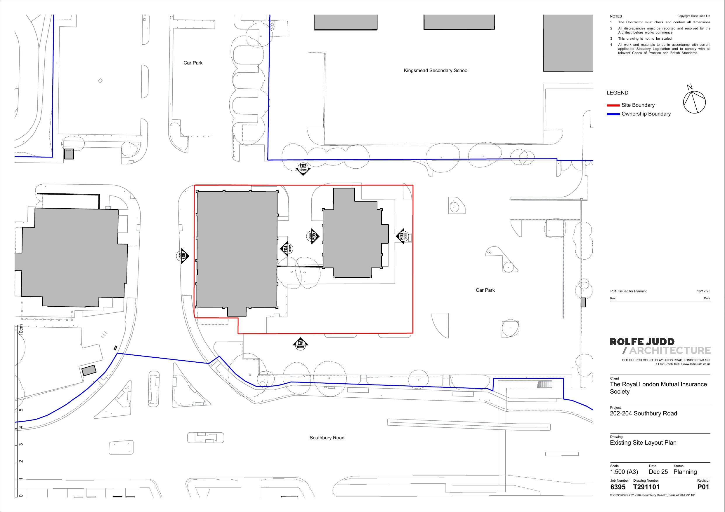
Application in Progress Demolition
Received
23 Dec 2025
New homes
0

Full proposal

Demolition of two existing buildings (to ground floor slab level) and the erection of temporary site hoarding with security hut.(amended description)

Documents

Application Form - Without Personal Data
Archived · Original link
Community Infrastructure Levy ? Completed Form
Archived · Original link
Covering Letter
Archived · Original link
Design & Access Statement
Archived · Original link
Supporting Information
Archived · Original link
Block Plan
Archived · Original link
Drawing
Archived · Original link
Drawing
Archived · Original link
Block Plan
Archived · Original link
Drawing
Archived · Original link
OS Extract
Archived · Original link

Have your say

Your comment matters. Councils must consider every representation that raises material planning considerations.

Write a comment