← Enfield

Status

Application in Progress Change of use
Received
23 Jan 2026
New homes
1

Full proposal

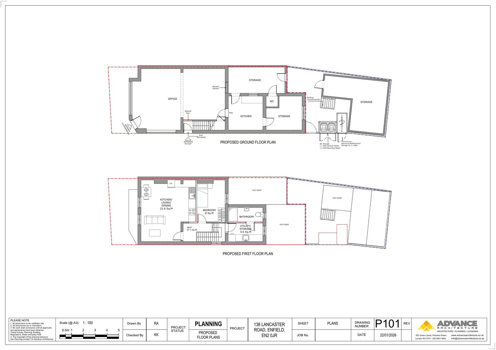
Change of use of first floor from commercial (Use Class E) to a flat (Use Class C3) with associated alterations.

Documents

Application Form - Without Personal Data
Application Form - Without Personal Data
Not yet archived · Original link
BIKE STORAGE DETAILS
Drawing
Not yet archived · Original link
BIN STORAGE DETAILS
Drawing
Not yet archived · Original link
DESIGN AND ACCESS STATEMENT
Design & Access Statement
Not yet archived · Original link
EXISTING BLOCK PLAN
Block Plan
Not yet archived · Original link
EXISTING FLOOR PLANS
Drawing
Not yet archived · Original link
PROPOSED BLOCK PLAN
Block Plan
Not yet archived · Original link
Drawing
Archived · Original link
The location plan
OS Extract
Not yet archived · Original link

Have your say

Your comment matters. Councils must consider every representation that raises material planning considerations.

Write a comment