← Enfield

Status

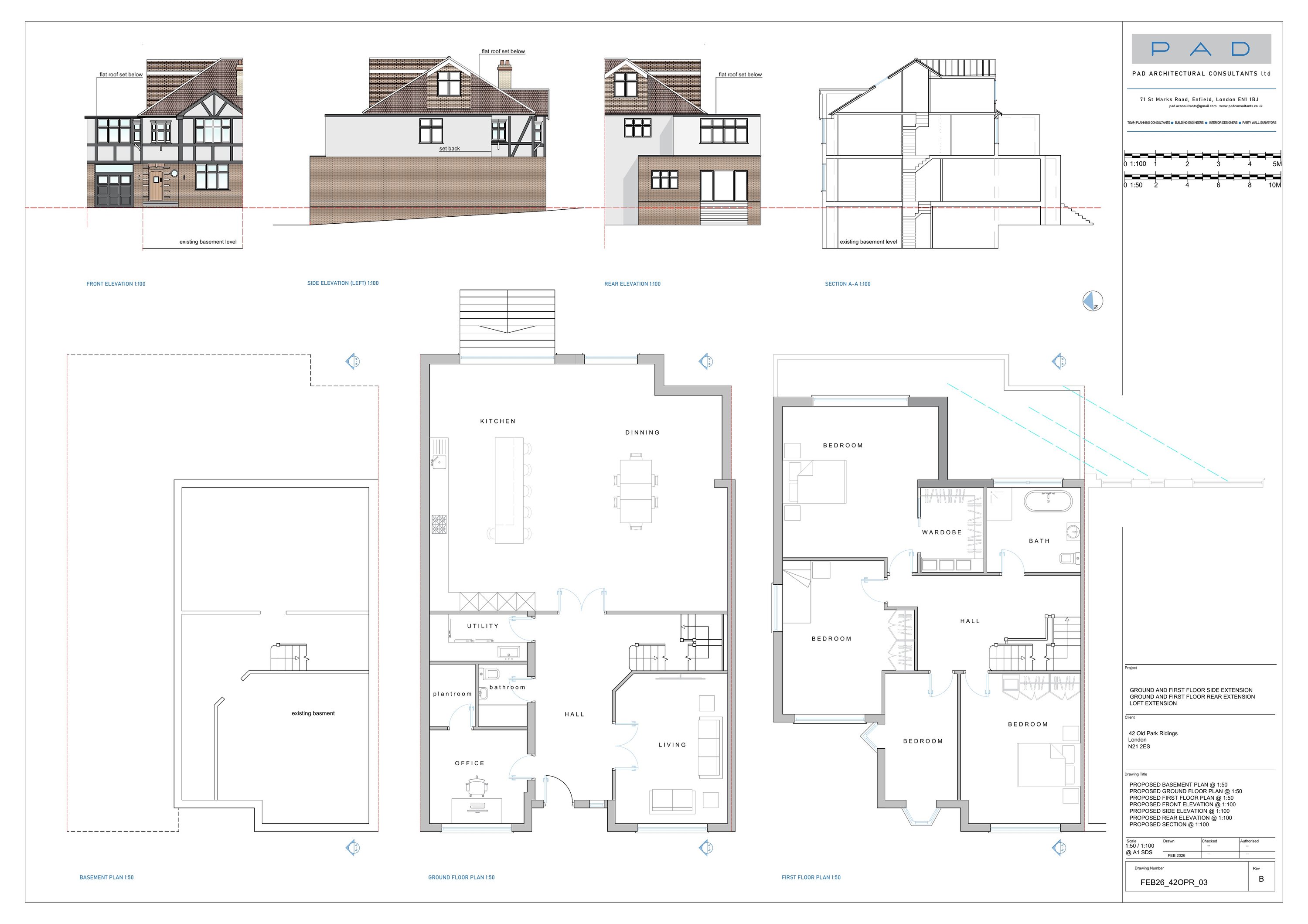
Application in Progress House extension
Received
07 Jan 2026
New homes
0

Full proposal

Part single, part two-storey side and rear extensions, with extension to existing basement, loft conversion with rear and side dormer windows.

Have your say

Your comment matters. Councils must consider every representation that raises material planning considerations.

Write a comment