← Enfield

Status

Application in Progress Change of use
Received
06 Feb 2026
New homes
0

Full proposal

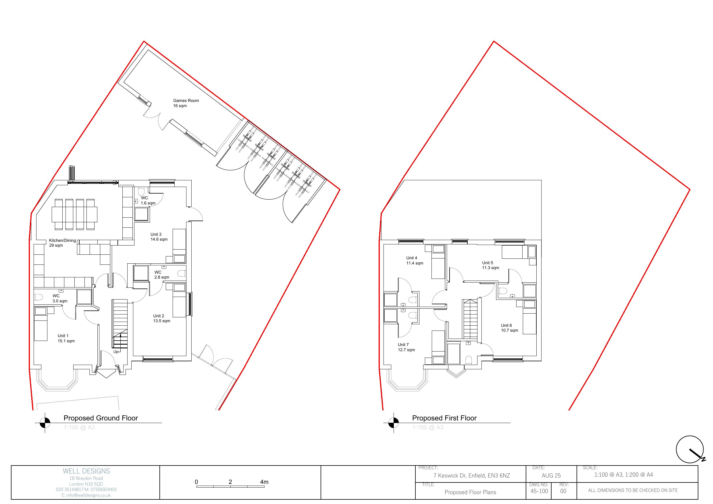
Change of use from Use Class C3 (dwelling house) to Use Class Sui Generis (HMO-house in multiple occupation) for 7 people.

Documents

Application Form - Without Personal Data
Application Form - Without Personal Data
Not yet archived · Original link
COMMUNITY INFRASTRUCTURE LEVY - COMPLETED FORM
Community Infrastructure Levy ? Completed Form
Not yet archived · Original link
DESIGN AND ACCESS STATEMENT
Design & Access Statement
Not yet archived · Original link
EXISTING FLOOR PLANS
Drawing
Not yet archived · Original link
EXISTING FRONT AND REAR ELEVATIONS, EXISTING AND PROPOSED SECTION
Drawing
Not yet archived · Original link
EXISTING SIDE ELEVATION AND PARTY WALL SECTION
Drawing
Not yet archived · Original link
HIGHWAY SAFETY IMPACT FORM
Supporting Information
Not yet archived · Original link
PROPOSED CYCLE STORE
Drawing
Not yet archived · Original link
Drawing
Archived · Original link
PROPOSED REFUSE STORE
Drawing
Not yet archived · Original link
The location plan
OS Extract
Not yet archived · Original link

Have your say

Your comment matters. Councils must consider every representation that raises material planning considerations.

Write a comment