← Enfield

Status

Application in Progress Change of use
Received
Last month
New homes
0

Full proposal

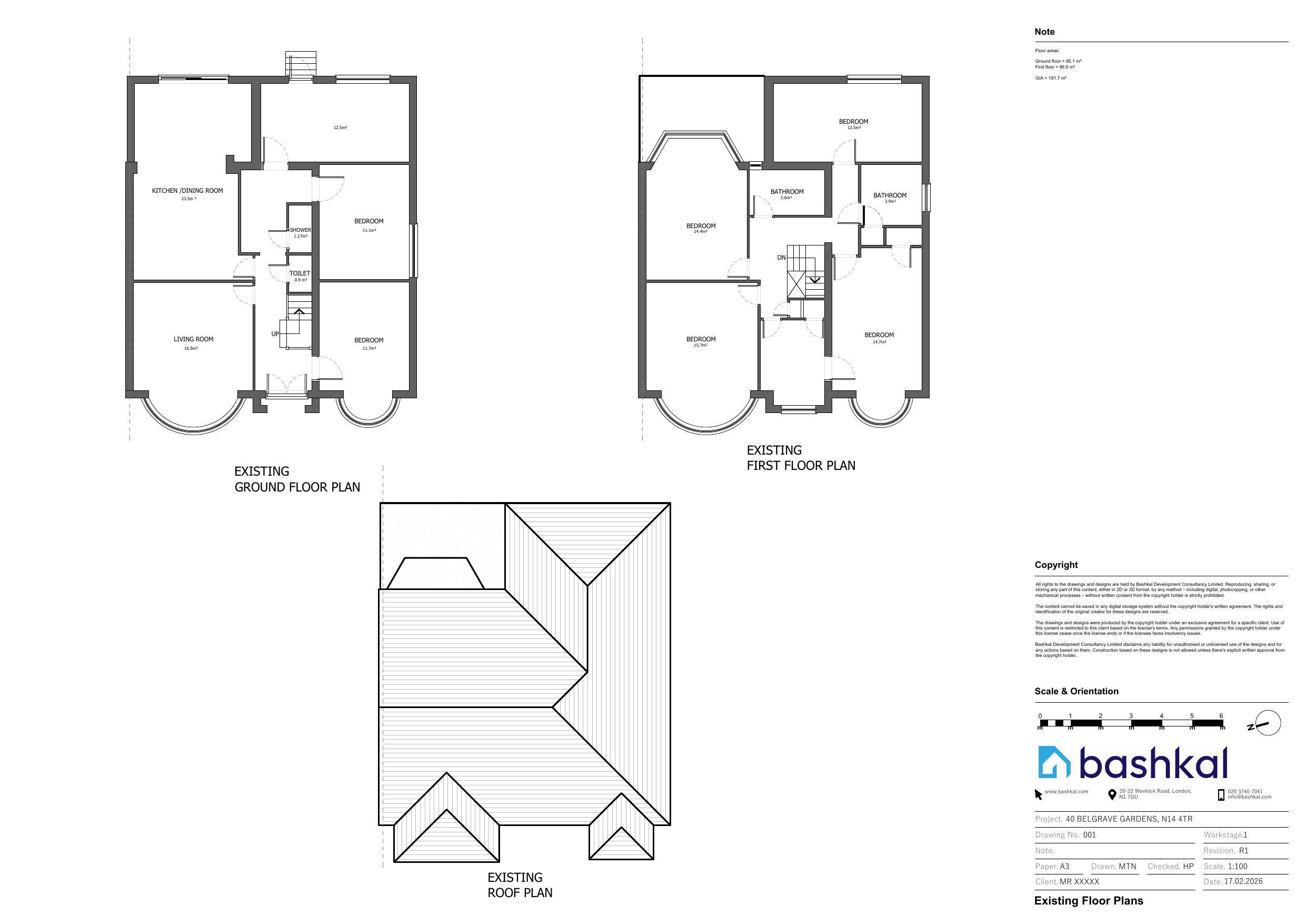
Change of use from Use Class C3 (dwelling house) to Use Class C4 (HMO-house in multiple occupation).

Documents

Planning Statement
Archived · Original link
OS Extract
Archived · Original link

Have your say

Your comment matters. Councils must consider every representation that raises material planning considerations.

Write a comment