← Epping Forest District Council

Status

Pending New housing
Received
Not recorded
New homes
1

Full proposal

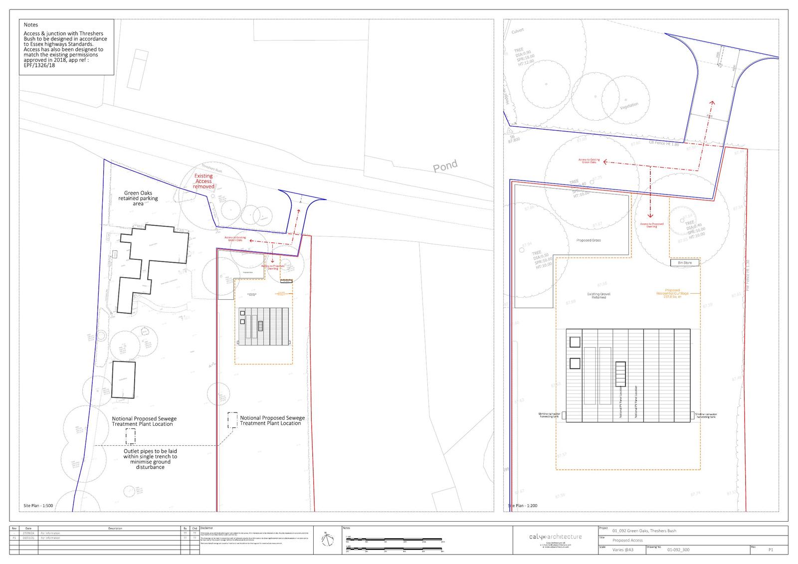
Application Reference EPF/0013/25 Site Address Green Oaks, Threshers Bush, Matching, Harlow, CM17 0NS Proposal Conversion and alterations to existing glasshouse to create 1no. self-contained, self-build dwelling, with associated residential curtilage, and new means of access to the public highway. Received Date 03/1/2025 Application Status Decision Made Valid Date 09/1/2025

Documents

Uncategorised
Archived · Original link
Uncategorised
Archived · Original link
Uncategorised
Archived · Original link
Uncategorised
Archived · Original link
Uncategorised
Archived · Original link
Uncategorised
Archived · Original link
Uncategorised
Archived · Original link
Uncategorised
Archived · Original link
Uncategorised
Archived · Original link
Uncategorised
Archived · Original link
Uncategorised
Archived · Original link
Uncategorised
Archived · Original link
Uncategorised
Archived · Original link
Uncategorised
Archived · Original link
Uncategorised
Archived · Original link
Uncategorised
Archived · Original link
Uncategorised
Archived · Original link
Uncategorised
Archived · Original link
Uncategorised
Archived · Original link
Uncategorised
Archived · Original link

Have your say

Your comment matters. Councils must consider every representation that raises material planning considerations.

Write a comment