← Epping Forest District Council

Status

Pending New housing
Received
Not recorded
New homes
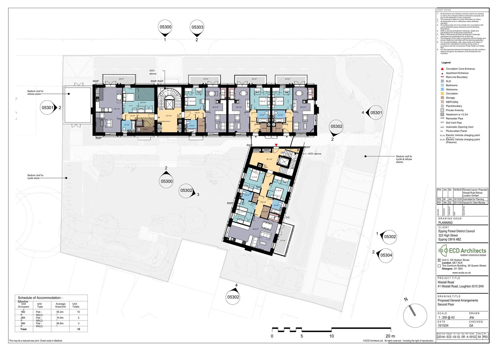
15

Full proposal

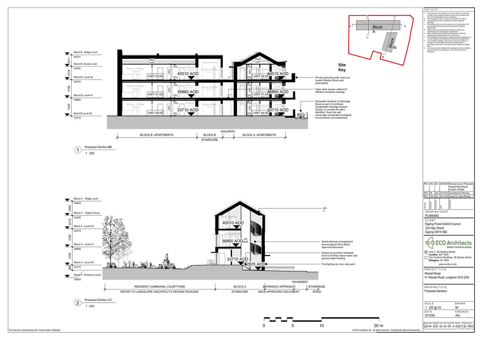
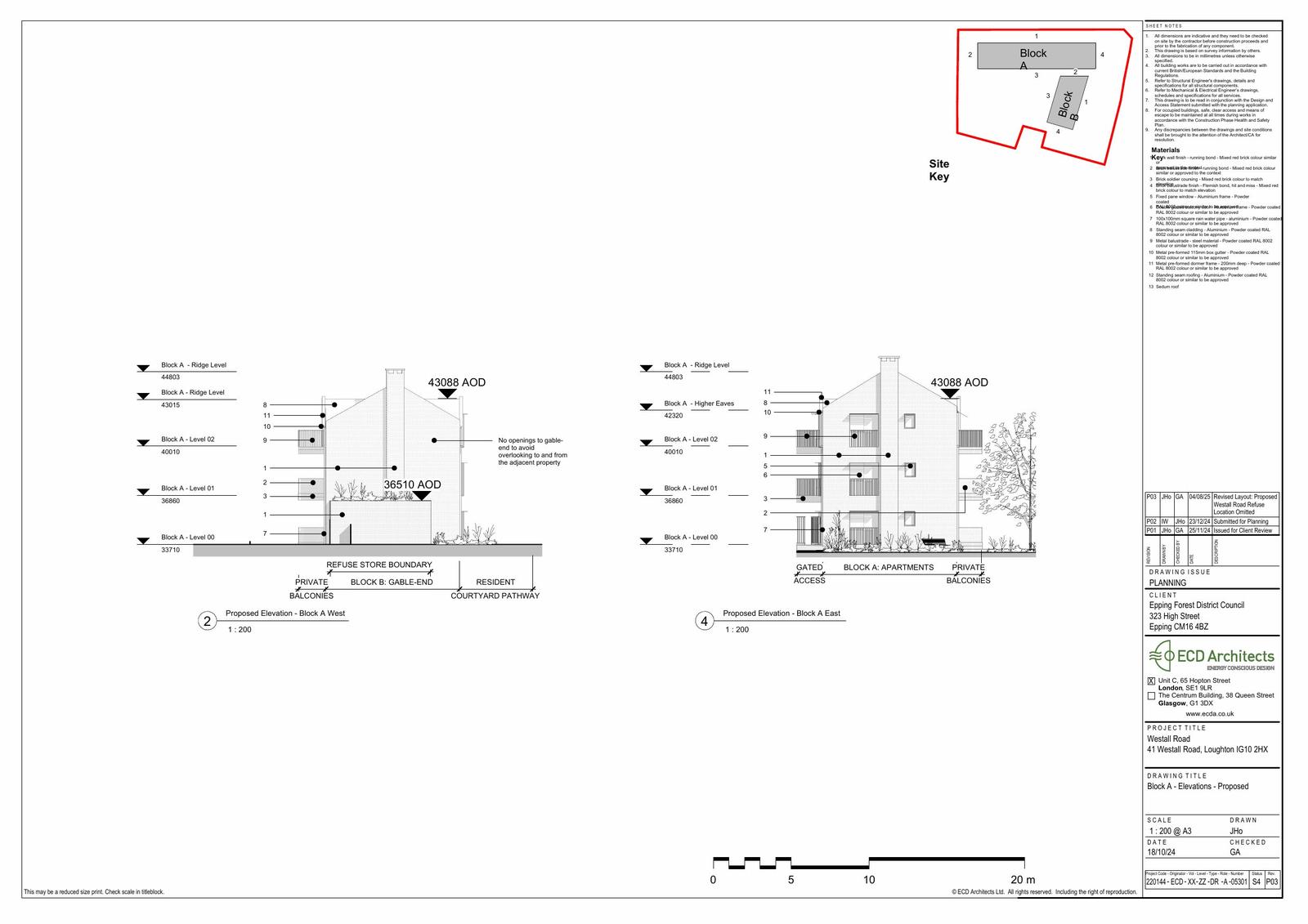
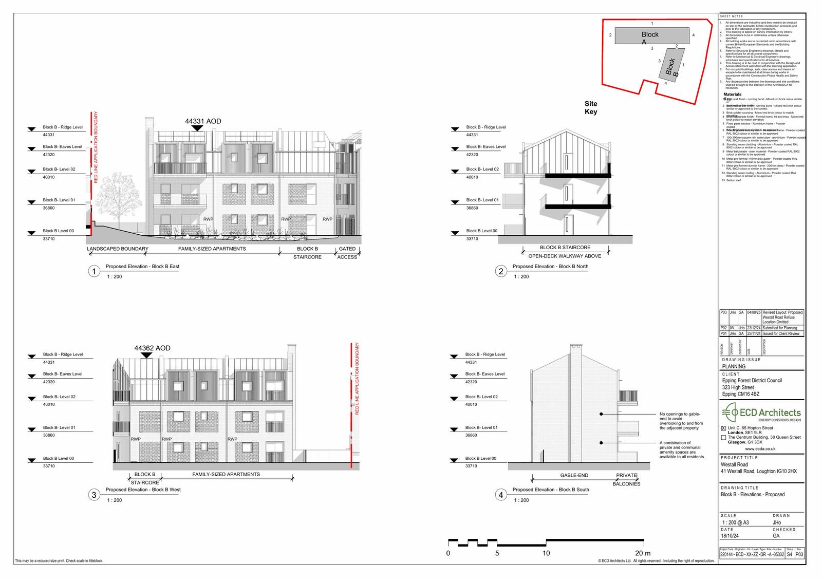
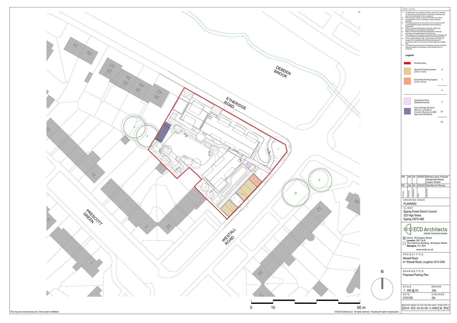
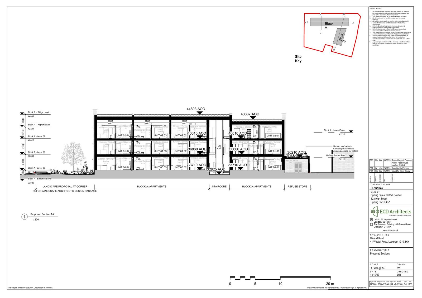
Application Reference EPF/0039/25 Site Address The Princess of Wales PH, 41 Westall Road, Loughton, IG10 2HX Proposal Demolition of existing unoccupied Princess of Wales pub and construction of 15 affordable homes targeting Passivhaus standards, an integrated front landscape and internal courtyard design and associated works. Received Date 08/1/2025 Application Status Decision Made Valid Date 08/1/2025

Documents

Uncategorised
Archived · Original link
Uncategorised
Archived · Original link
Uncategorised
Archived · Original link
Uncategorised
Archived · Original link
Uncategorised
Archived · Original link
Uncategorised
Archived · Original link
Uncategorised
Archived · Original link
Uncategorised
Archived · Original link
Uncategorised
Archived · Original link
Uncategorised
Archived · Original link
Uncategorised
Archived · Original link
Uncategorised
Archived · Original link
Uncategorised
Archived · Original link
Uncategorised
Archived · Original link
Uncategorised
Archived · Original link
Uncategorised
Archived · Original link
Uncategorised
Archived · Original link
Uncategorised
Archived · Original link
Uncategorised
Archived · Original link
Uncategorised
Archived · Original link

Have your say

Your comment matters. Councils must consider every representation that raises material planning considerations.

Write a comment