← Epping Forest District Council

Status

Pending House extension
Received
Not recorded
New homes
0

Full proposal

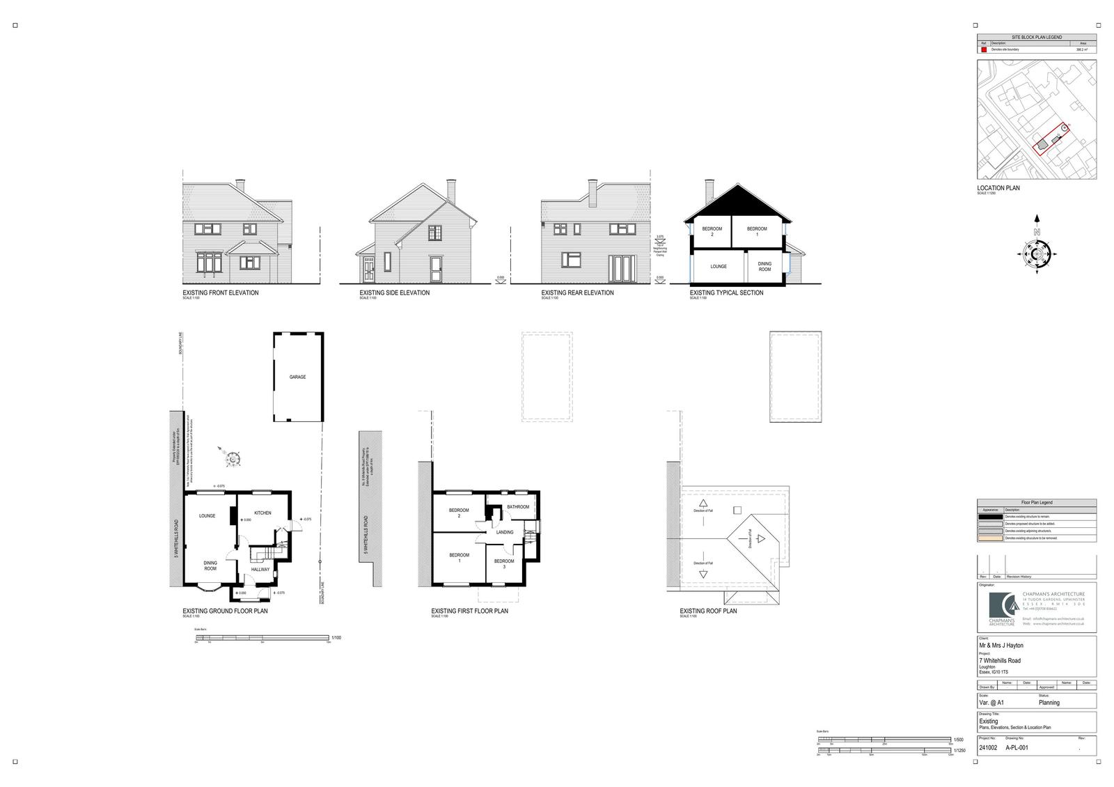
Application Reference EPF/0056/25 Site Address 7, Whitehills Road, Loughton, IG10 1TS Proposal Demolition of garage to allow for single storey rear and side extension. Received Date 09/1/2025 Application Status Decision Made Valid Date 09/1/2025

Documents

Uncategorised
Archived · Original link
Uncategorised
Archived · Original link
Uncategorised
Archived · Original link
Uncategorised
Archived · Original link
Uncategorised
Archived · Original link
Uncategorised
Archived · Original link
Uncategorised
Archived · Original link
Uncategorised
Archived · Original link

Have your say

Your comment matters. Councils must consider every representation that raises material planning considerations.

Write a comment