← Epping Forest District Council

Status

Pending House extension
Received
Not recorded
New homes
0

Full proposal

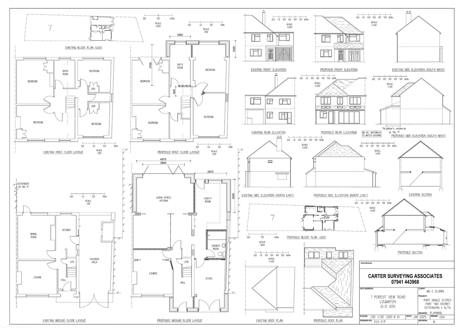
Application Reference EPF/0115/25 Site Address 7, Forest View Road, Loughton, IG10 4DX Proposal Erection of part single storey, part two storey rear extension, single storey front extension, infill of car port area & formation of hipped roof to existing first floor side extension. Received Date 17/1/2025 Application Status Decision Made Valid Date 17/1/2025

Documents

Uncategorised
Archived · Original link
Uncategorised
Archived · Original link
Uncategorised
Archived · Original link
Uncategorised
Archived · Original link
Uncategorised
Archived · Original link
Uncategorised
Archived · Original link
Uncategorised
Archived · Original link
Uncategorised
Archived · Original link
Uncategorised
Archived · Original link

Have your say

Your comment matters. Councils must consider every representation that raises material planning considerations.

Write a comment