← Epping Forest District Council

Status

Pending House extension
Received
Not recorded
New homes
0

Full proposal

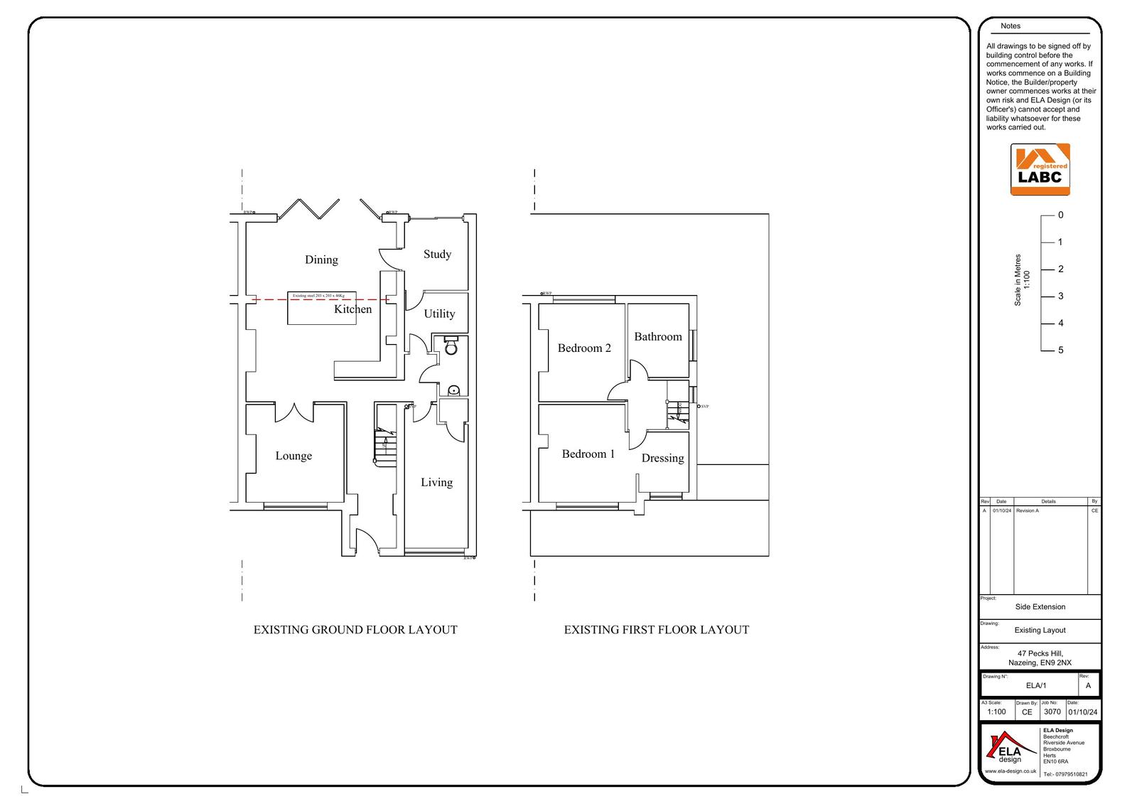
Application Reference EPF/0207/25 Site Address 47, Pecks Hill, Nazeing, Waltham Abbey, EN9 2NX Proposal First floor side extension & front dormer above garage. Received Date 29/1/2025 Application Status Decision Made Valid Date 29/1/2025

Documents

Uncategorised
Archived · Original link
Uncategorised
Archived · Original link
Uncategorised
Archived · Original link
Uncategorised
Archived · Original link
Uncategorised
Archived · Original link
Uncategorised
Archived · Original link
Uncategorised
Archived · Original link

Have your say

Your comment matters. Councils must consider every representation that raises material planning considerations.

Write a comment