← Epping Forest District Council

Status

Pending House extension
Received
Not recorded
New homes
0

Full proposal

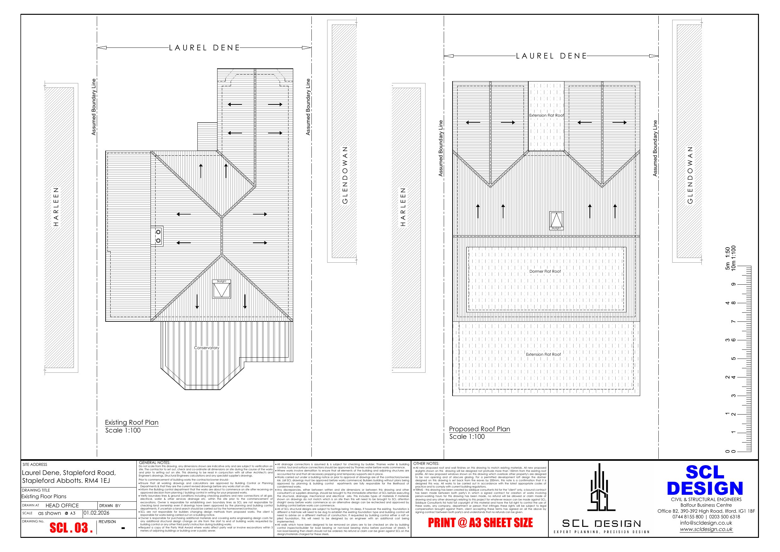
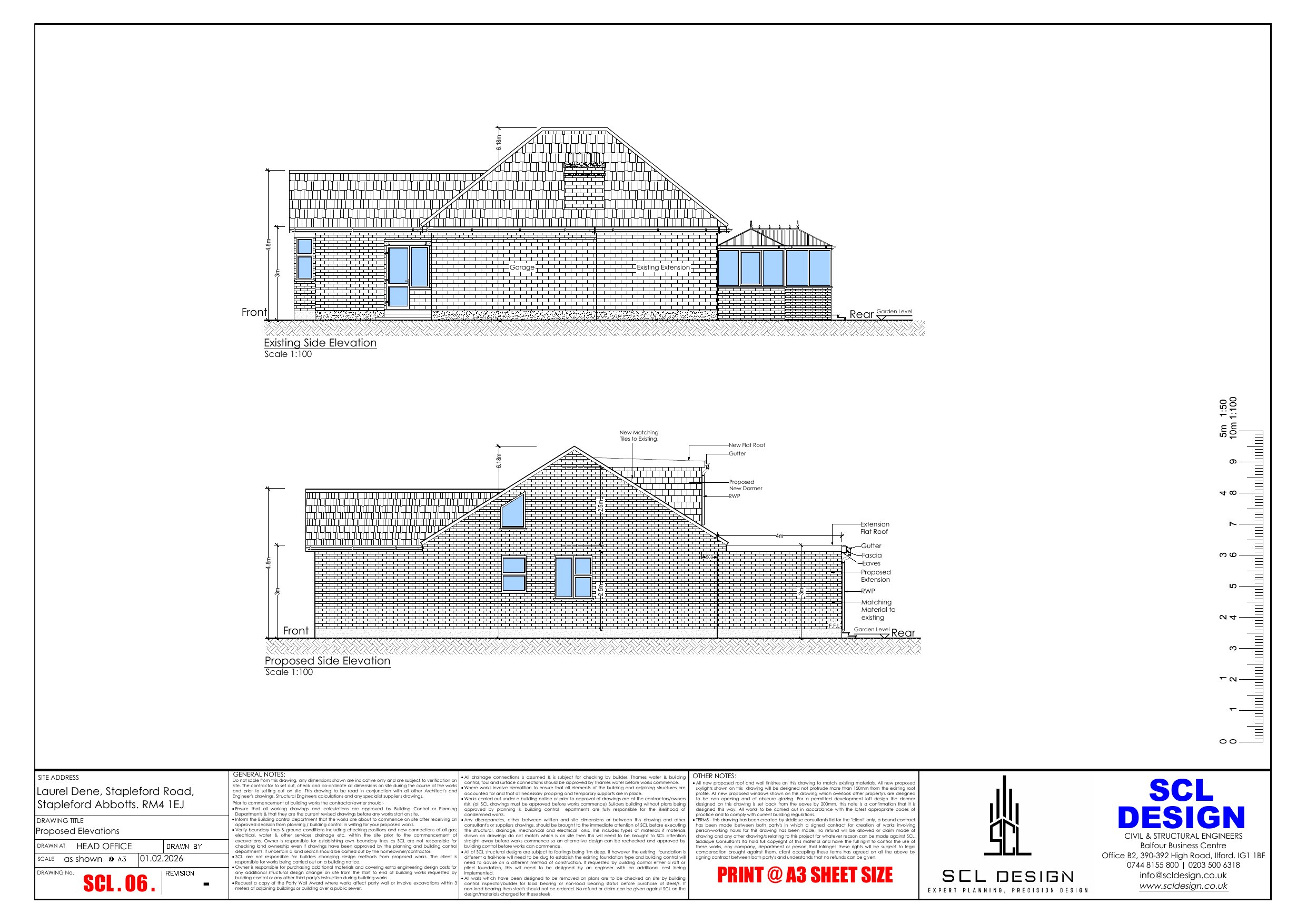
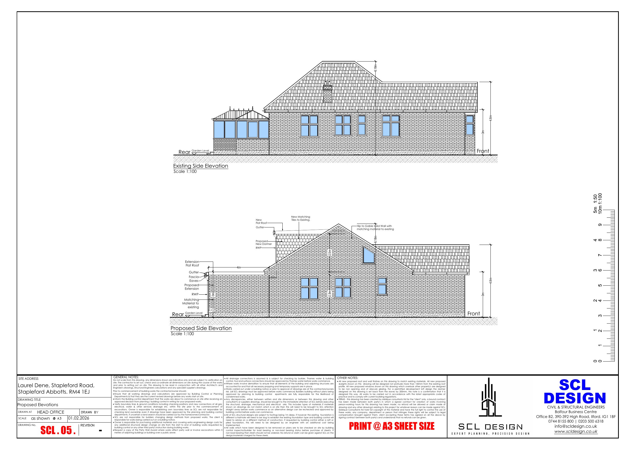
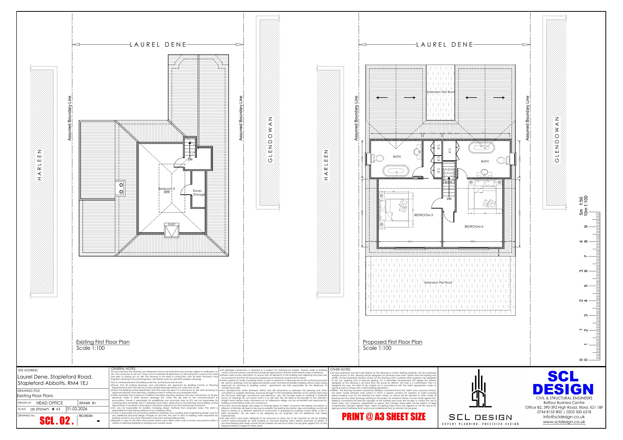
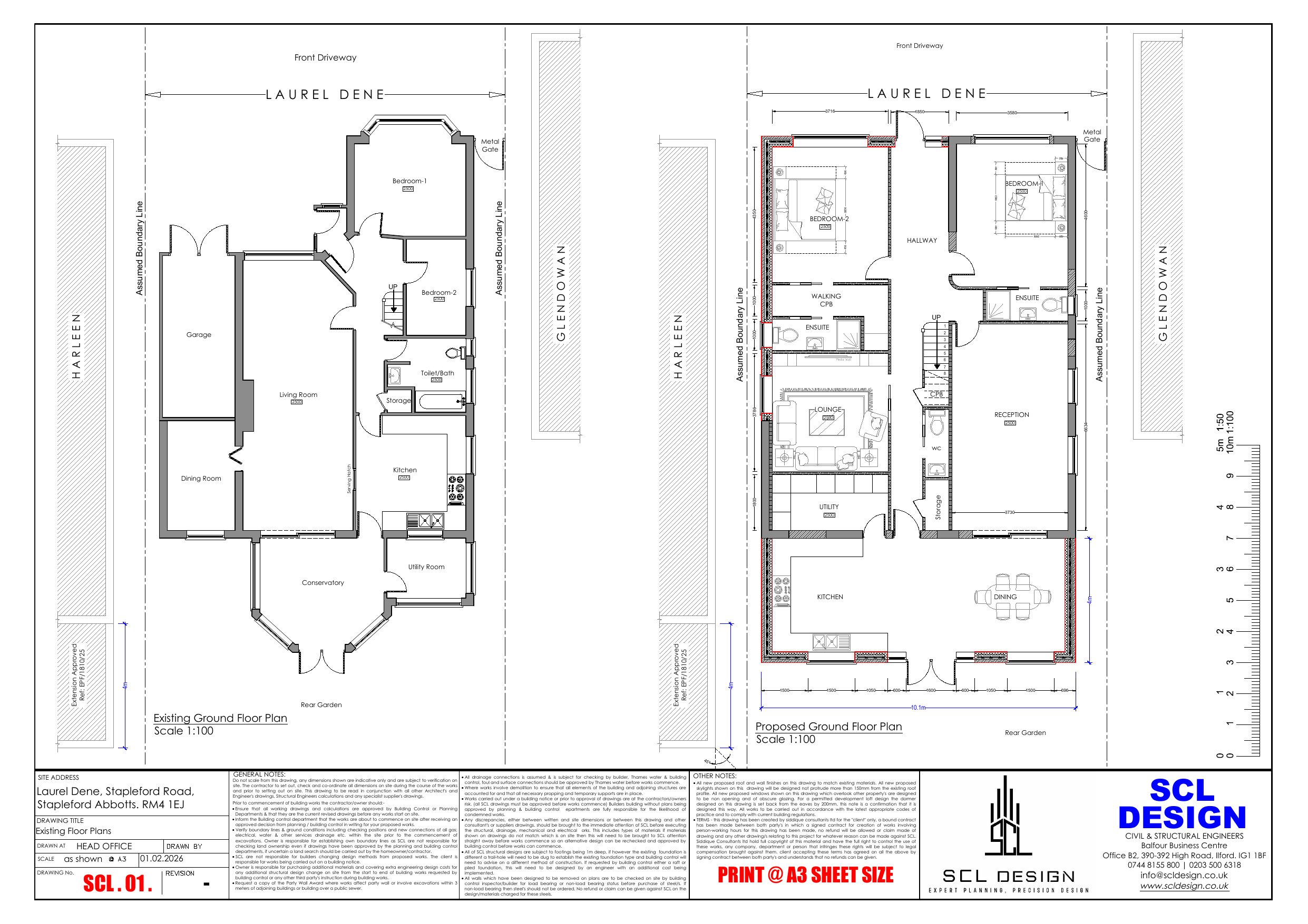
Application Reference EPF/0248/26 Site Address Laurel Dene, Stapleford Road, Stapleford Abbotts, Romford, RM4 1EJ Proposal Demolition of existing garage, erection of single-storey front and rear extensions and hip-to-gable loft conversion with rear dormer. Received Date 06/2/2026 Application Status Under Consultation Valid Date 06/2/2026

Documents

Uncategorised
Archived · Original link
Uncategorised
Archived · Original link
Uncategorised
Archived · Original link
Uncategorised
Archived · Original link
Uncategorised
Archived · Original link
Uncategorised
Archived · Original link
Uncategorised
Archived · Original link
Uncategorised
Archived · Original link
Uncategorised
Archived · Original link
Uncategorised
Archived · Original link
Uncategorised
Archived · Original link
Uncategorised
Archived · Original link
Uncategorised
Archived · Original link

Have your say

Your comment matters. Councils must consider every representation that raises material planning considerations.

Write a comment