← Epping Forest District Council

Status

Pending New housing
Received
Not recorded
New homes
1

Full proposal

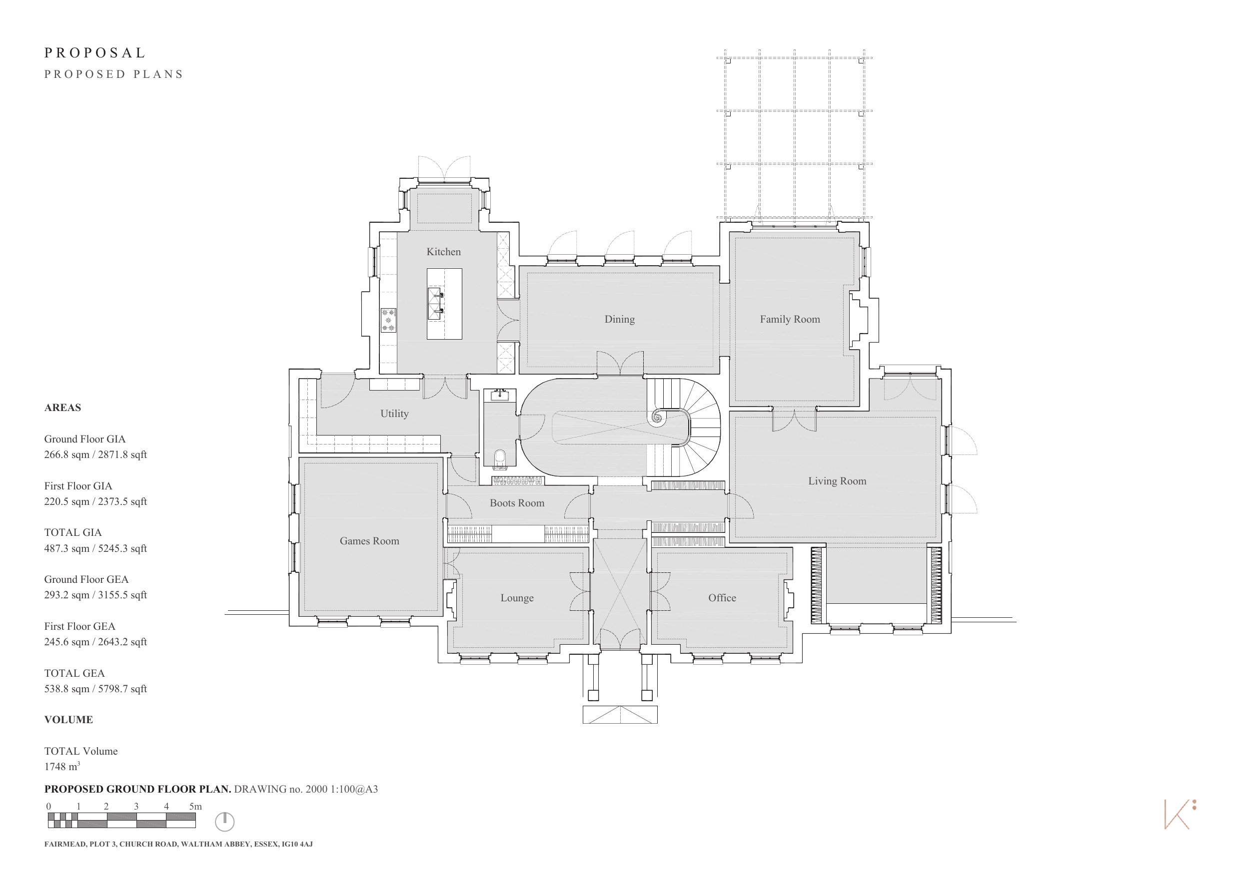
Application Reference EPF/0250/26 Site Address Fairmead Plot 3, Church Road , Loughton, IG10 4AJ Proposal Erection of a detached self-build dwellinghouse to Plot 3 in place of a detached dwellinghouse approved under EPF/0675/25, EPF/0679/24, EPF/1713/16 and EPF/2934/21 respectively. Received Date 09/2/2026 Application Status Recommendation Made Valid Date 09/2/2026

Documents

Uncategorised
Archived · Original link
Download (DOCX, 27.83KB)
Uncategorised
Not yet archived · Original link
Uncategorised
Archived · Original link
Uncategorised
Archived · Original link
Uncategorised
Archived · Original link
Uncategorised
Archived · Original link
Uncategorised
Archived · Original link
Uncategorised
Archived · Original link
Uncategorised
Archived · Original link
Uncategorised
Archived · Original link
Uncategorised
Archived · Original link
Uncategorised
Archived · Original link
Uncategorised
Archived · Original link
Uncategorised
Archived · Original link
Uncategorised
Archived · Original link
Download (PDF, 4.42MB)
Uncategorised
Not yet archived · Original link
Download (PDF, 423.99KB)
Uncategorised
Not yet archived · Original link
Uncategorised
Archived · Original link
Uncategorised
Archived · Original link
Uncategorised
Archived · Original link
Uncategorised
Archived · Original link
Uncategorised
Archived · Original link
Uncategorised
Archived · Original link

Have your say

Your comment matters. Councils must consider every representation that raises material planning considerations.

Write a comment