← Epping Forest District Council

Status

Pending House extension
Received
Not recorded
New homes
0

Full proposal

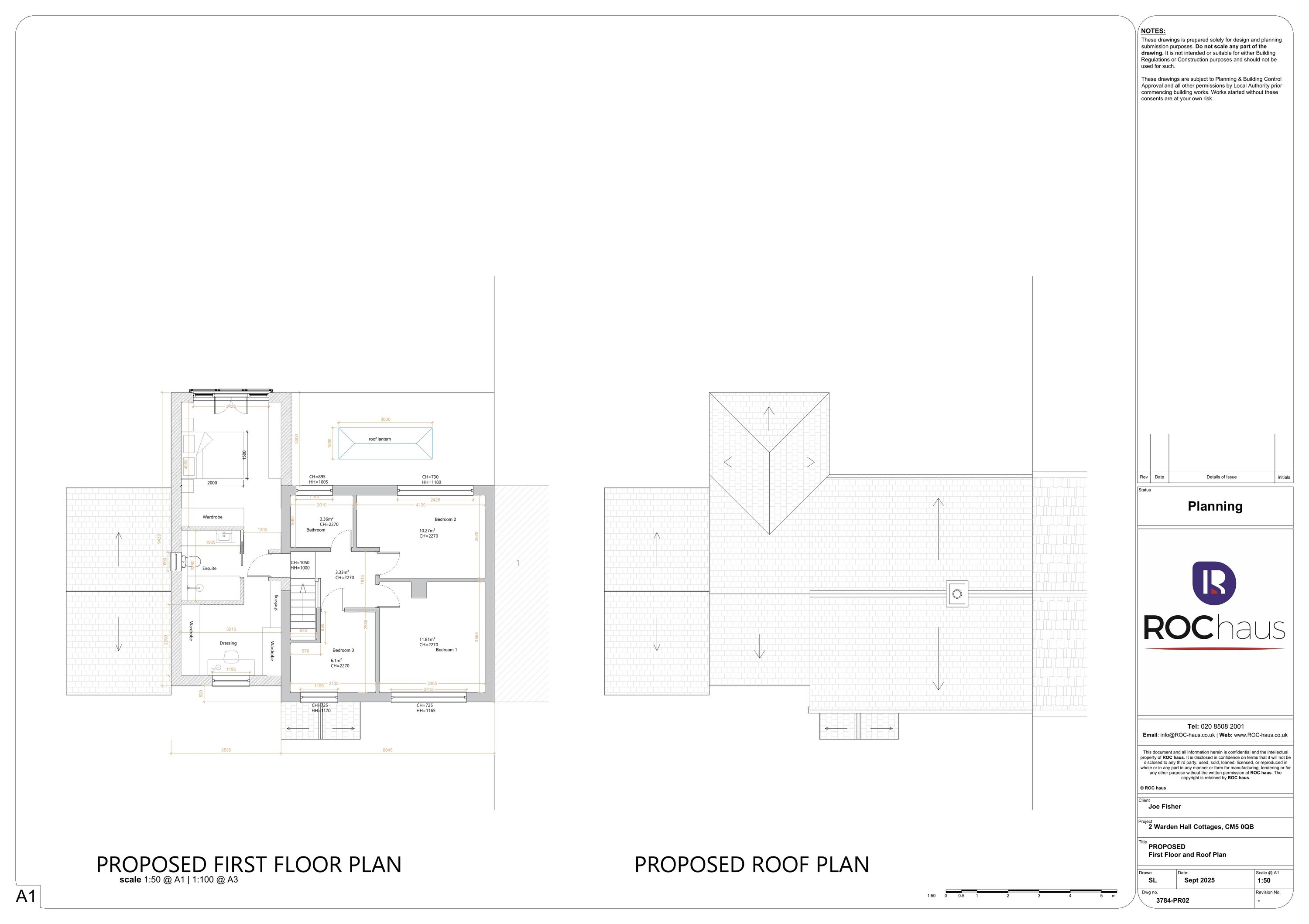
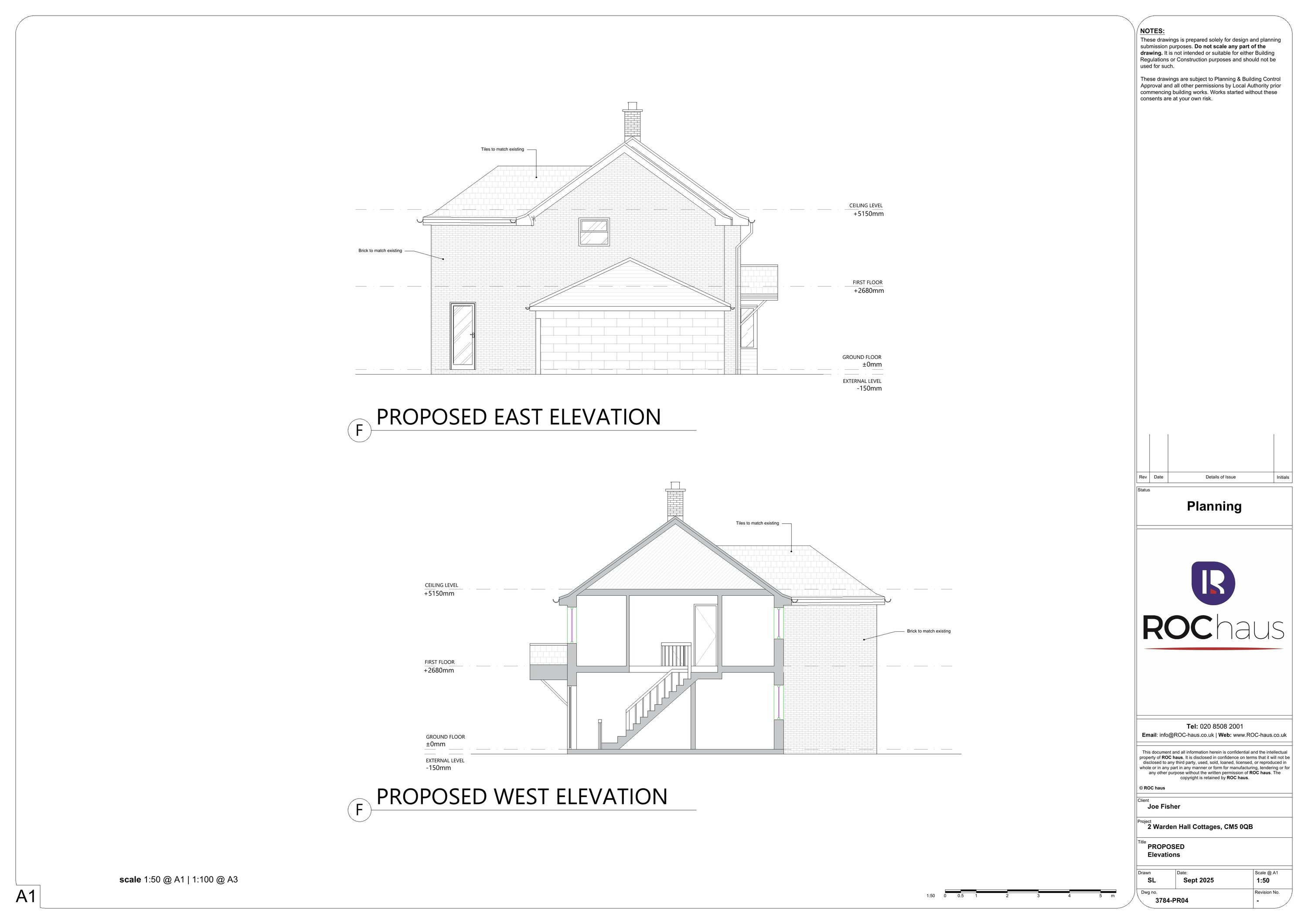
Application Reference EPF/0274/26 Site Address 2 Warden Hall Cottages, Fyfield Road, Willingale, Ongar, CM5 0QB Proposal Demolition of existing side extension. Proposed two storey extension to side and rear and proposed single storey rear extension. Received Date 11/2/2026 Application Status Under Consultation Valid Date 11/2/2026

Documents

Uncategorised
Archived · Original link
Uncategorised
Archived · Original link
Uncategorised
Archived · Original link
Uncategorised
Archived · Original link
Uncategorised
Archived · Original link
Uncategorised
Archived · Original link
Uncategorised
Archived · Original link
Uncategorised
Archived · Original link
Uncategorised
Archived · Original link
Uncategorised
Archived · Original link
Uncategorised
Archived · Original link
Uncategorised
Archived · Original link
Uncategorised
Archived · Original link

Have your say

Your comment matters. Councils must consider every representation that raises material planning considerations.

Write a comment