← Epping Forest District Council

Status

Pending Change of use
Received
Not recorded
New homes
2

Full proposal

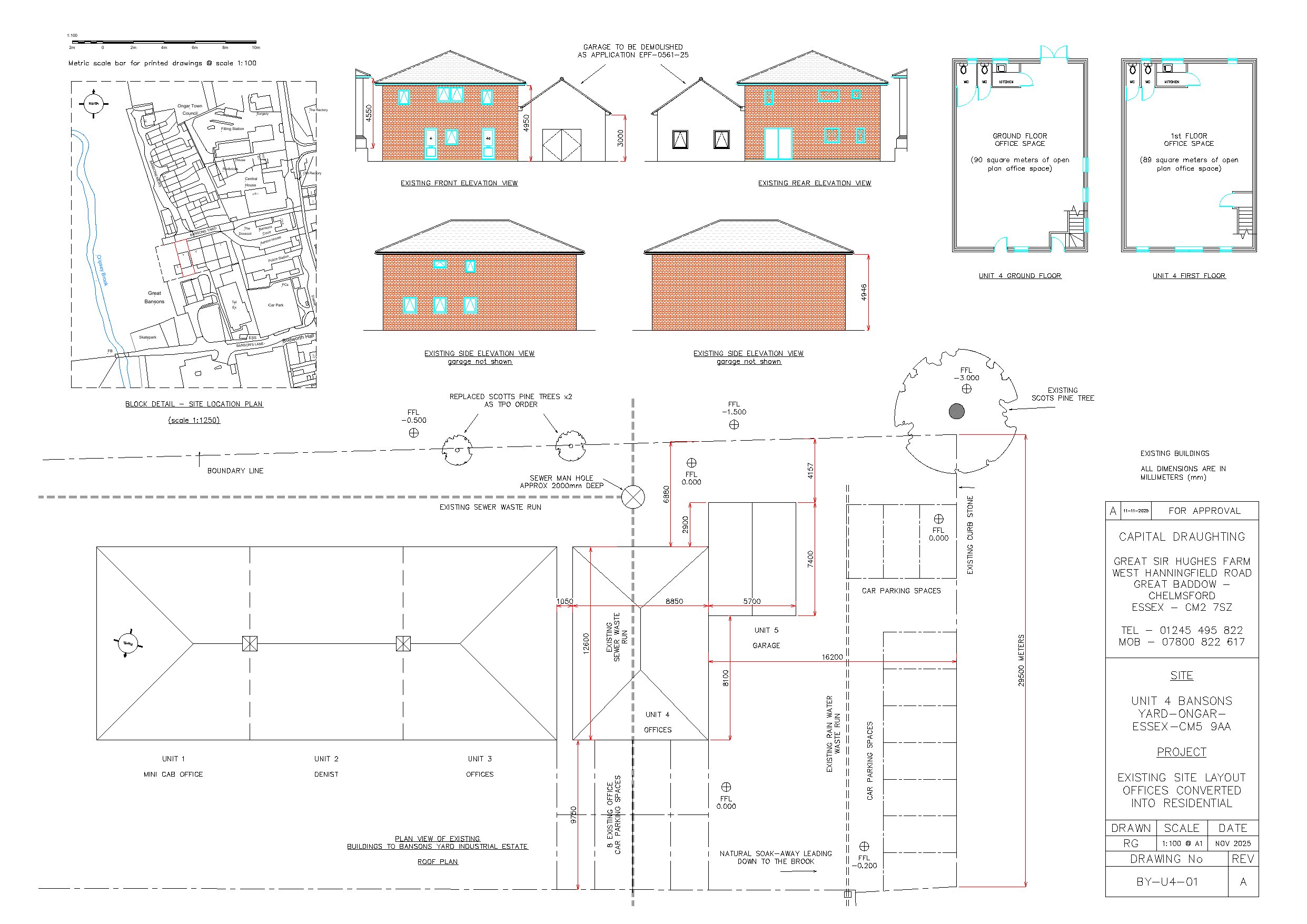
Application Reference EPF/0279/26 Site Address Unit 4 Bansons Yard Bansons Yard High Street Ongar CM5 9AA Proposal Prior approval for change of use from commercial office space to two semi-detached 3 bedroom houses. See also EPF/0244/26 for external alterations. Received Date 11/2/2026 Application Status Under Consultation Valid Date 11/2/2026

Documents

Uncategorised
Archived · Original link
Uncategorised
Archived · Original link
Uncategorised
Archived · Original link
Uncategorised
Archived · Original link
Uncategorised
Archived · Original link
Uncategorised
Archived · Original link
Uncategorised
Archived · Original link
Uncategorised
Archived · Original link
Uncategorised
Archived · Original link
Uncategorised
Archived · Original link

Have your say

Your comment matters. Councils must consider every representation that raises material planning considerations.

Write a comment