← Epping Forest District Council

Status

Pending New housing
Received
Not recorded
New homes
2

Full proposal

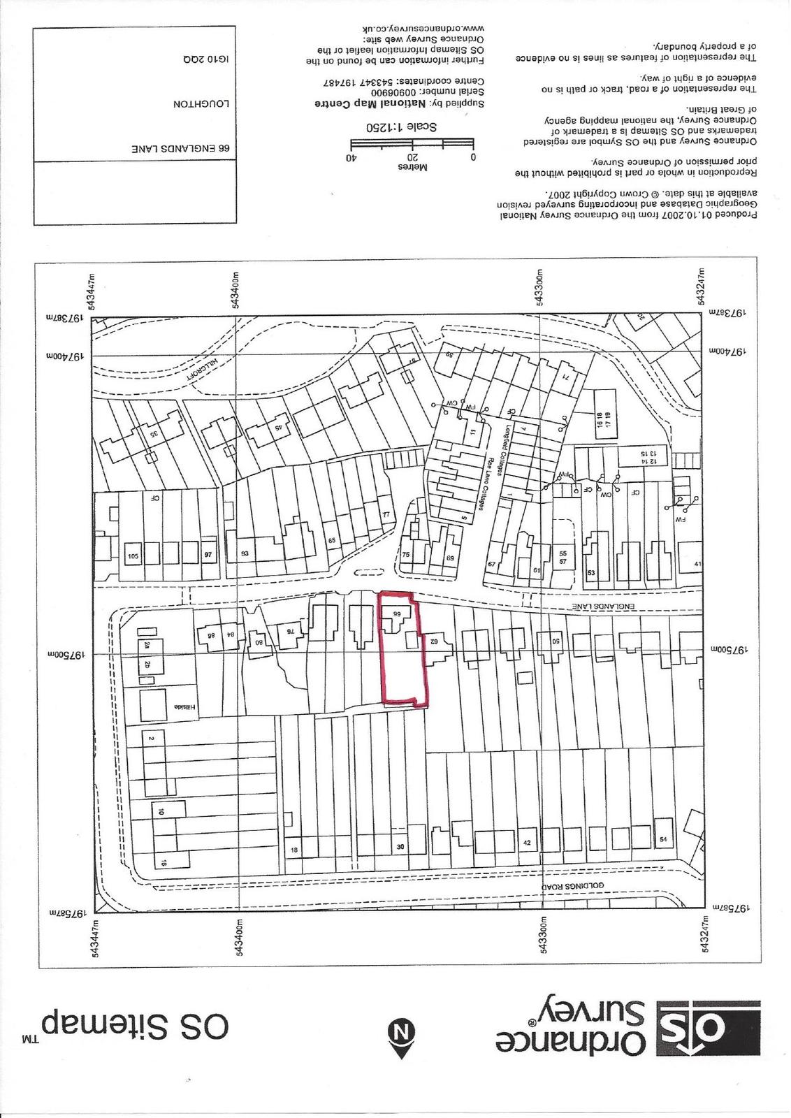
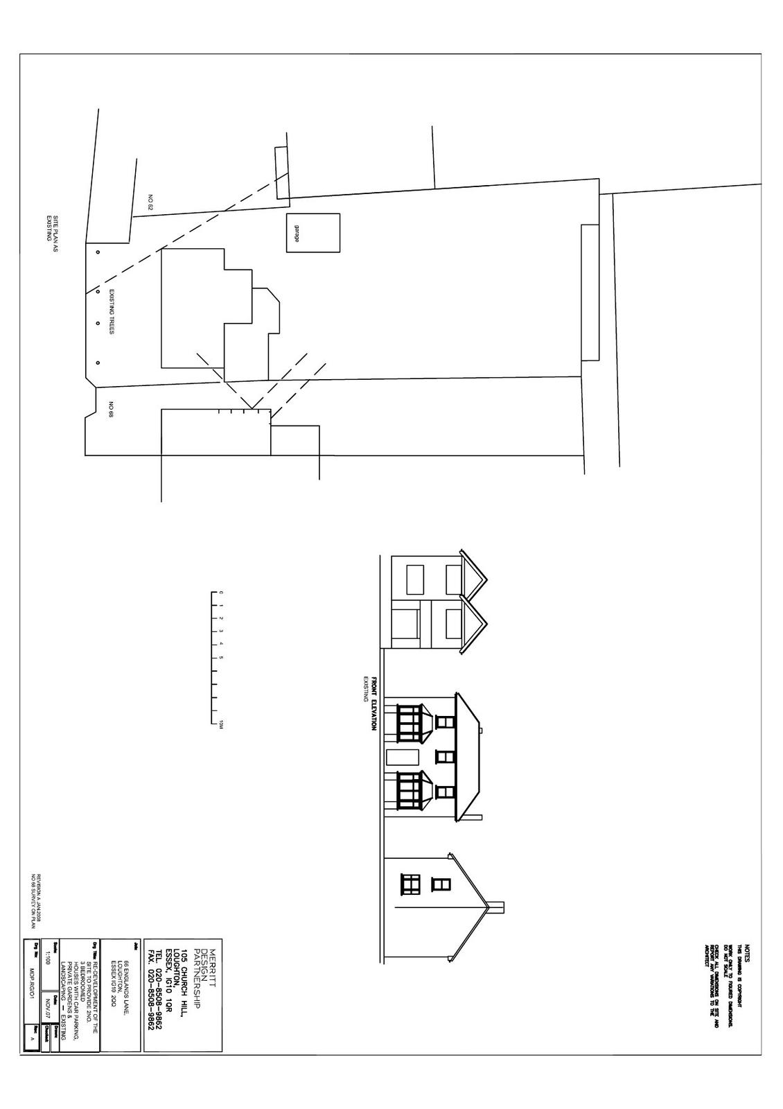
Application Reference EPF/0289/25 Site Address 66, Englands Lane, Loughton, IG10 2QQ Proposal Demolition of existing house and erection of two x 3 bedroom two storey semi-detached houses and two parking spaces Received Date 12/12/2022 Application Status Under Consultation Valid Date 27/1/2025

Documents

Uncategorised
Archived · Original link
Uncategorised
Archived · Original link
Uncategorised
Archived · Original link
Uncategorised
Archived · Original link
Uncategorised
Archived · Original link
Uncategorised
Archived · Original link
Uncategorised
Archived · Original link
Uncategorised
Archived · Original link
Uncategorised
Archived · Original link
Uncategorised
Archived · Original link
Uncategorised
Archived · Original link
Uncategorised
Archived · Original link
Uncategorised
Archived · Original link
Uncategorised
Archived · Original link
Uncategorised
Archived · Original link
Uncategorised
Archived · Original link
Uncategorised
Archived · Original link
Uncategorised
Archived · Original link
Uncategorised
Archived · Original link
Uncategorised
Archived · Original link

Have your say

Your comment matters. Councils must consider every representation that raises material planning considerations.

Write a comment