← Epping Forest District Council

Status

Pending Change of use
Received
Not recorded
New homes
1

Full proposal

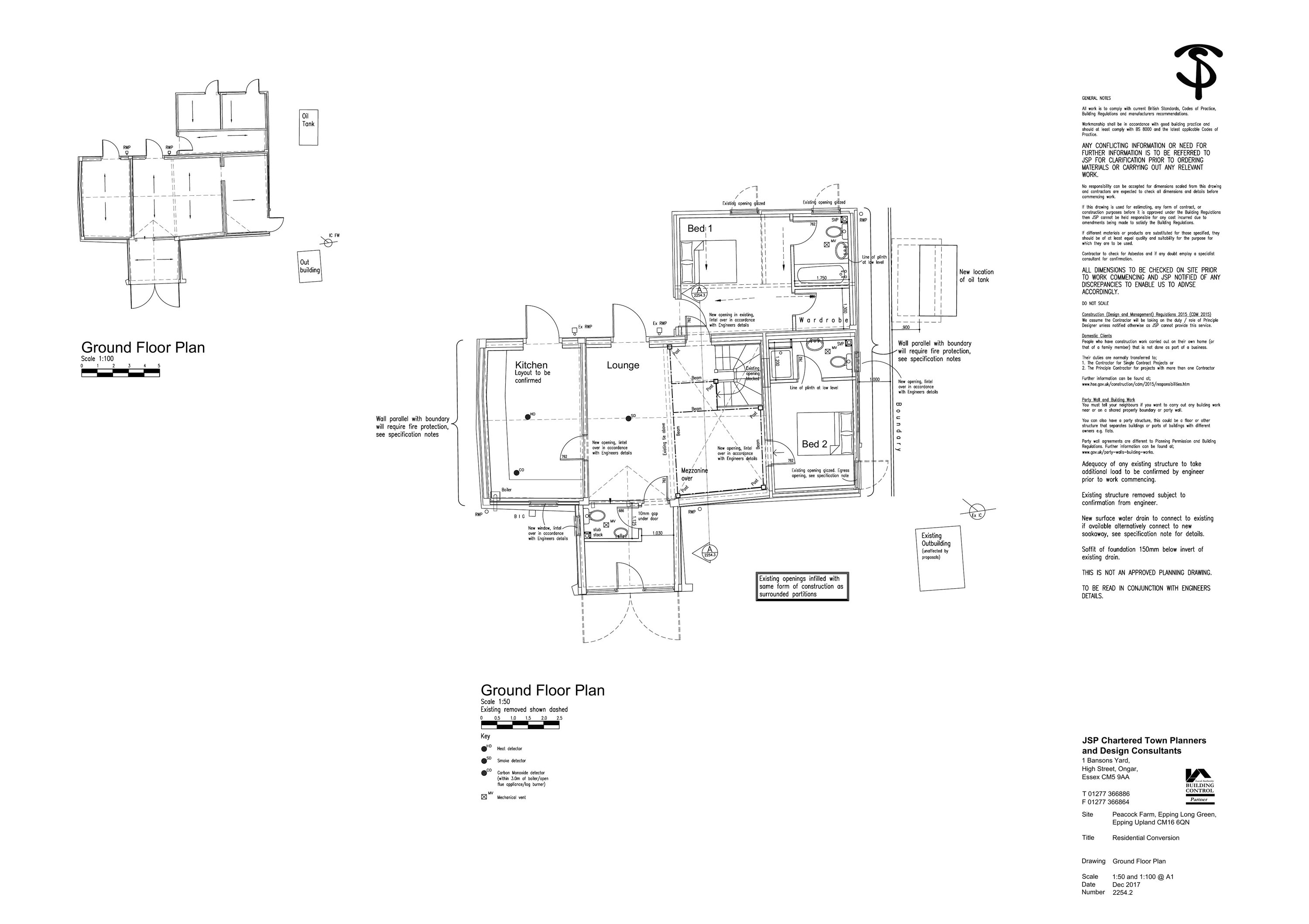
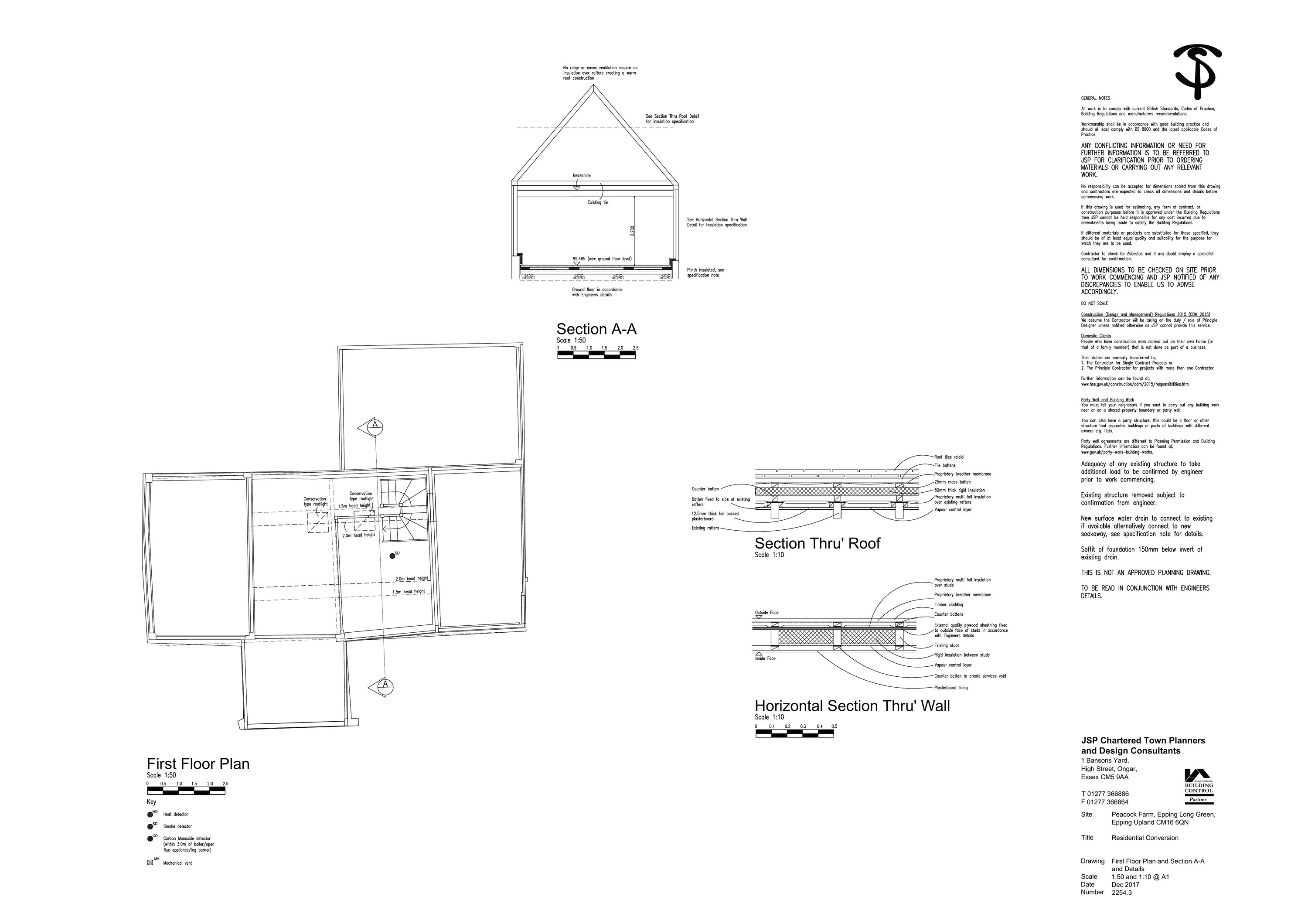
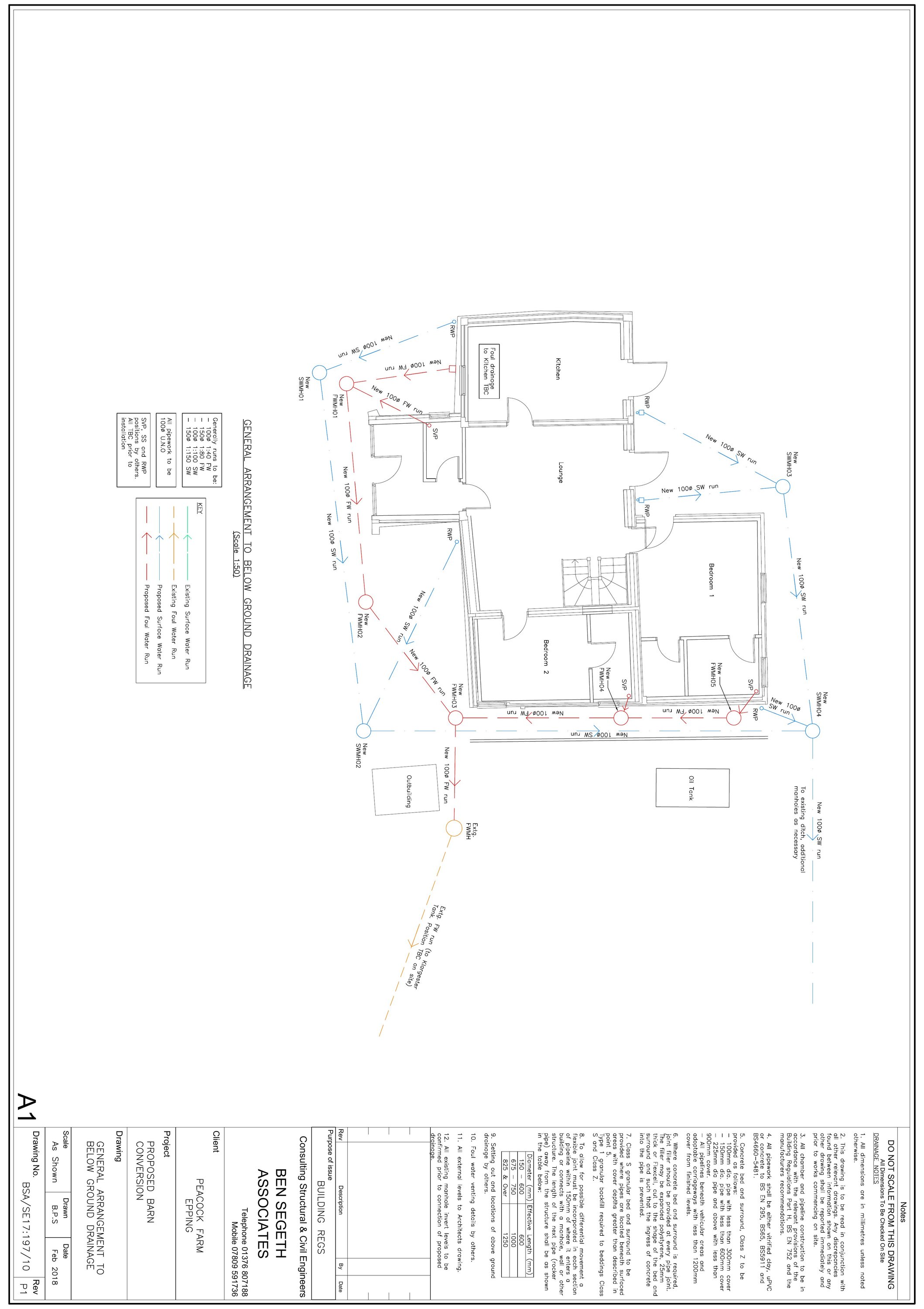
Application Reference EPF/0934/25 Site Address Peacocks Cottage, Epping Long Green, Epping Upland, Epping, CM16 6QN Proposal Change of use and conversion of curtilage building to single dwelling house. Received Date 30/4/2025 Application Status Under Consultation Valid Date 12/8/2025

Documents

Uncategorised
Archived · Original link
Uncategorised
Archived · Original link
Uncategorised
Archived · Original link
Uncategorised
Archived · Original link
Uncategorised
Archived · Original link
Uncategorised
Archived · Original link
Uncategorised
Archived · Original link
Uncategorised
Archived · Original link
Uncategorised
Archived · Original link
Uncategorised
Archived · Original link
Uncategorised
Archived · Original link
Uncategorised
Archived · Original link
Uncategorised
Archived · Original link
Uncategorised
Archived · Original link
Uncategorised
Archived · Original link
Uncategorised
Archived · Original link
Uncategorised
Archived · Original link
Uncategorised
Archived · Original link
Uncategorised
Archived · Original link
Uncategorised
Archived · Original link

Have your say

Your comment matters. Councils must consider every representation that raises material planning considerations.

Write a comment