← Epping Forest District Council

Status

Pending Demolition
Received
Not recorded
New homes
1

Full proposal

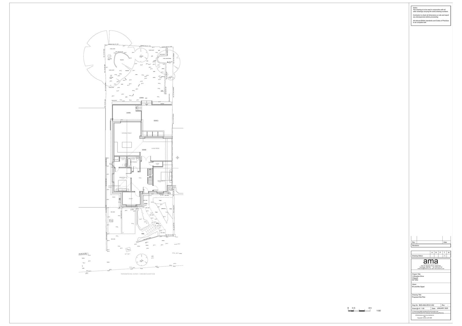
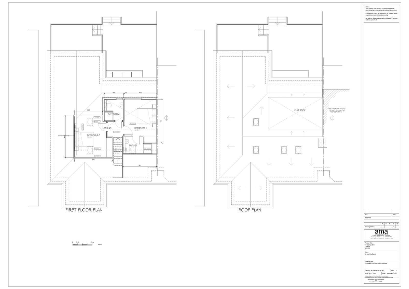
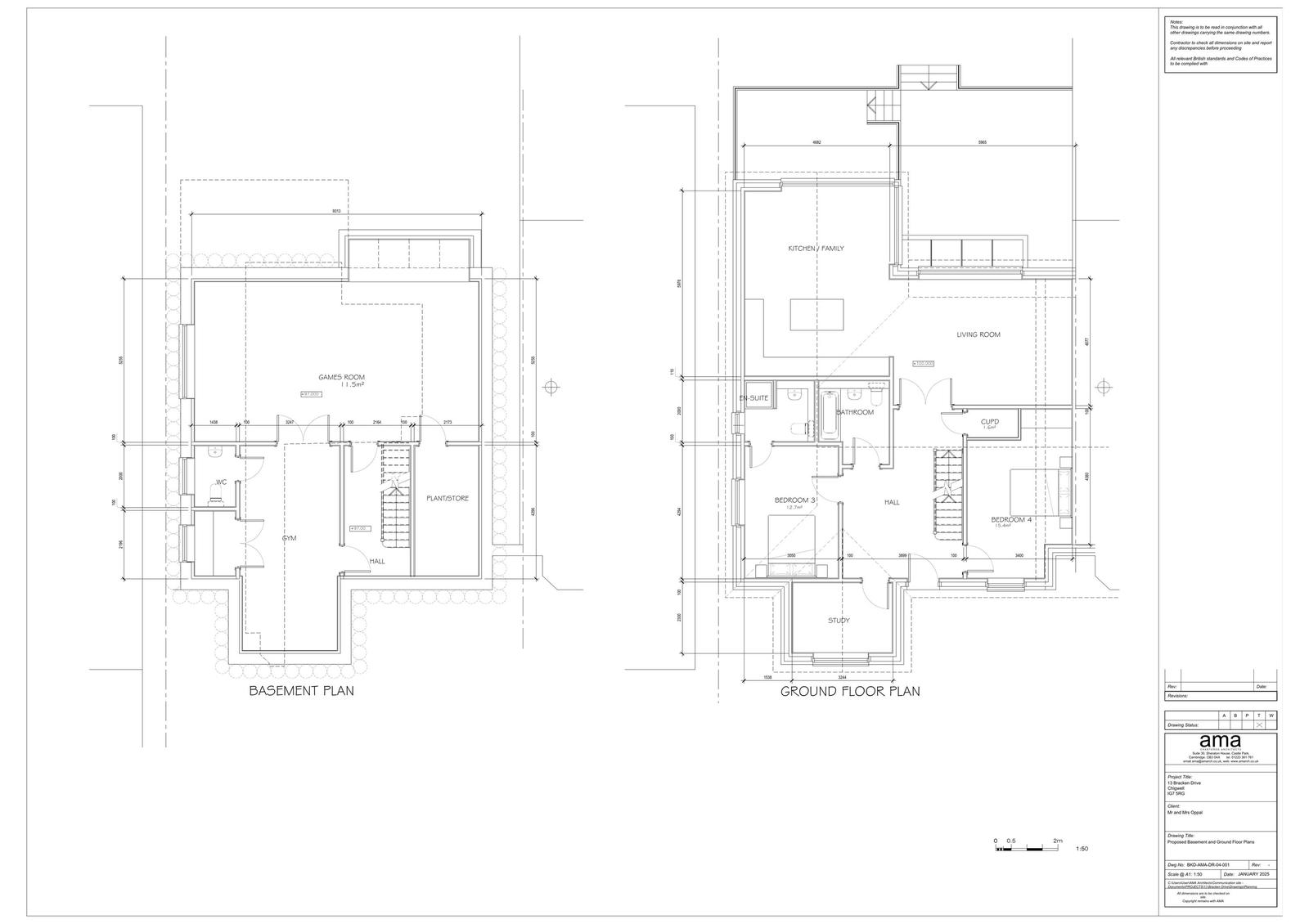
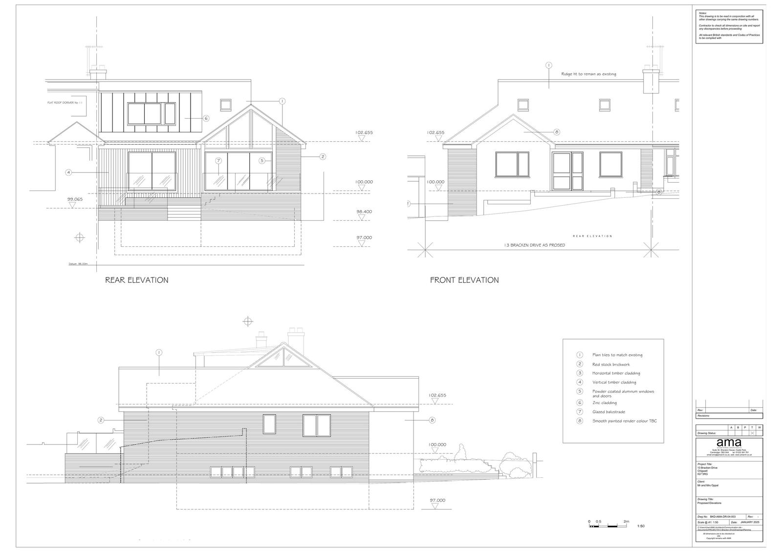
Application Reference EPF/1437/25 Site Address 13, Bracken Drive, Chigwell, IG7 5RG Proposal Demolition of an existing 3 bedroom semi detached bungalow including basement and erection of a new 4 bed semi detached bungalow and basement, rear patio and rear dormer. Received Date 16/7/2025 Application Status Decision Made Valid Date 04/8/2025

Documents

Uncategorised
Archived · Original link
Uncategorised
Archived · Original link
Uncategorised
Archived · Original link
Uncategorised
Archived · Original link
Uncategorised
Archived · Original link
Uncategorised
Archived · Original link
Uncategorised
Archived · Original link
Uncategorised
Archived · Original link
Uncategorised
Archived · Original link
Uncategorised
Archived · Original link
Uncategorised
Archived · Original link
Uncategorised
Archived · Original link
Uncategorised
Archived · Original link
Uncategorised
Archived · Original link
Uncategorised
Archived · Original link
Uncategorised
Archived · Original link
Uncategorised
Archived · Original link
Uncategorised
Archived · Original link
Uncategorised
Archived · Original link
Uncategorised
Archived · Original link

Have your say

Your comment matters. Councils must consider every representation that raises material planning considerations.

Write a comment