← Epping Forest District Council
EPF/1498/25
Epping Forest District Council
Status
Pending
House extension
Received
Not recorded
New homes
0
Full proposal
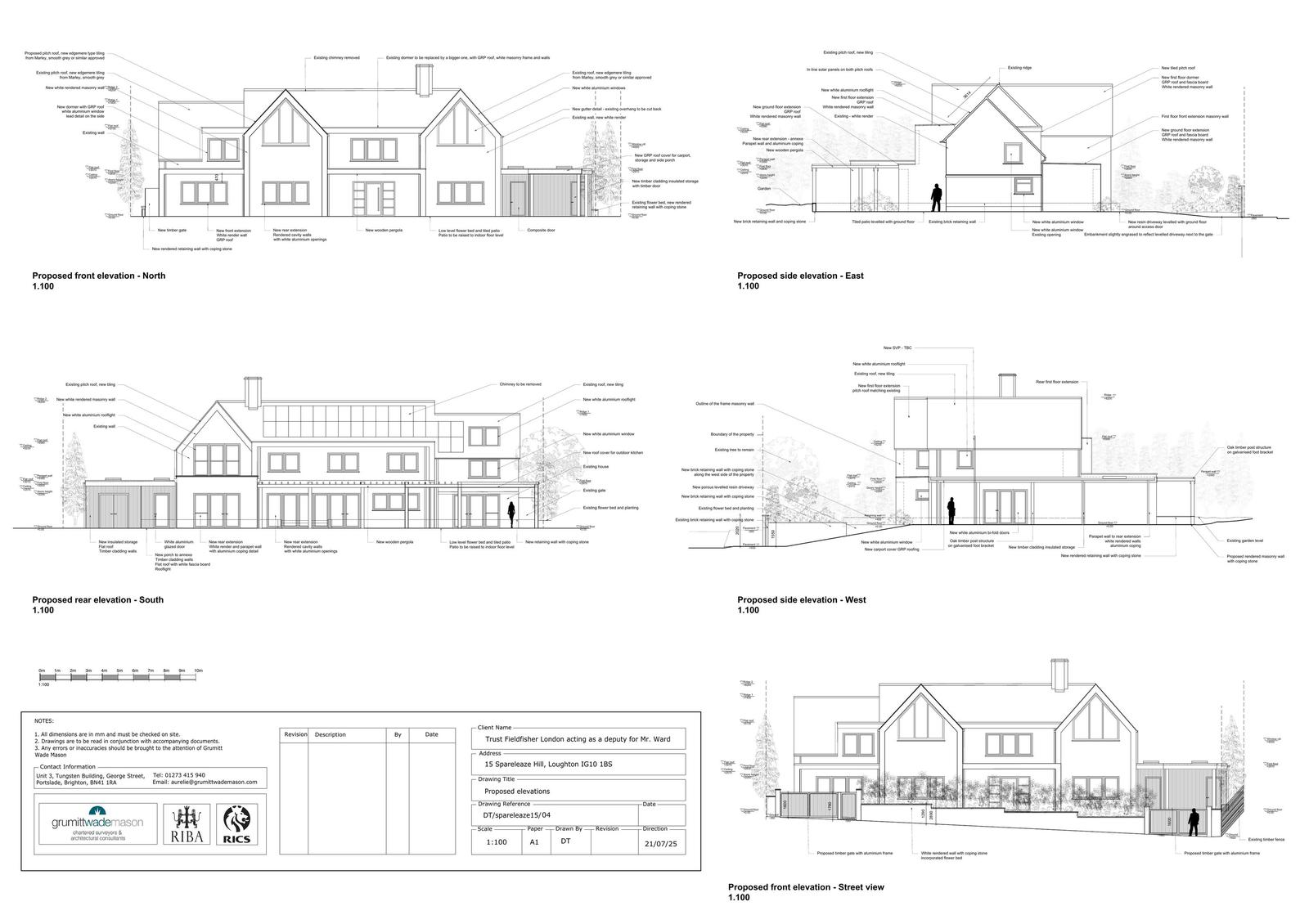
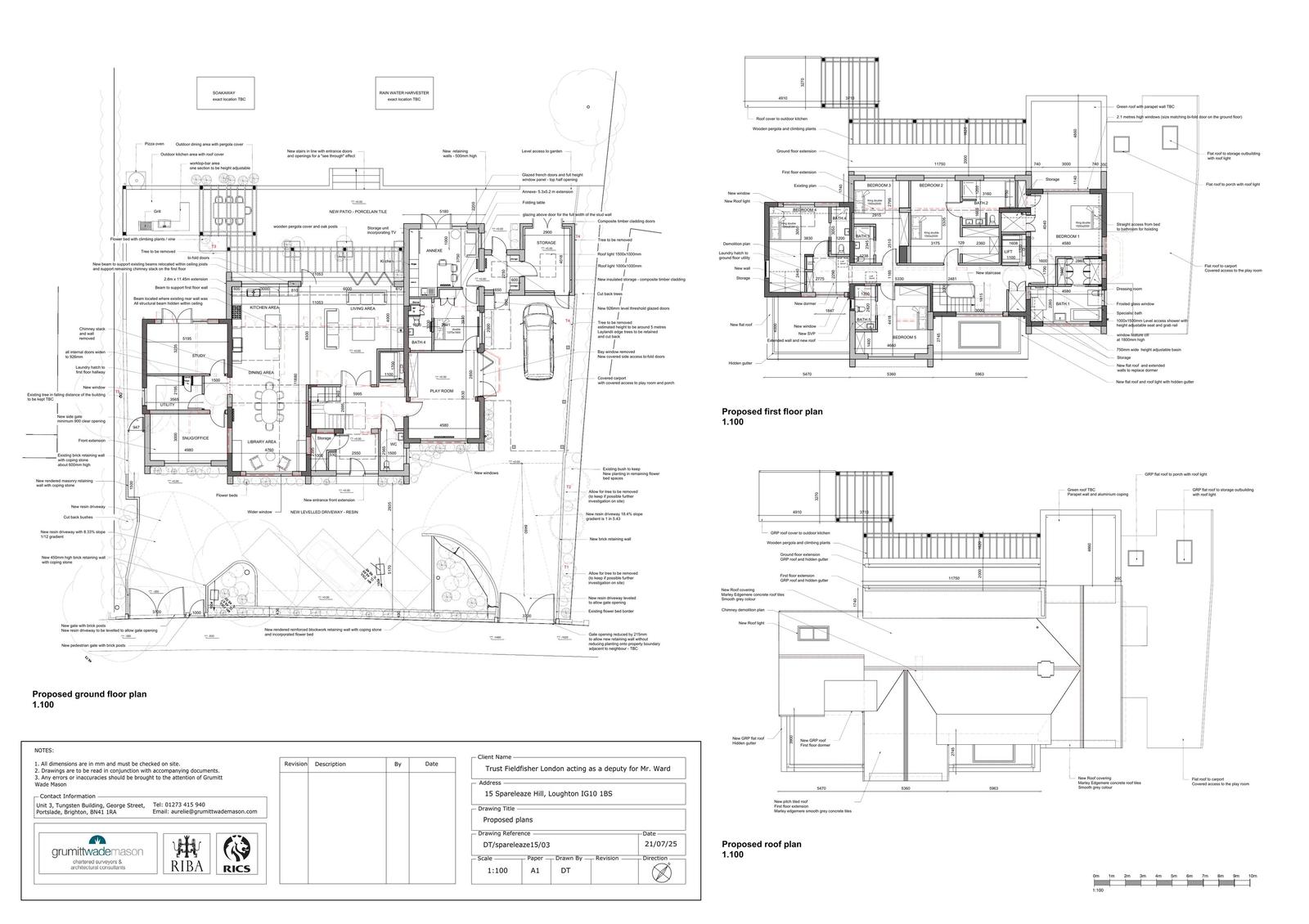
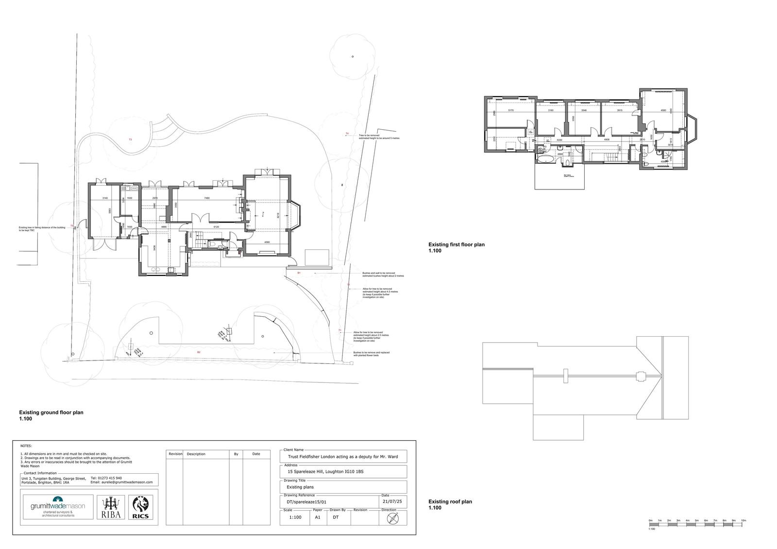
Application Reference EPF/1498/25 Site Address 15, Spareleaze Hill, Loughton, IG10 1BS Proposal Proposed extension and refurbishment of the existing dwelling. Received Date 22/7/2025 Application Status Decision Made Valid Date 06/8/2025
Documents
Have your say
Your comment matters. Councils must consider every representation that raises material planning considerations.