← Epping Forest District Council

Status

Pending Change of use
Received
Not recorded
New homes
0

Full proposal

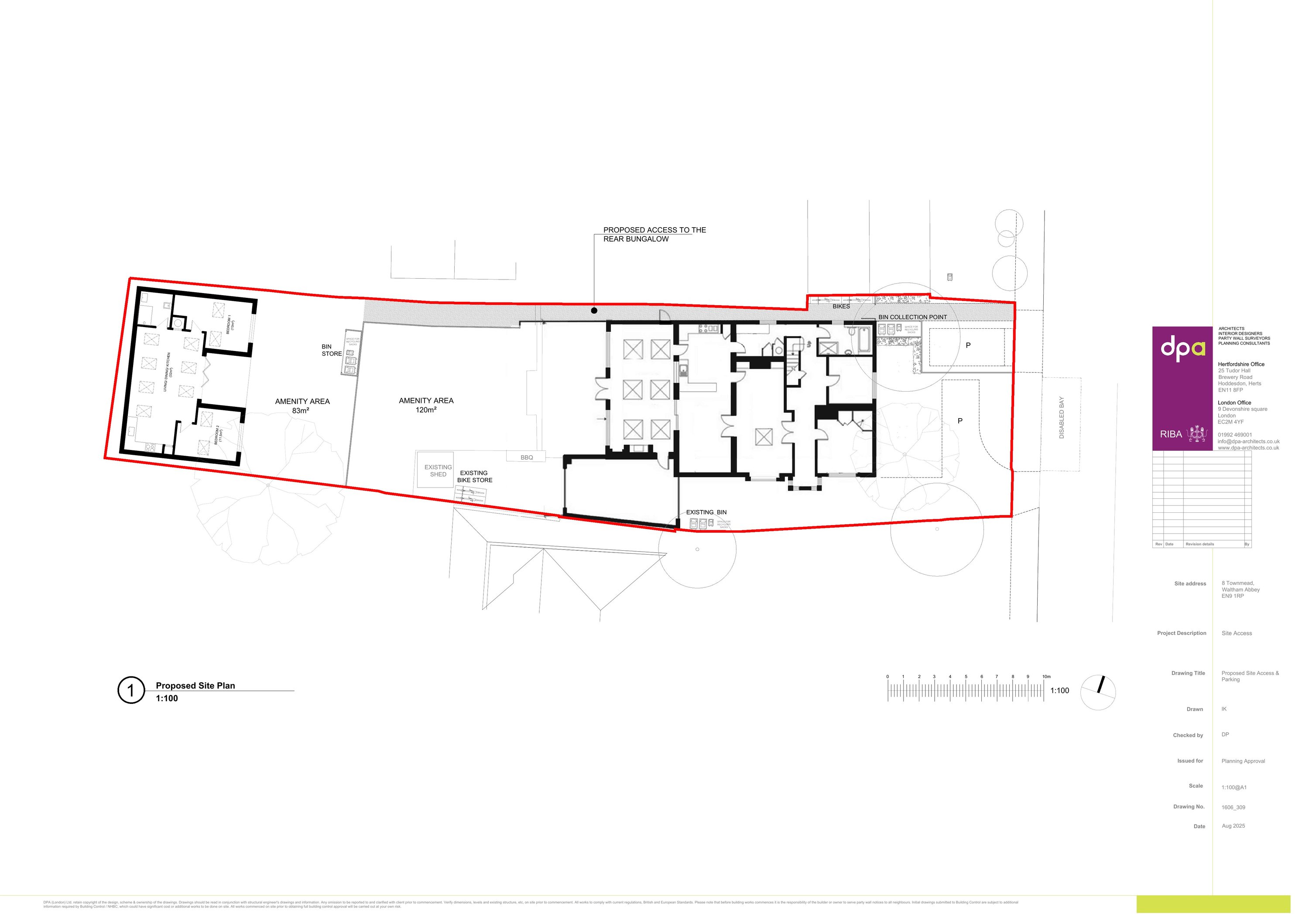
Application Reference EPF/1557/25 Site Address 8, The Bungalow, Townmead Road, Waltham Abbey, EN9 1RP Proposal Change of Use of existing Annex to bungalow. Received Date 31/7/2025 Application Status Decision Made Valid Date 12/8/2025

Documents

Uncategorised
Archived · Original link
Uncategorised
Archived · Original link
Uncategorised
Archived · Original link
Uncategorised
Archived · Original link
Uncategorised
Archived · Original link
Uncategorised
Archived · Original link
Uncategorised
Archived · Original link
Uncategorised
Archived · Original link
Uncategorised
Archived · Original link
Uncategorised
Archived · Original link

Have your say

Your comment matters. Councils must consider every representation that raises material planning considerations.

Write a comment