← Epping Forest District Council

Status

Pending House extension
Received
Not recorded
New homes
0

Full proposal

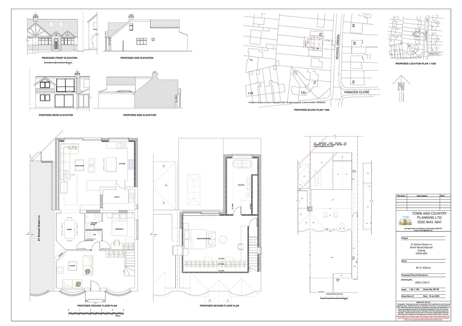
Application Reference EPF/1566/25 Site Address 21, School Green Lane, North Weald Bassett, Epping, CM16 6EH Proposal Single storey and two storey rear extension inc. hip to gable loft conversion with rear facing dormer window and two front elevation roof light windows. Received Date 01/8/2025 Application Status Decision Made Valid Date 07/8/2025

Documents

Uncategorised
Archived · Original link
Uncategorised
Archived · Original link
Uncategorised
Archived · Original link
Uncategorised
Archived · Original link
Uncategorised
Archived · Original link
Uncategorised
Archived · Original link
Uncategorised
Archived · Original link
Uncategorised
Archived · Original link

Have your say

Your comment matters. Councils must consider every representation that raises material planning considerations.

Write a comment