← Epping Forest District Council

Status

Pending House extension
Received
Not recorded
New homes
0

Full proposal

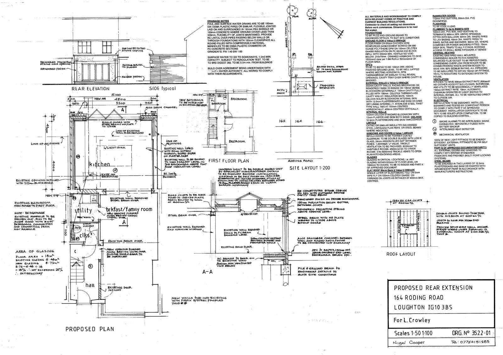
Application Reference EPF/1620/25 Site Address 164, Roding Road, Loughton, IG10 3BS Proposal Demolition of existing rear single storey extension and erection of single storey rear extension with raised patio. Received Date 07/8/2025 Application Status Decision Made Valid Date 20/8/2025

Documents

Uncategorised
Archived · Original link
Uncategorised
Archived · Original link
Uncategorised
Archived · Original link
Uncategorised
Archived · Original link
Uncategorised
Archived · Original link
Uncategorised
Archived · Original link
Uncategorised
Archived · Original link
Uncategorised
Archived · Original link

Have your say

Your comment matters. Councils must consider every representation that raises material planning considerations.

Write a comment