← Epping Forest District Council

Status

Pending House extension
Received
Not recorded
New homes
0

Full proposal

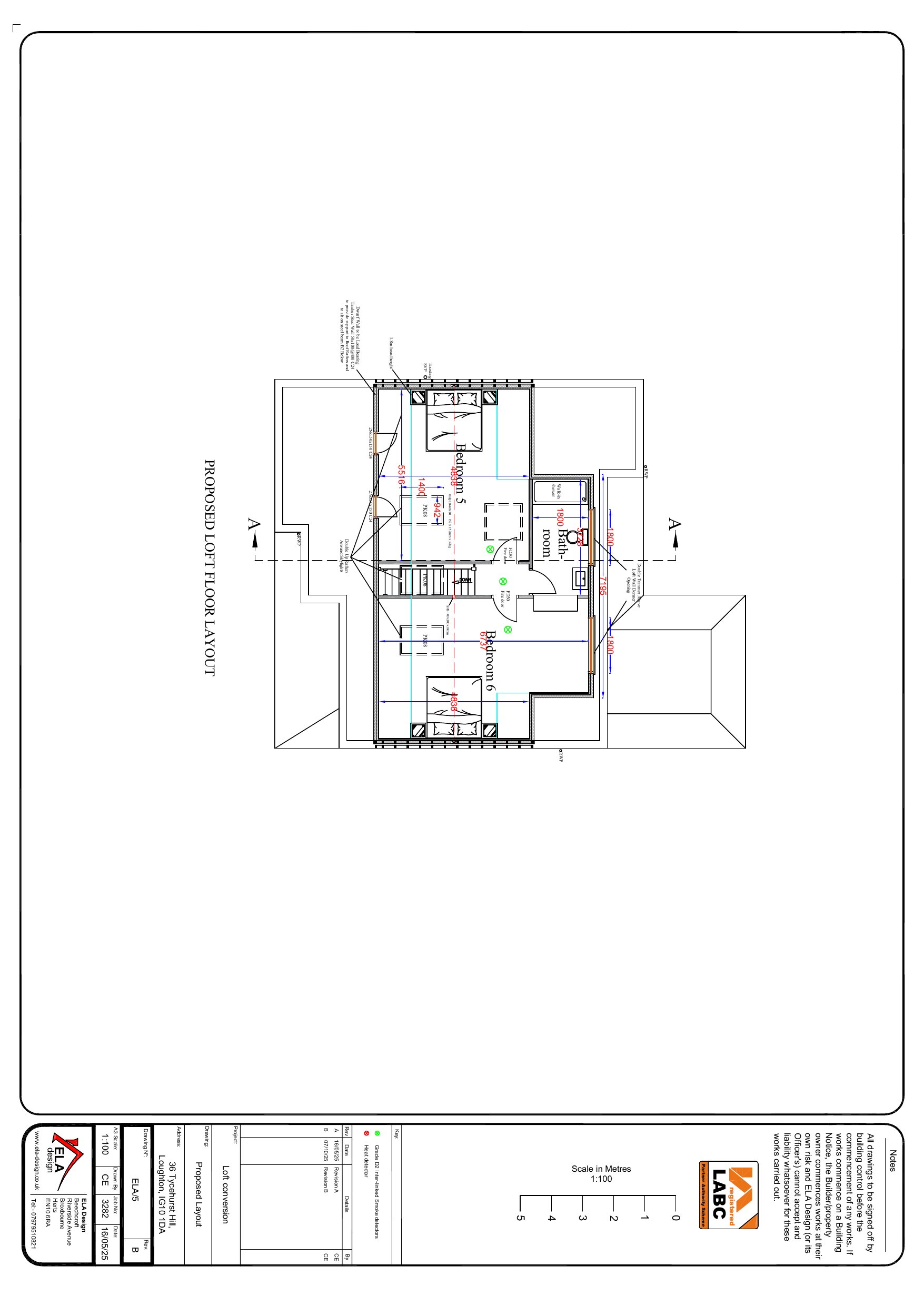
Application Reference EPF/1648/25 Site Address 36, Tycehurst Hill, Loughton, IG10 1DA Proposal Loft conversion with rear dormer and 3 roof lights to front. Received Date 13/8/2025 Application Status Decision Made Valid Date 13/8/2025

Documents

Uncategorised
Archived · Original link
Uncategorised
Archived · Original link
Uncategorised
Archived · Original link
Uncategorised
Archived · Original link
Uncategorised
Archived · Original link
Uncategorised
Archived · Original link
Uncategorised
Archived · Original link
Uncategorised
Archived · Original link
Uncategorised
Archived · Original link
Uncategorised
Archived · Original link

Have your say

Your comment matters. Councils must consider every representation that raises material planning considerations.

Write a comment