← Epping Forest District Council

Status

Pending New housing
Received
Not recorded
New homes
1

Full proposal

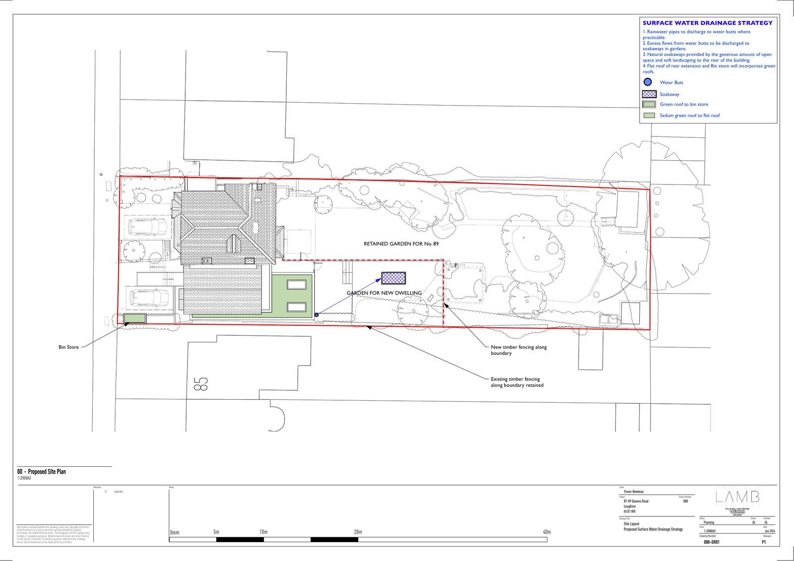
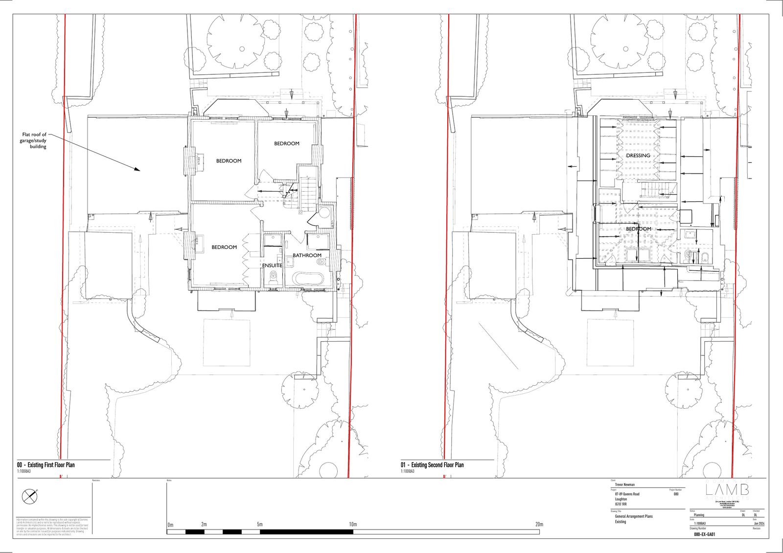
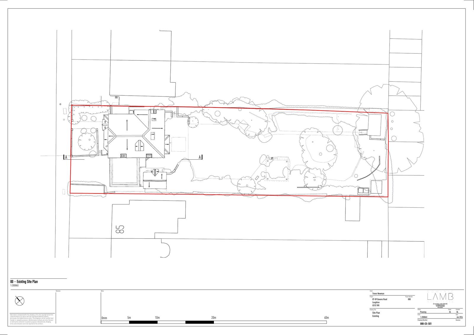
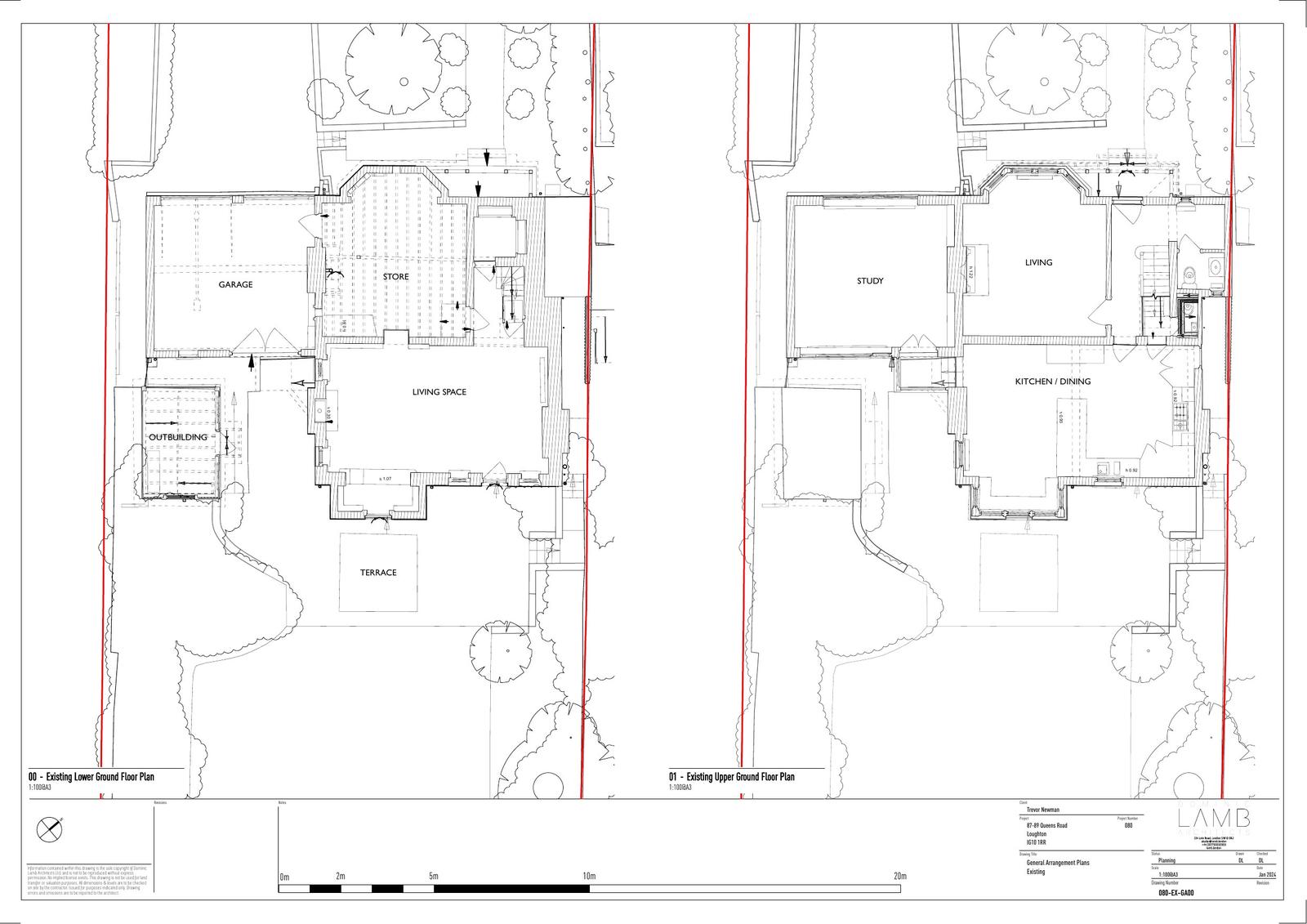
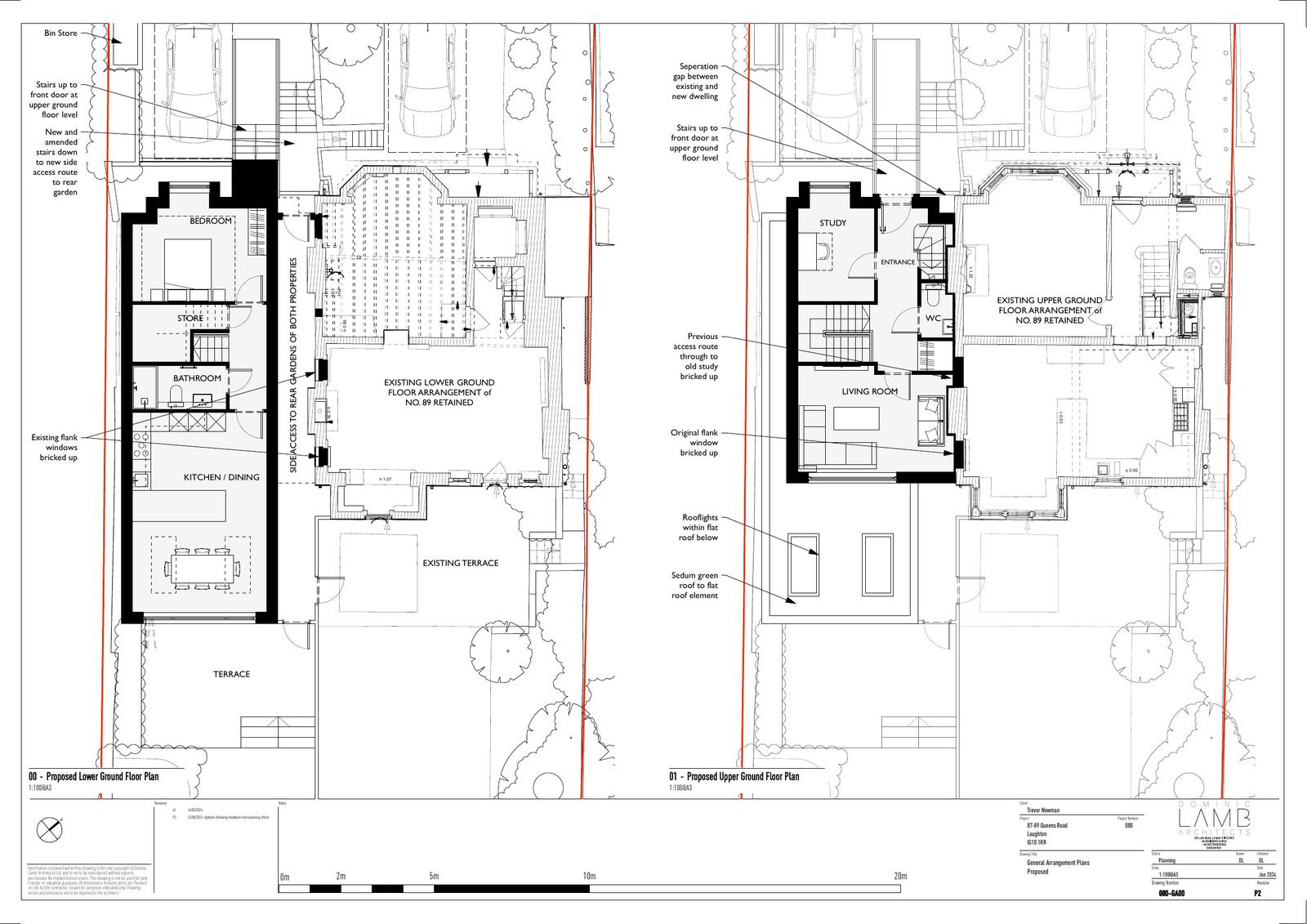
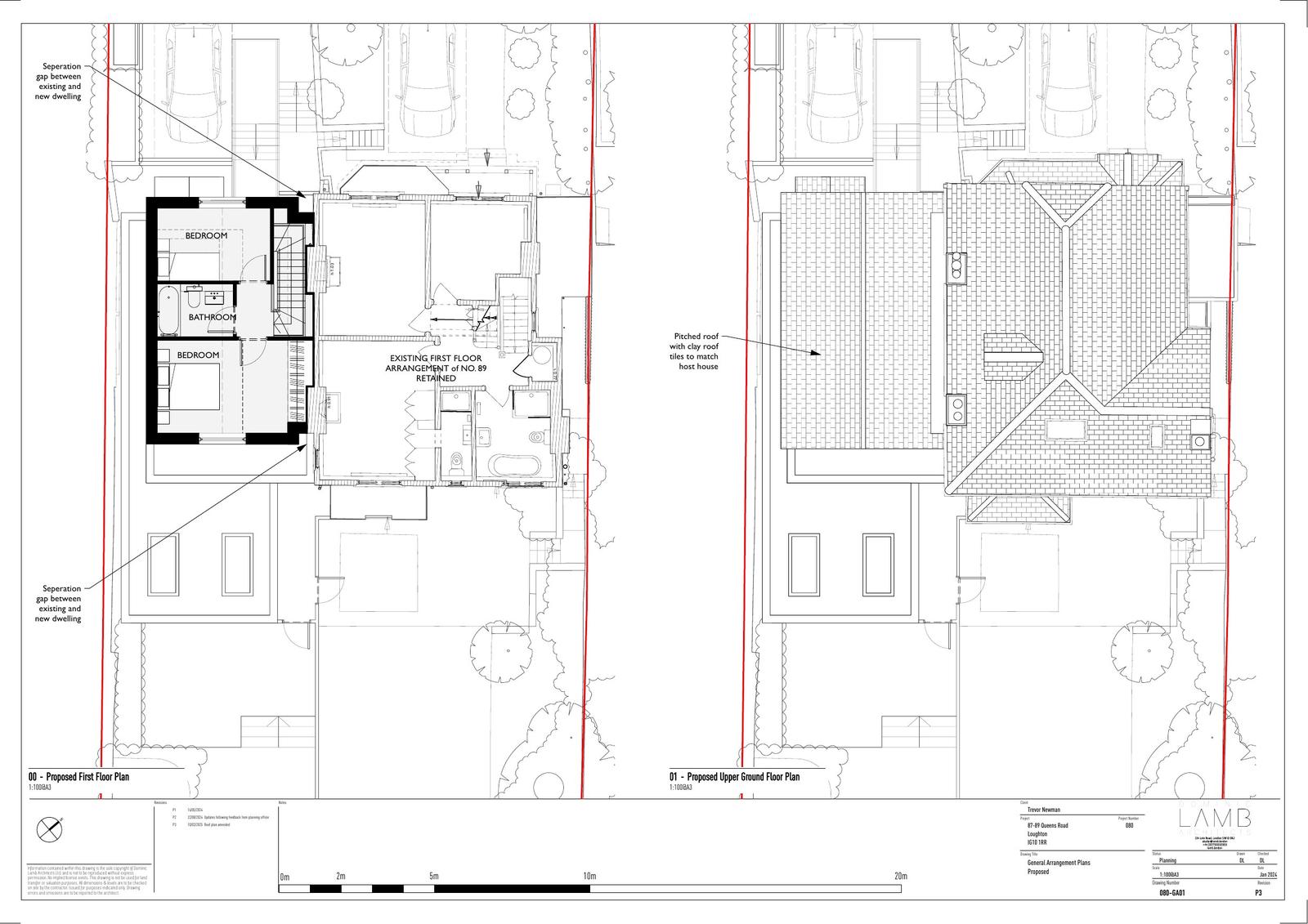
Application Reference EPF/1666/25 Site Address 89, Queens Road, Loughton, IG10 1RR Proposal Demolition of 2 storey side extension and construction of a single self-build dwelling. Received Date 15/8/2025 Application Status Under Consultation Valid Date 03/9/2025

Documents

Uncategorised
Archived · Original link
Uncategorised
Archived · Original link
Uncategorised
Archived · Original link
Uncategorised
Archived · Original link
Uncategorised
Archived · Original link
Uncategorised
Archived · Original link
Uncategorised
Archived · Original link
Uncategorised
Archived · Original link
Uncategorised
Archived · Original link
Uncategorised
Archived · Original link
Uncategorised
Archived · Original link
Uncategorised
Archived · Original link
Uncategorised
Archived · Original link
Uncategorised
Archived · Original link
Uncategorised
Archived · Original link
Uncategorised
Archived · Original link
Uncategorised
Archived · Original link
Uncategorised
Archived · Original link
Uncategorised
Archived · Original link
Uncategorised
Archived · Original link

Have your say

Your comment matters. Councils must consider every representation that raises material planning considerations.

Write a comment