← Epping Forest District Council

Status

Pending House extension
Received
Not recorded
New homes
0

Full proposal

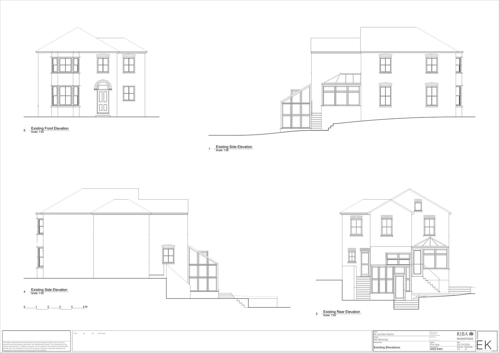
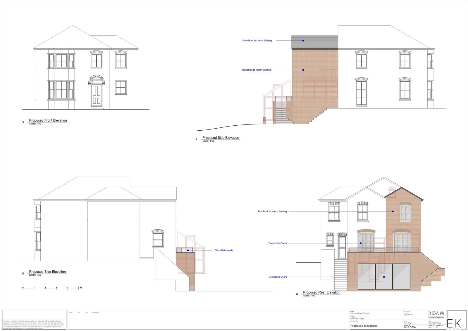
Application Reference EPF/1668/25 Site Address 33, Chapel Road, Epping, CM16 5DS Proposal Demolition of existing garage and rear conservatories. Erection of new garage with first floor guest bedroom. Erection of 2 storey rear extension, conversion of basement into habitable rooms and other internal changes. Received Date 15/8/2025 Application Status Decision Made Valid Date 21/8/2025

Documents

Uncategorised
Archived · Original link
Uncategorised
Archived · Original link
Uncategorised
Archived · Original link
Uncategorised
Archived · Original link
Uncategorised
Archived · Original link
Uncategorised
Archived · Original link
Uncategorised
Archived · Original link
Uncategorised
Archived · Original link
Uncategorised
Archived · Original link
Uncategorised
Archived · Original link
Uncategorised
Archived · Original link
Uncategorised
Archived · Original link
Uncategorised
Archived · Original link

Have your say

Your comment matters. Councils must consider every representation that raises material planning considerations.

Write a comment