← Epping Forest District Council

Status

Pending House extension
Received
Not recorded
New homes
0

Full proposal

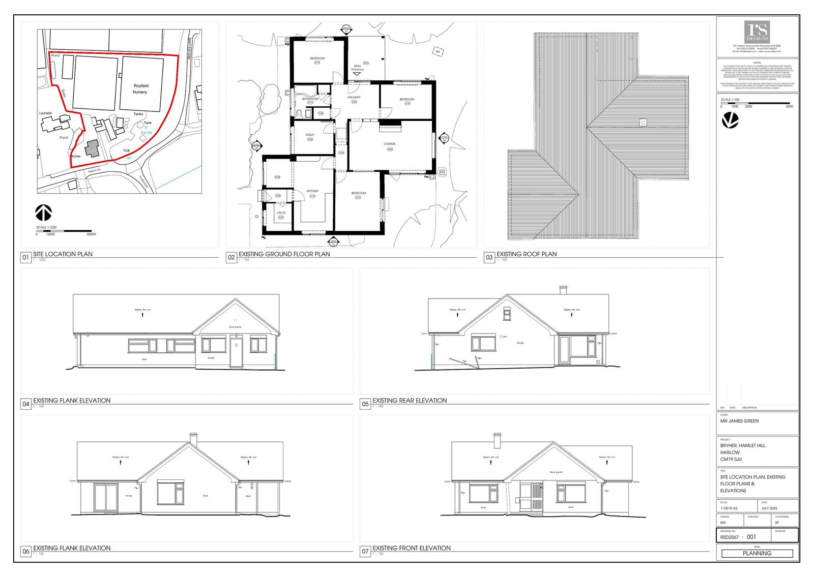
Application Reference EPF/1775/25 Site Address Bryher, Hamlet Hill, Roydon, Harlow, CM19 5JU Proposal Proposed raising height of the existing bungalow to form rooms in the roof served by 2 flank dormers and 2 rear dormer windows, along with a front porch infill extension. Received Date 03/9/2025 Application Status Decision Made Valid Date 03/9/2025

Documents

Uncategorised
Archived · Original link
Uncategorised
Archived · Original link
Uncategorised
Archived · Original link
Uncategorised
Archived · Original link
Uncategorised
Archived · Original link
Uncategorised
Archived · Original link
Uncategorised
Archived · Original link
Uncategorised
Archived · Original link
Uncategorised
Archived · Original link

Have your say

Your comment matters. Councils must consider every representation that raises material planning considerations.

Write a comment