← Epping Forest District Council

Status

Pending House extension
Received
Not recorded
New homes
0

Full proposal

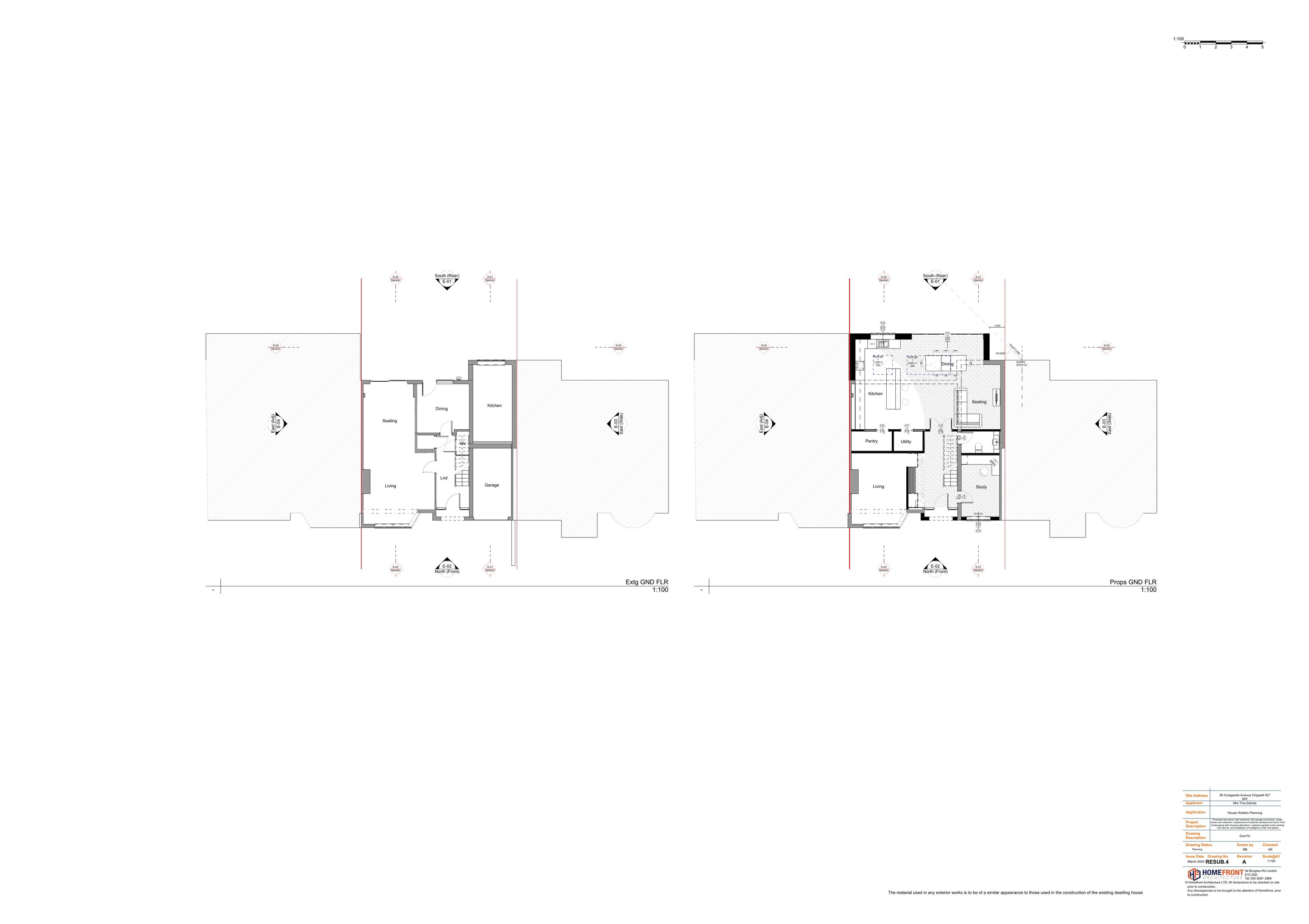
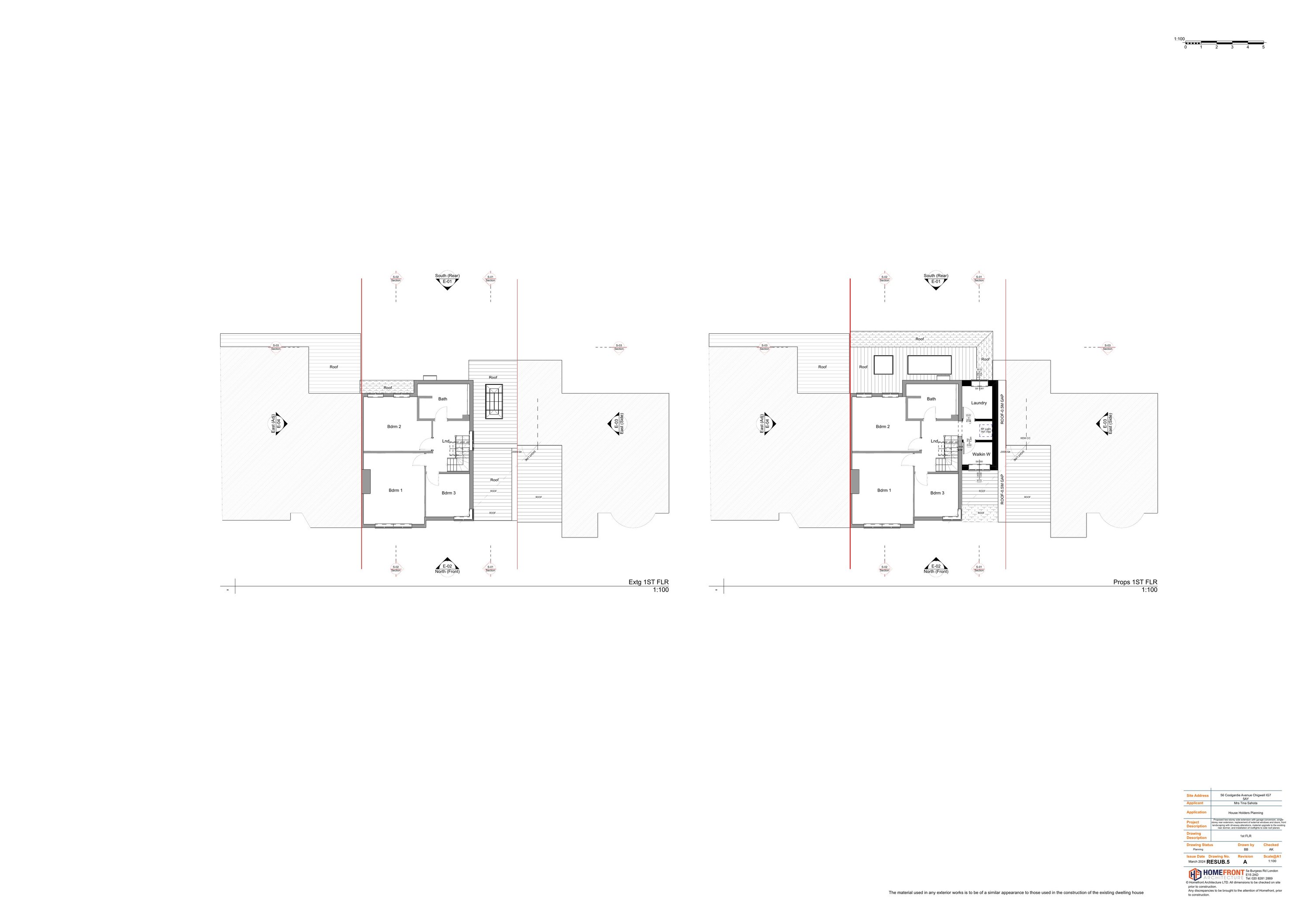
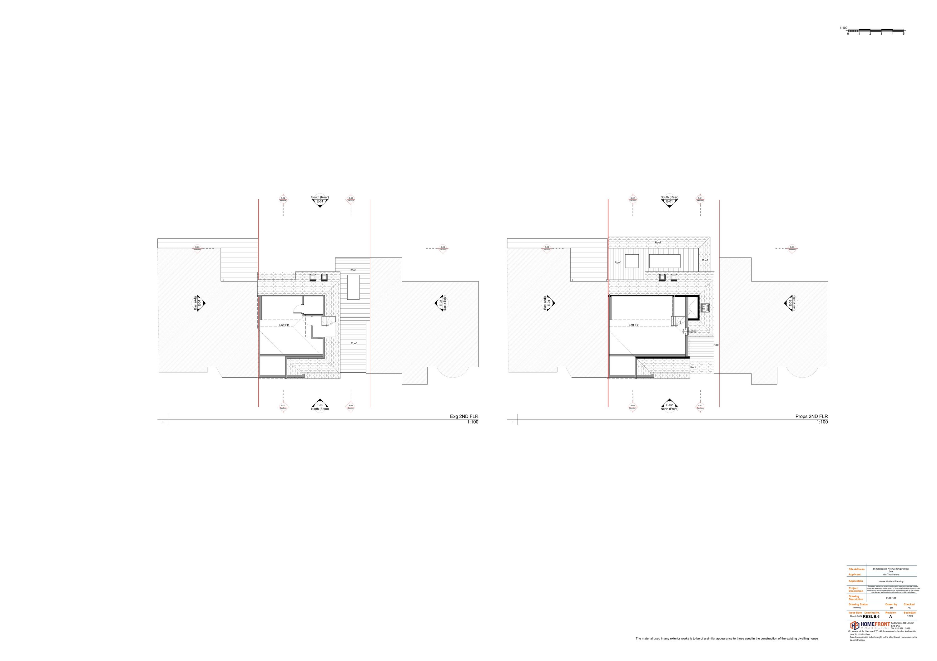
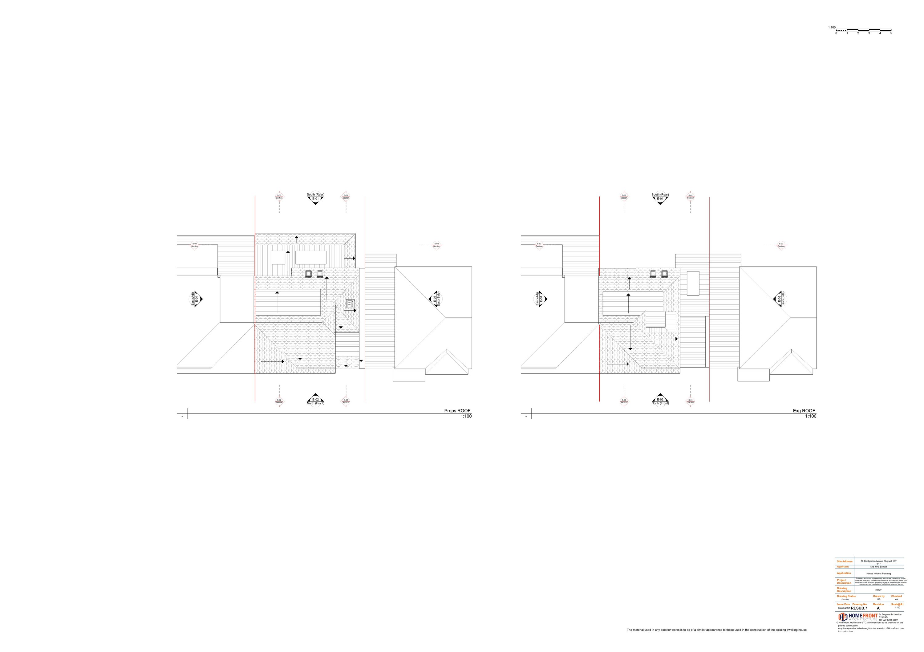
Application Reference EPF/1790/25 Site Address 56, Coolgardie Avenue, Chigwell, IG7 5AY Proposal Proposed two-storey side extension with garage conversion, single-storey rear extension, replacement of external windows and doors, front landscaping with driveway alterations, material upgrade to the existing rear dormer, and installation of rooflights to side roof planes. Received Date 04/9/2025 Application Status Decision Made Valid Date 04/9/2025

Documents

Uncategorised
Archived · Original link
Uncategorised
Archived · Original link
Uncategorised
Archived · Original link
Uncategorised
Archived · Original link
Uncategorised
Archived · Original link
Uncategorised
Archived · Original link
Uncategorised
Archived · Original link
Uncategorised
Archived · Original link
Uncategorised
Archived · Original link
Uncategorised
Archived · Original link
Uncategorised
Archived · Original link
Uncategorised
Archived · Original link
Uncategorised
Archived · Original link
Uncategorised
Archived · Original link
Uncategorised
Archived · Original link

Have your say

Your comment matters. Councils must consider every representation that raises material planning considerations.

Write a comment