← Epping Forest District Council

Status

Pending House extension
Received
Not recorded
New homes
0

Full proposal

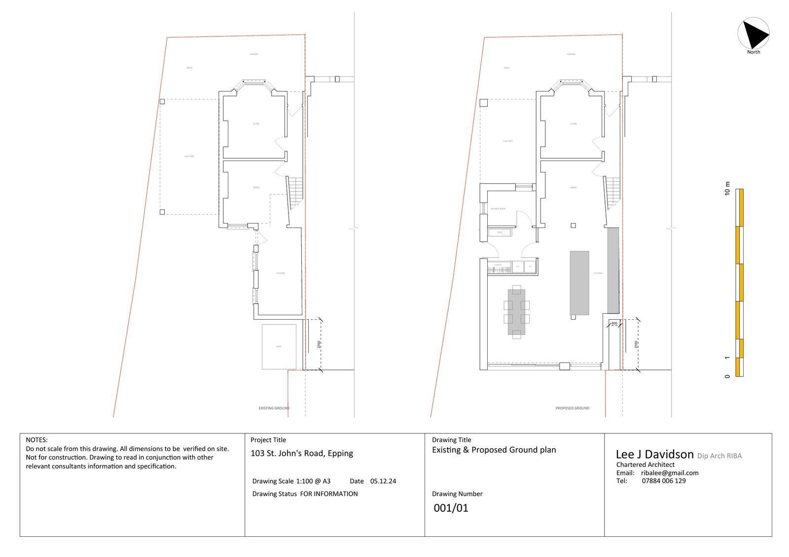
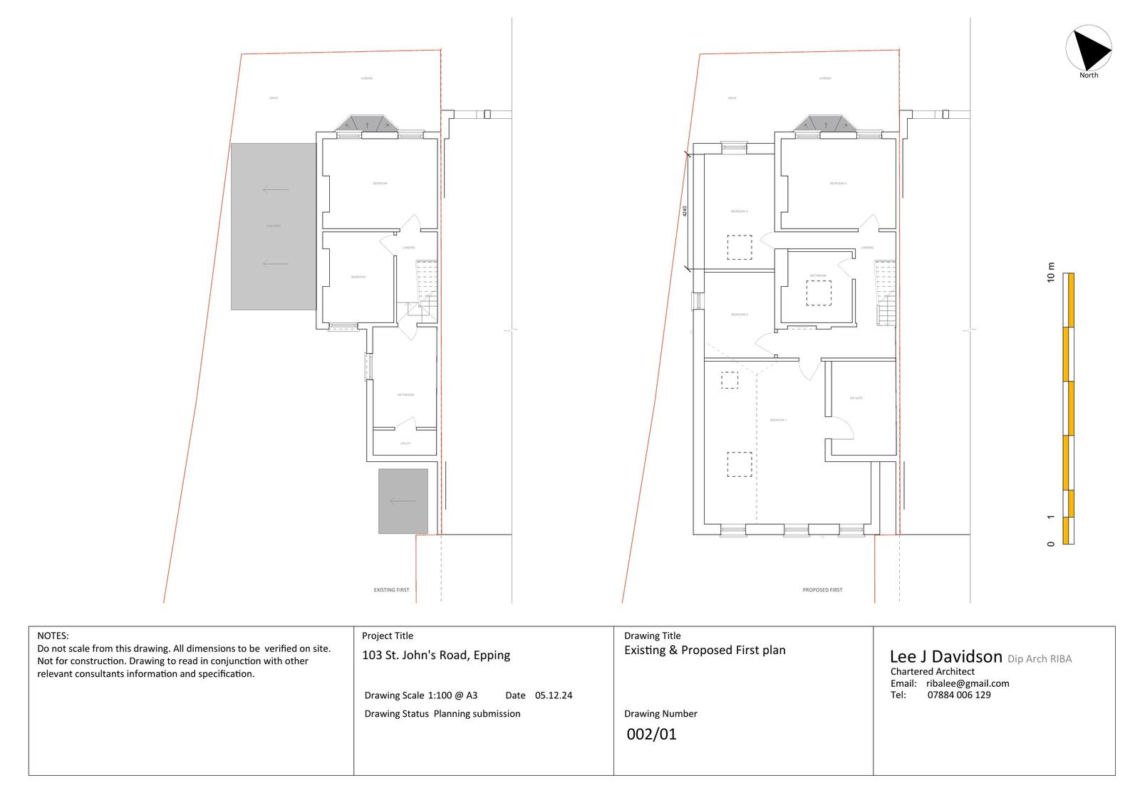
Application Reference EPF/2000/24 Site Address 103, St Johns Road, Epping, CM16 5DW Proposal Removal of existing car port, erection of 2 storey side and rear extension incorporating new car port. Received Date 02/10/2024 Application Status Decision Made Valid Date 11/12/2024

Documents

Uncategorised
Archived · Original link
Uncategorised
Archived · Original link
Uncategorised
Archived · Original link
Uncategorised
Archived · Original link
Uncategorised
Archived · Original link
Uncategorised
Archived · Original link
Uncategorised
Archived · Original link
Uncategorised
Archived · Original link
Uncategorised
Archived · Original link
Uncategorised
Archived · Original link
Uncategorised
Archived · Original link
Uncategorised
Archived · Original link
Uncategorised
Archived · Original link
Uncategorised
Archived · Original link

Have your say

Your comment matters. Councils must consider every representation that raises material planning considerations.

Write a comment