← Epping Forest District Council

Status

Pending House extension
Received
Not recorded
New homes
0

Full proposal

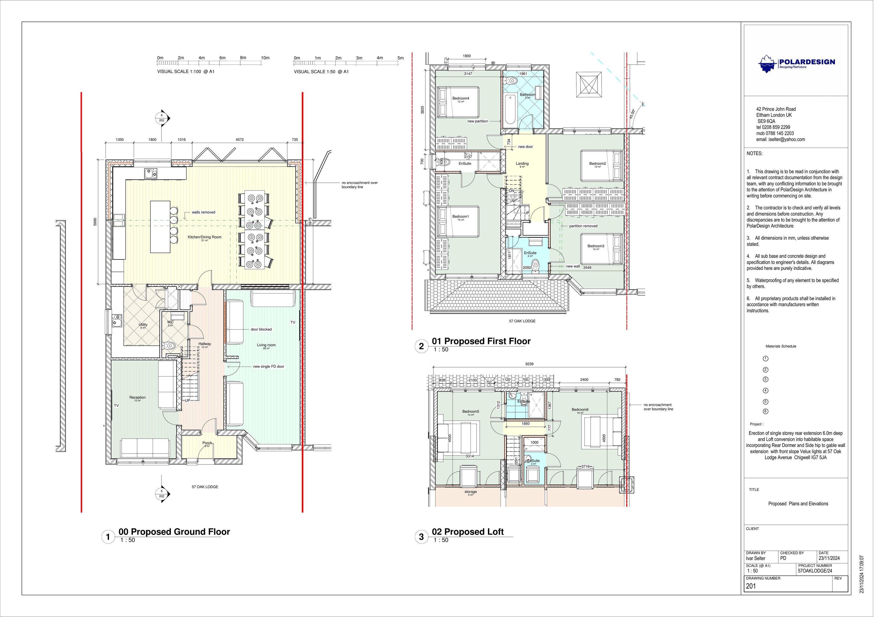
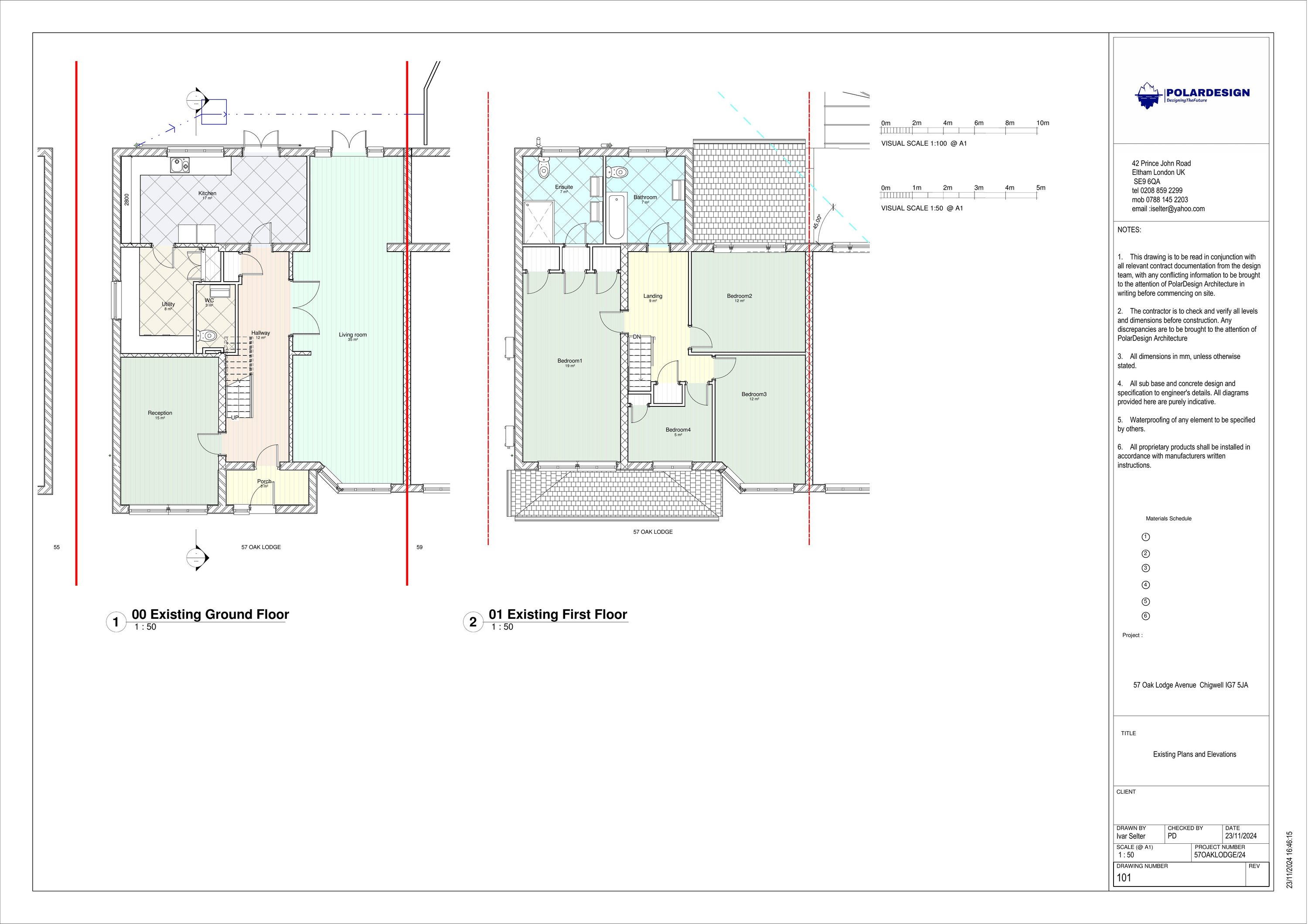
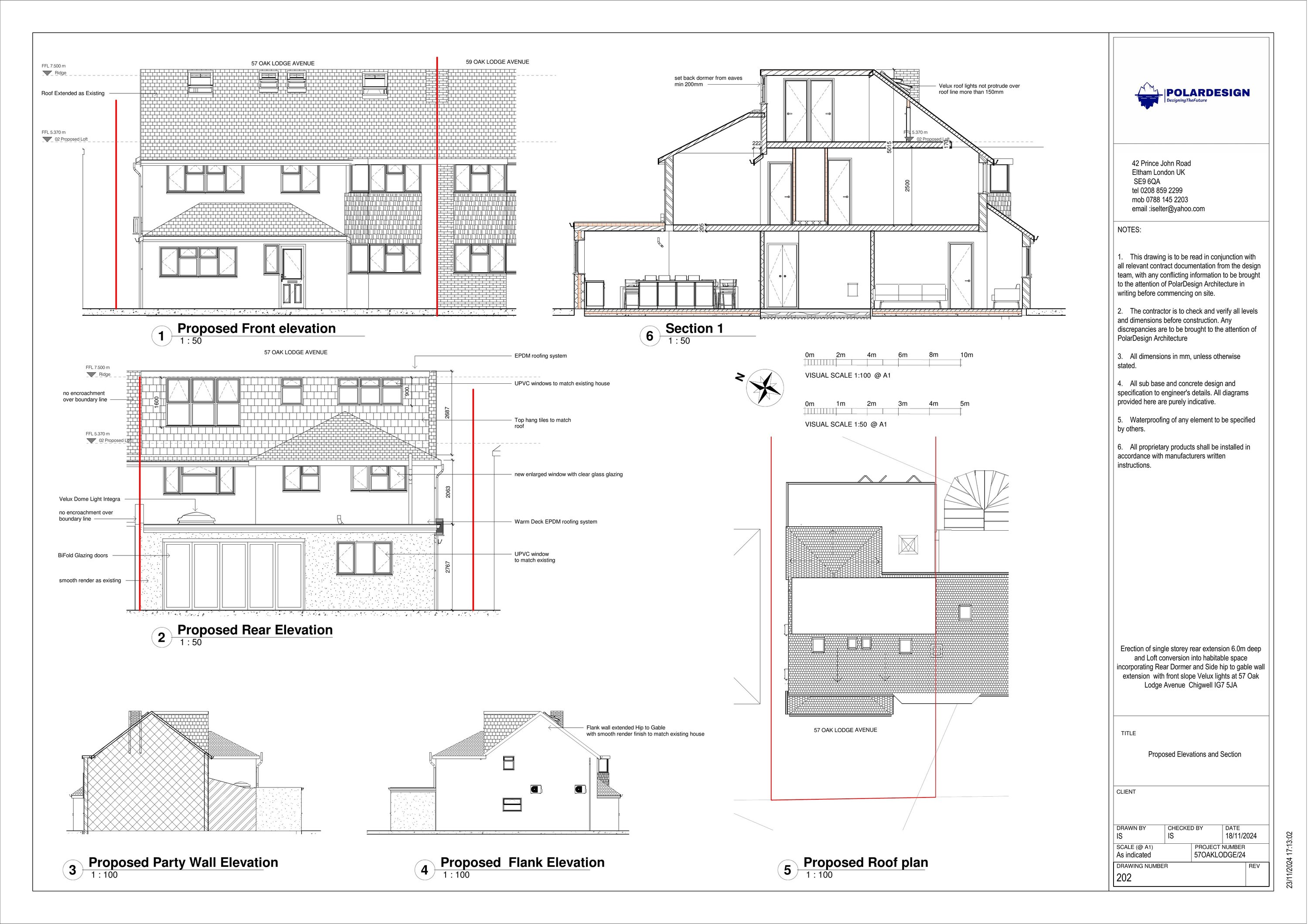
Application Reference EPF/2370/24 Site Address 57, Oak Lodge Avenue, Chigwell, IG7 5JA Proposal Erection of single storey rear extension 6.0m deep and Loft conversion into habitable space incorporating Rear Dormer and Side hip to gable wall extension with front slope Velux lights. Received Date 25/11/2024 Application Status Decision Made Valid Date 27/11/2024

Documents

Uncategorised
Archived · Original link
Uncategorised
Archived · Original link
Uncategorised
Archived · Original link
Uncategorised
Archived · Original link
Uncategorised
Archived · Original link
Uncategorised
Archived · Original link
Uncategorised
Archived · Original link
Uncategorised
Archived · Original link
Uncategorised
Archived · Original link
Uncategorised
Archived · Original link
Uncategorised
Archived · Original link
Uncategorised
Archived · Original link

Have your say

Your comment matters. Councils must consider every representation that raises material planning considerations.

Write a comment