← Epping Forest District Council

Status

Pending House extension
Received
Not recorded
New homes
0

Full proposal

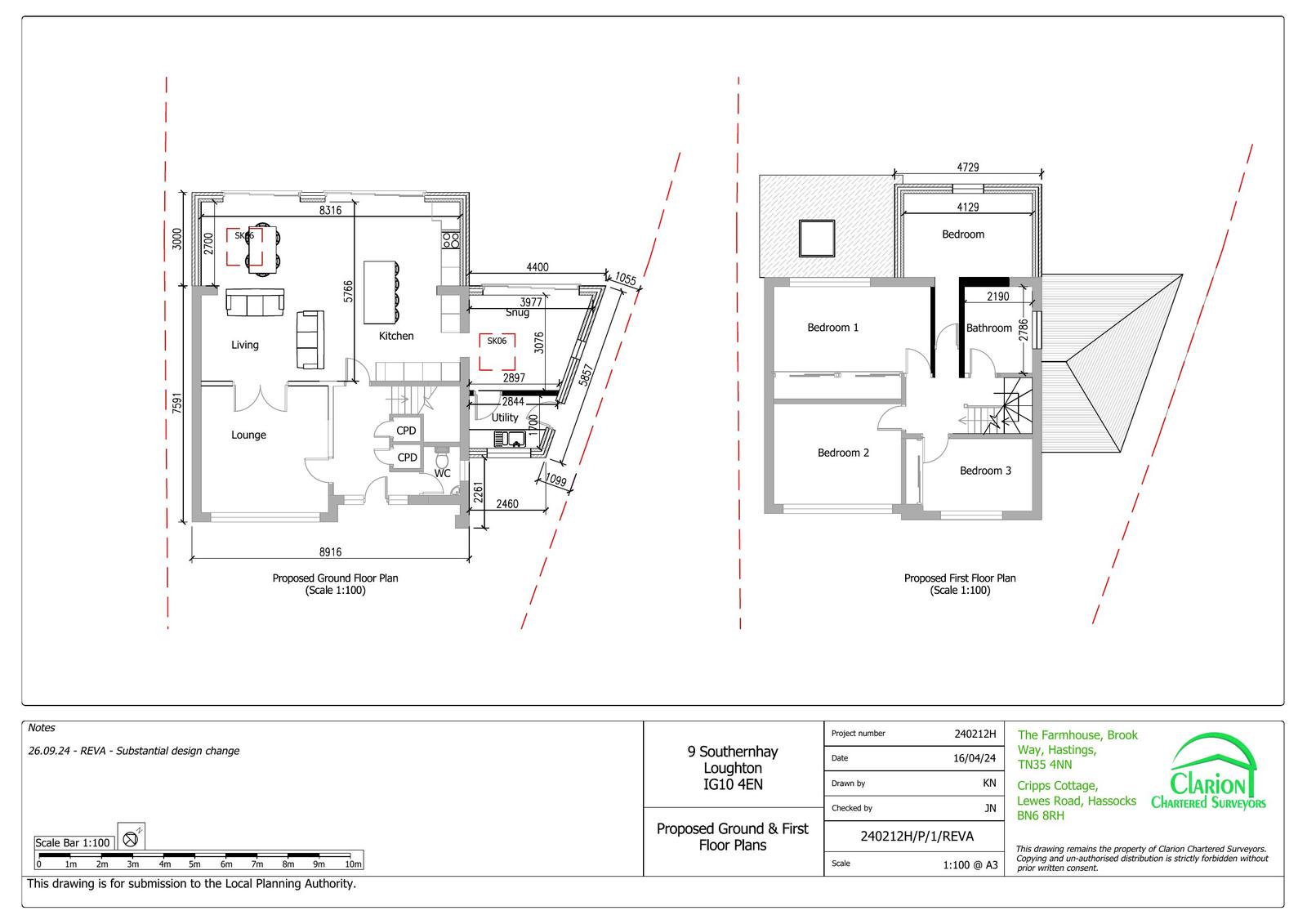
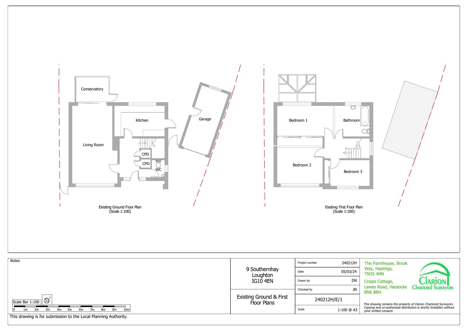
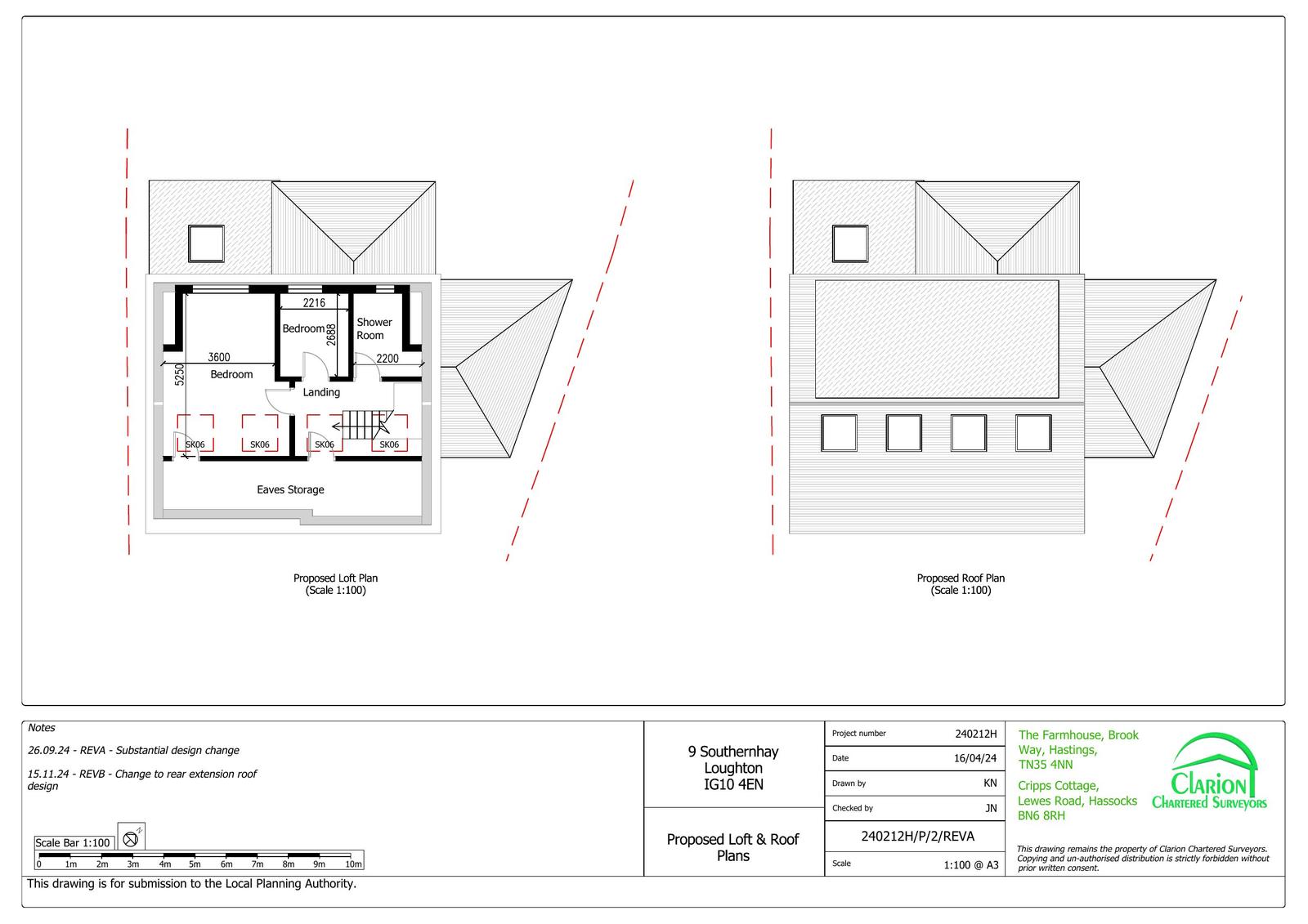
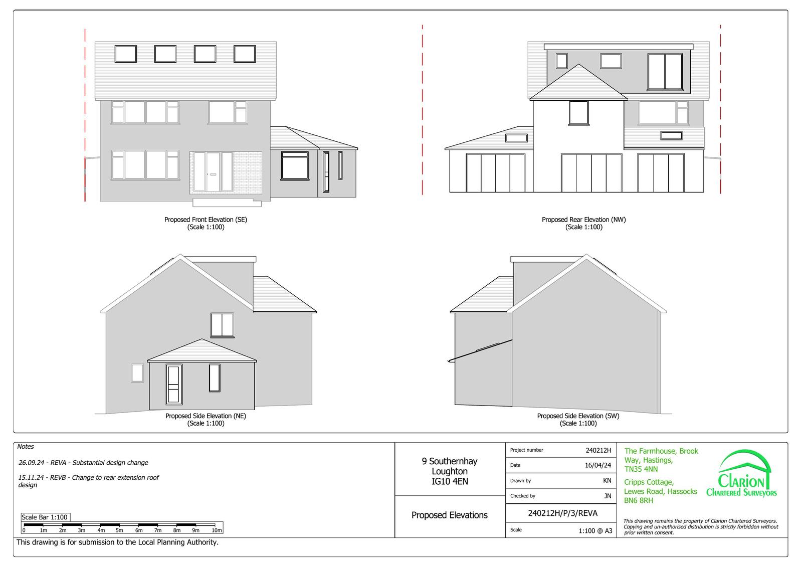
Application Reference EPF/2403/24 Site Address 9, Southernhay, Loughton, IG10 4EN Proposal Certificate of lawful development for proposed single storey side extension and part single, part two storey, rear extension and loft conversion with dormer roof. Received Date 28/11/2024 Application Status Decision Made Valid Date 02/12/2024

Documents

Uncategorised
Archived · Original link
Uncategorised
Archived · Original link
Uncategorised
Archived · Original link
Uncategorised
Archived · Original link
Uncategorised
Archived · Original link
Uncategorised
Archived · Original link
Uncategorised
Archived · Original link
Uncategorised
Archived · Original link
Uncategorised
Archived · Original link
Uncategorised
Archived · Original link
Uncategorised
Archived · Original link
Uncategorised
Archived · Original link
Uncategorised
Archived · Original link

Have your say

Your comment matters. Councils must consider every representation that raises material planning considerations.

Write a comment