← Epping Forest District Council

Status

Pending Change of use
Received
Not recorded
New homes
5

Full proposal

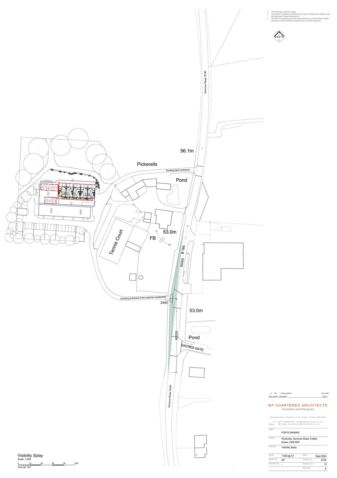
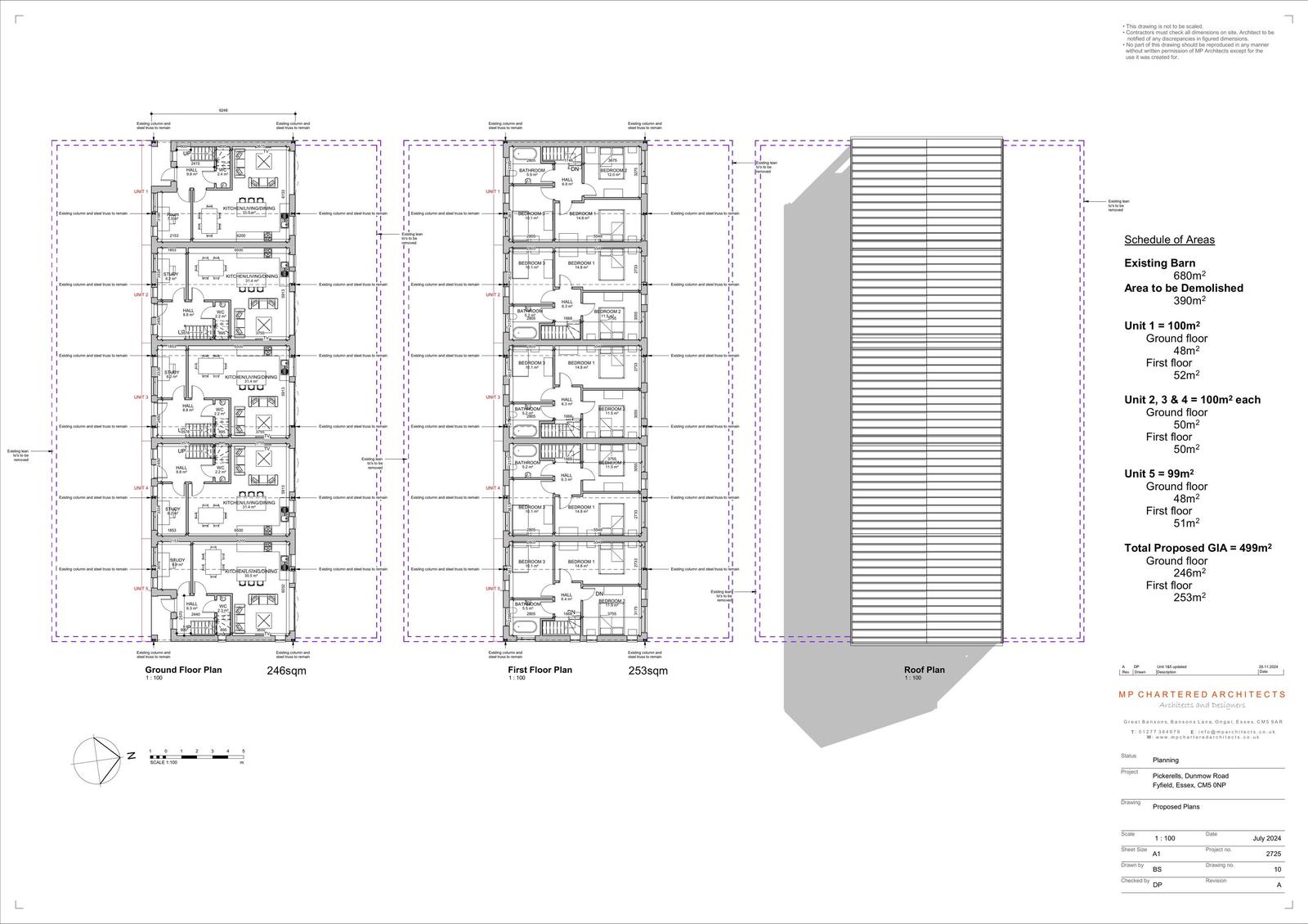
Application Reference EPF/2433/24 Site Address Pickerells Farm, Dunmow Road, Fyfield, Ongar, CM5 0NP Proposal Prior approval for conversion of Agricultural Building to 5 dwellings. Received Date 03/12/2024 Application Status Decision Made Valid Date 03/12/2024

Documents

Uncategorised
Archived · Original link
Uncategorised
Archived · Original link
Uncategorised
Archived · Original link
Uncategorised
Archived · Original link
Uncategorised
Archived · Original link
Uncategorised
Archived · Original link
Uncategorised
Archived · Original link
Uncategorised
Archived · Original link
Uncategorised
Archived · Original link
Uncategorised
Archived · Original link
Uncategorised
Archived · Original link
Uncategorised
Archived · Original link
Uncategorised
Archived · Original link
Uncategorised
Archived · Original link
Uncategorised
Archived · Original link
Uncategorised
Archived · Original link
Uncategorised
Archived · Original link
Uncategorised
Archived · Original link
Uncategorised
Archived · Original link
Uncategorised
Archived · Original link

Have your say

Your comment matters. Councils must consider every representation that raises material planning considerations.

Write a comment