← Epping Forest District Council

Status

Pending Demolition
Received
Not recorded
New homes
0

Full proposal

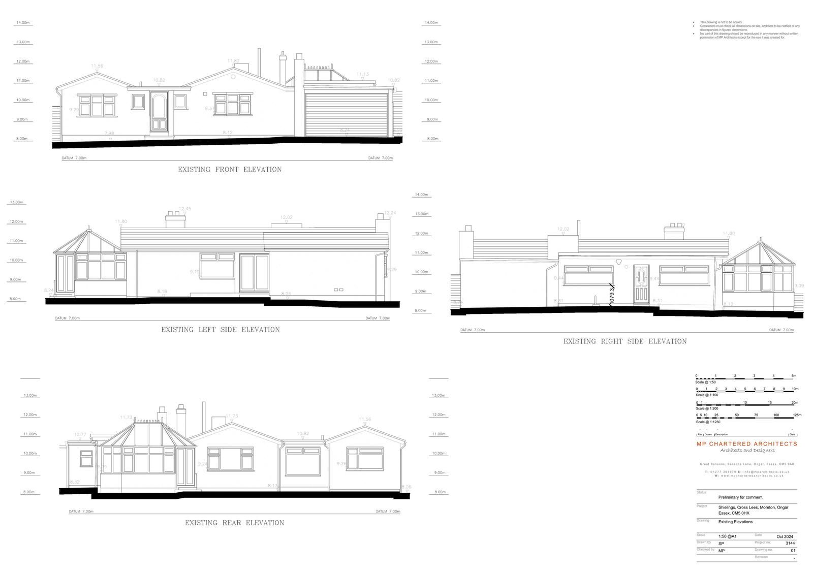
Application Reference EPF/2463/24 Site Address Shielings, Cross Lees Lane, Moreton, Ongar, CM5 0HX Proposal To demolish an existing bungalow and replace it with a new bungalow. Received Date 06/12/2024 Application Status Decision Made Valid Date 06/12/2024

Documents

Uncategorised
Archived · Original link
Uncategorised
Archived · Original link
Uncategorised
Archived · Original link
Uncategorised
Archived · Original link
Uncategorised
Archived · Original link
Uncategorised
Archived · Original link
Uncategorised
Archived · Original link
Uncategorised
Archived · Original link
Uncategorised
Archived · Original link
Uncategorised
Archived · Original link
Uncategorised
Archived · Original link
Uncategorised
Archived · Original link
Uncategorised
Archived · Original link
Uncategorised
Archived · Original link
Uncategorised
Archived · Original link
Uncategorised
Archived · Original link
Uncategorised
Archived · Original link
Uncategorised
Archived · Original link
Uncategorised
Archived · Original link
Uncategorised
Archived · Original link

Have your say

Your comment matters. Councils must consider every representation that raises material planning considerations.

Write a comment