← Epping Forest District Council

Status

Pending Change of use
Received
Not recorded
New homes
0

Full proposal

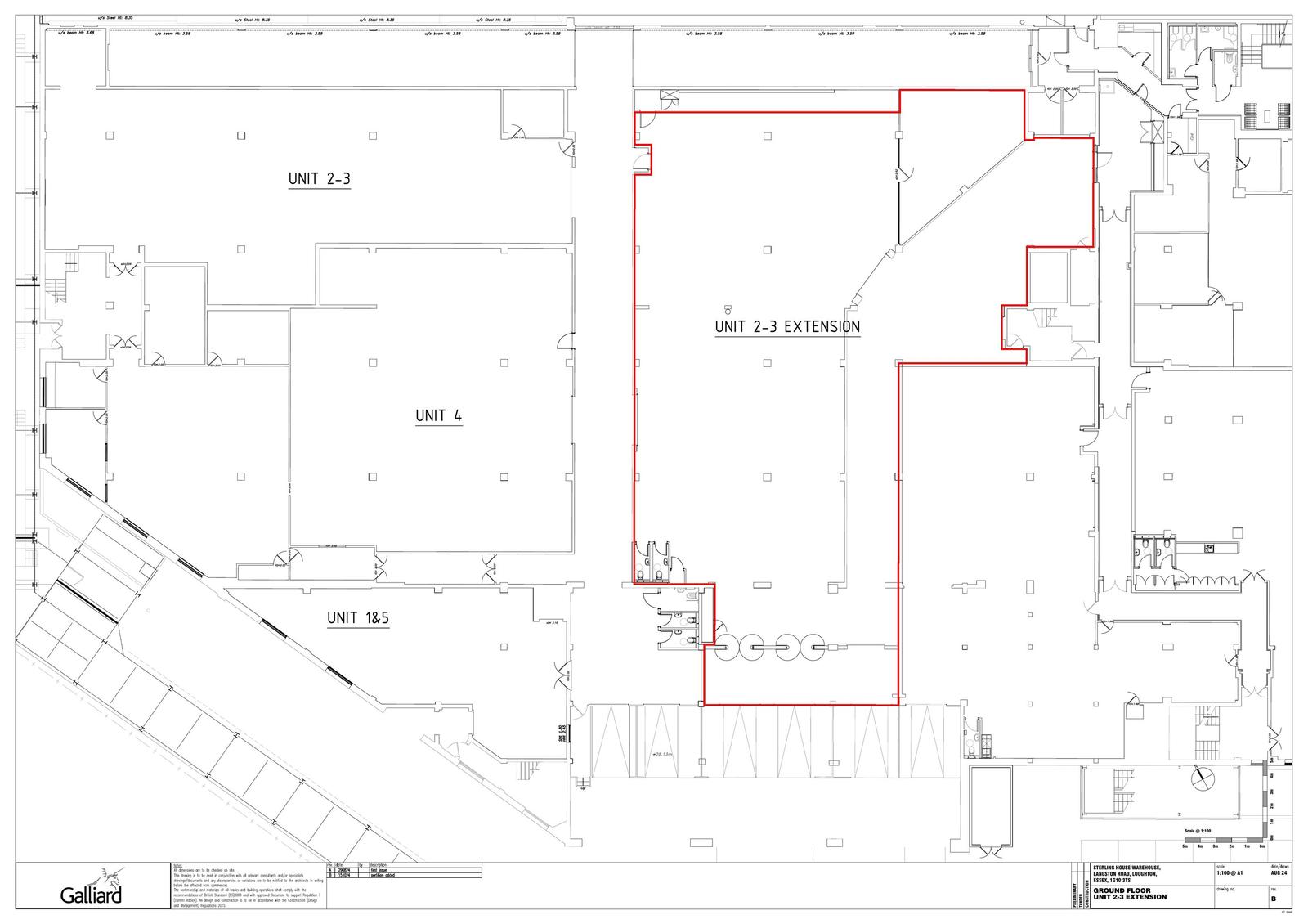
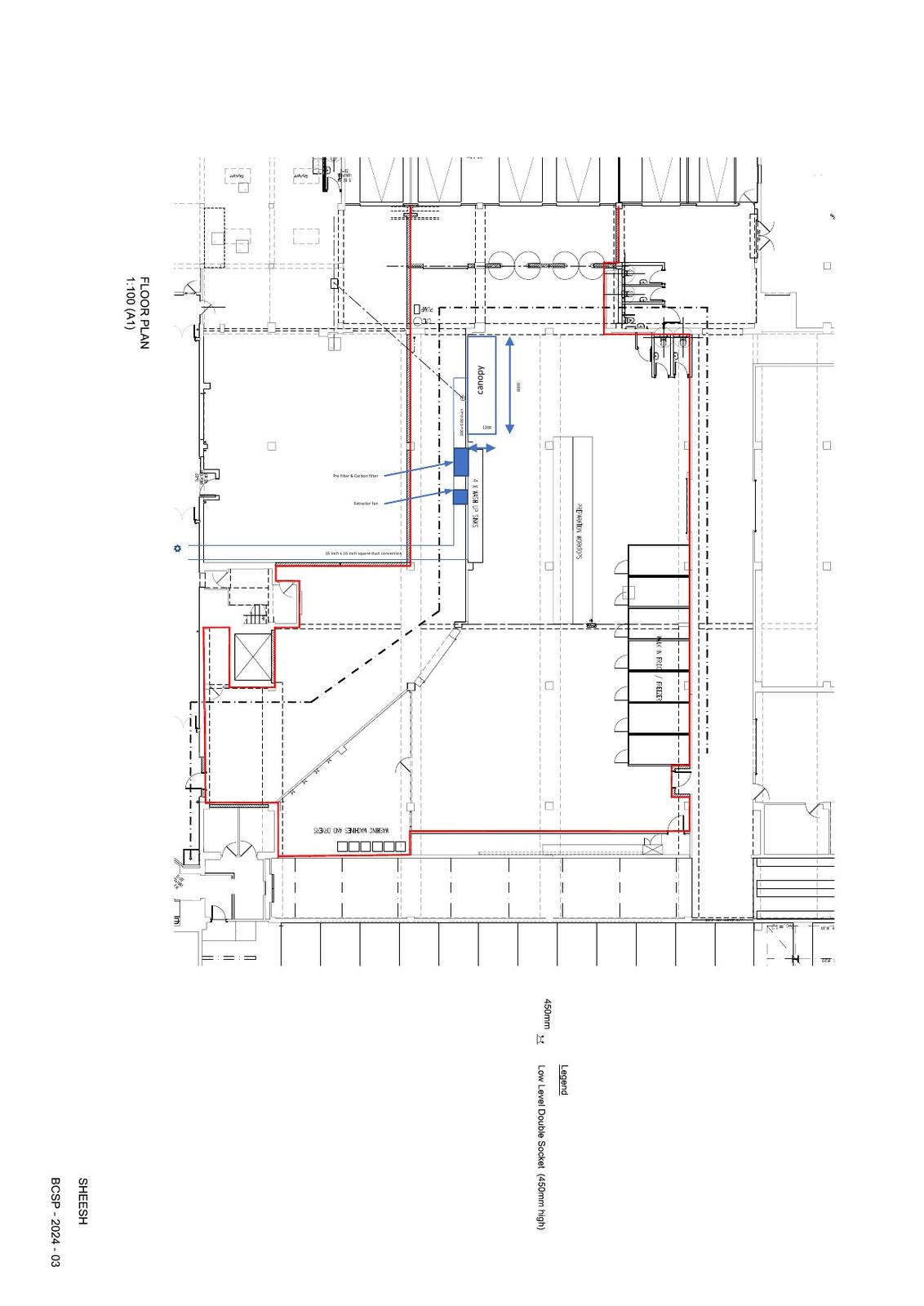
Application Reference EPF/2467/24 Site Address Sterling House, Langston Road, Loughton, IG10 3TS Proposal Extension of pre existing prep kitchen area (Previously received change of use EPF/1629/21) New extended area also requires change of use of from Storage and Distribution (B8 Use Class) to General Industry (B2 Use Class). Received Date 06/12/2024 Application Status Decision Made Valid Date 06/12/2024

Documents

Uncategorised
Archived · Original link
Uncategorised
Archived · Original link
Uncategorised
Archived · Original link
Uncategorised
Archived · Original link
Uncategorised
Archived · Original link
Uncategorised
Archived · Original link
Uncategorised
Archived · Original link
Uncategorised
Archived · Original link
Uncategorised
Archived · Original link
Uncategorised
Archived · Original link
Uncategorised
Archived · Original link
Uncategorised
Archived · Original link
Uncategorised
Archived · Original link
Uncategorised
Archived · Original link
Uncategorised
Archived · Original link
Uncategorised
Archived · Original link
Uncategorised
Archived · Original link
Uncategorised
Archived · Original link
Uncategorised
Archived · Original link
Uncategorised
Archived · Original link

Have your say

Your comment matters. Councils must consider every representation that raises material planning considerations.

Write a comment