← Epping Forest District Council

Status

Pending House extension
Received
Not recorded
New homes
0

Full proposal

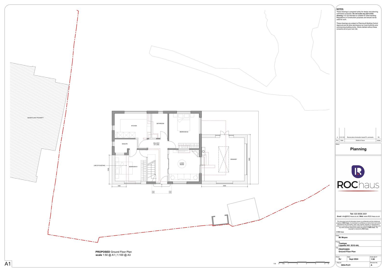
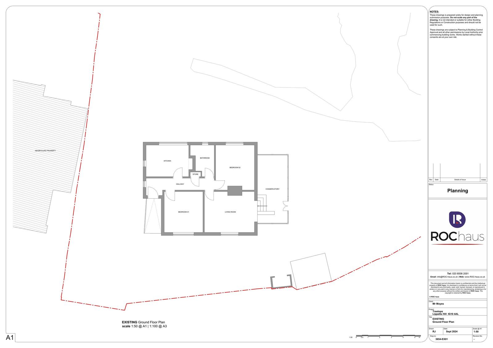
Application Reference EPF/2488/24 Site Address Tree Tops, Lippitts Hill, Loughton, IG10 4AL Proposal Proposed single-storey side extension with a green flat roof, front side infill extension, and front main entrance with a covered porch. Alteration of fenestrations. Received Date 11/12/2024 Application Status Decision Made Valid Date 11/12/2024

Documents

Uncategorised
Archived · Original link
Uncategorised
Archived · Original link
Uncategorised
Archived · Original link
Uncategorised
Archived · Original link
Uncategorised
Archived · Original link
Uncategorised
Archived · Original link
Uncategorised
Archived · Original link
Uncategorised
Archived · Original link
Uncategorised
Archived · Original link

Have your say

Your comment matters. Councils must consider every representation that raises material planning considerations.

Write a comment