← Epping Forest District Council

Status

Pending Change of use
Received
Not recorded
New homes
6

Full proposal

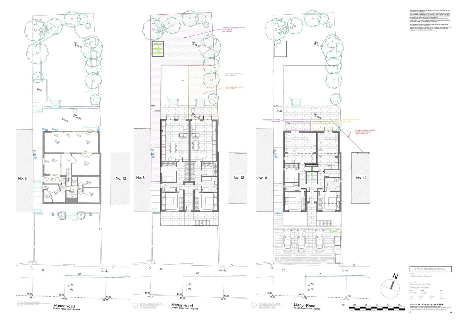
Application Reference EPF/2514/24 Site Address 10, Manor Road, Chigwell, IG7 5PD Proposal Change of use of single dwellinghouse to 6 self-contained flats together with alterations and extensions, private and communal amenity space. Received Date 13/12/2024 Application Status Decision Made Valid Date 13/1/2025

Documents

Uncategorised
Archived · Original link
Uncategorised
Archived · Original link
Uncategorised
Archived · Original link
Uncategorised
Archived · Original link
Uncategorised
Archived · Original link
Uncategorised
Archived · Original link
Uncategorised
Archived · Original link
Uncategorised
Archived · Original link
Uncategorised
Archived · Original link
Uncategorised
Archived · Original link
Uncategorised
Archived · Original link
Uncategorised
Archived · Original link
Uncategorised
Archived · Original link
Uncategorised
Archived · Original link
Uncategorised
Archived · Original link
Uncategorised
Archived · Original link
Uncategorised
Archived · Original link
Uncategorised
Archived · Original link
Uncategorised
Archived · Original link
Uncategorised
Archived · Original link

Have your say

Your comment matters. Councils must consider every representation that raises material planning considerations.

Write a comment