← Epping Forest District Council

Status

Pending House extension
Received
Not recorded
New homes
0

Full proposal

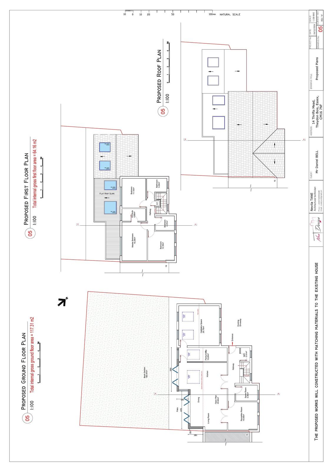
Application Reference EPF/2592/24 Site Address 14, Thrifts Mead, Theydon Bois, Epping, CM16 7NF Proposal Erection of a rear extension including conversion of the existing garage into a habitable room. Received Date 30/12/2024 Application Status Decision Made Valid Date 06/1/2025

Documents

Uncategorised
Archived · Original link
Uncategorised
Archived · Original link
Uncategorised
Archived · Original link
Uncategorised
Archived · Original link
Uncategorised
Archived · Original link
Uncategorised
Archived · Original link
Uncategorised
Archived · Original link
Uncategorised
Archived · Original link
Uncategorised
Archived · Original link
Uncategorised
Archived · Original link
Uncategorised
Archived · Original link
Uncategorised
Archived · Original link
Uncategorised
Archived · Original link
Uncategorised
Archived · Original link
Uncategorised
Archived · Original link
Uncategorised
Archived · Original link

Have your say

Your comment matters. Councils must consider every representation that raises material planning considerations.

Write a comment