← Back to Epsom & Ewell Borough Council
Application
25/00404/FUL
Epsom & Ewell Borough Council · IDOX
Status
Awaiting decision
New housing
Received
n/a
New dwellings
9
What you can do
Take Action
Make your voice heard. Authorities need to hear from people who support new homes.
Summary
Four-storey mixed-use building with two commercial units and nine residential units.
Full Proposal
Construction of a 4 storey mixed use development accommodating two ground floor commercial units (Class E) and 9 residential units (Class C3) with associated refuse storage, cycle parking and landscaping following part demolition of 7 Station Approach with alterations to the roof form and demolition of the existing single storey rear extension.
Detail pages
- View live detail on council site
- No archived detail page available.
Documents
ACKN
Correspondence
Not downloaded
· Council link
Affordable Housing Viability Report
Supporting Information
Not downloaded
· Council link
Application Form - without Personal data
Application Form
Not downloaded
· Council link
Biodiversity Net Gain Report
Supporting Information
Not downloaded
· Council link
CIL Additional Information Form
Supporting Information
Not downloaded
· Council link
Contaminated Land Officer comments
Consultation response
Not downloaded
· Council link
Daylight, Sunlight & Overshadowing Assessment
Supporting Information
Not downloaded
· Council link
Ecological Appraisal Report
Supporting Information
Not downloaded
· Council link
Ecology Officer comments
Consultation response
Not downloaded
· Council link
Environment Agency comments
Consultation response
Not downloaded
· Council link
Existing Elevations and Sections
Plans
Not downloaded
· Council link
Existing Ground and First Floor Plans
Plans
Not downloaded
· Council link
Existing Second Floor and Roof Plan
Plans
Not downloaded
· Council link
Existing Site Plan
Plans
Archived copy
· Council link
Fire Safety comments
Consultation response
Not downloaded
· Council link
GUAR_E
Planning Notice
Not downloaded
· Council link
HAST_E
Site Notice
Not downloaded
· Council link
Highways Officer comments
Consultation response
Not downloaded
· Council link
Highways Officer comments
Consultation response
Not downloaded
· Council link
Highways Officer comments
Consultation response
Not downloaded
· Council link
Location Plan
Plans
Not downloaded
· Council link
Neighbour Consultation Letter
Correspondence
Not downloaded
· Council link
NEIGHLIST
Neighbour Notification List
Not downloaded
· Council link
Network Rail comments
Consultation response
Not downloaded
· Council link
Ordnance Surveys (1 of 6)
Supporting Information
Not downloaded
· Council link
Ordnance Surveys (2 of 6)
Supporting Information
Not downloaded
· Council link
Ordnance Surveys (3 of 6)
Supporting Information
Not downloaded
· Council link
Ordnance Surveys (4 of 6)
Supporting Information
Not downloaded
· Council link
Ordnance Surveys (5 of 6)
Supporting Information
Not downloaded
· Council link
Ordnance Surveys (6 of 6)
Supporting Information
Not downloaded
· Council link
Planning Notes
Supporting Information
Not downloaded
· Council link
Planning, Design & Access Statement
Supporting Information
Not downloaded
· Council link
Pre-Site Animation
Photo
Not downloaded
· Council link
Preliminary Risk Assessment
Supporting Information
Not downloaded
· Council link
Proposed East Elevation
Plans
Not downloaded
· Council link
Proposed East Elevation
Plans
Not downloaded
· Council link
Proposed First Floor Plan
Plans
Not downloaded
· Council link
Proposed Green Roof Details
Plans
Not downloaded
· Council link
Proposed Landscape Scheme
Plans
Not downloaded
· Council link
Proposed Long Section
Plans
Not downloaded
· Council link
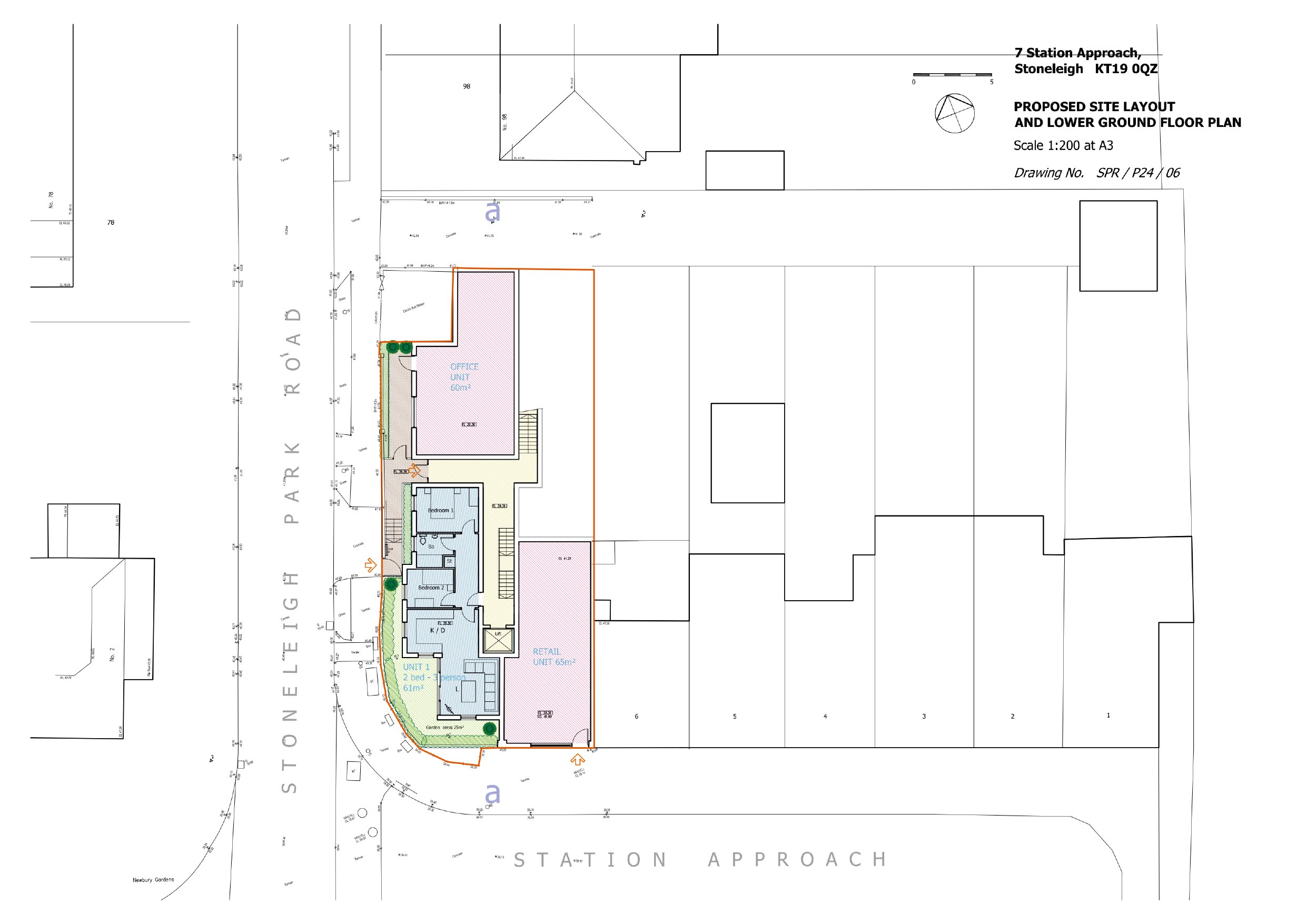
Proposed Lower Ground Floor Plan
Plans
Not downloaded
· Council link
Proposed North Elevation
Plans
Not downloaded
· Council link
Proposed North Elevation
Plans
Not downloaded
· Council link
Proposed Roof Plan
Plans
Not downloaded
· Council link
Proposed Second Floor Plan
Plans
Not downloaded
· Council link
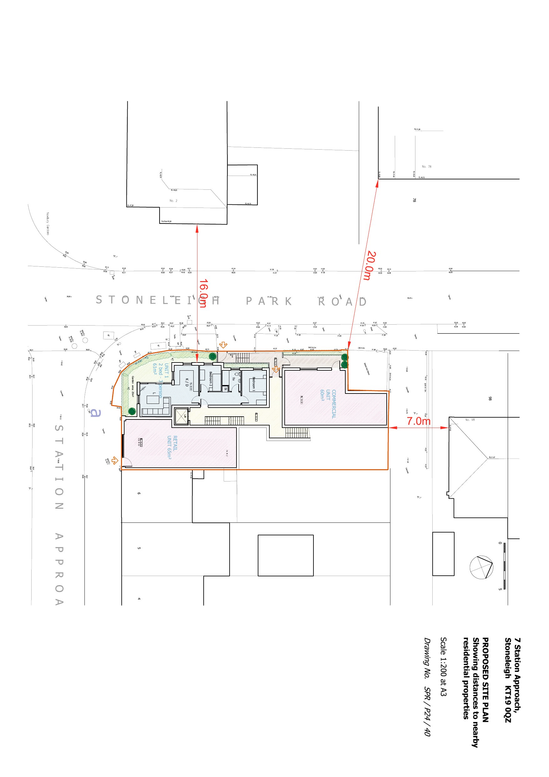
Proposed Site Plan
Plans
Archived copy
· Council link
Archived copy
· Council link
Proposed South Elevation
Plans
Not downloaded
· Council link
Proposed South Elevation
Plans
Not downloaded
· Council link
Proposed Streetscene Elevations
Plans
Not downloaded
· Council link
Proposed Upper Ground Floor Plan
Plans
Not downloaded
· Council link
Proposed West Elevation
Plans
Not downloaded
· Council link
Proposed West Elevation
Plans
Not downloaded
· Council link
Residential Travel Plan Statement
Supporting Information
Not downloaded
· Council link
SANF Consultation response
Consultation response
Not downloaded
· Council link
Site Animation
Photo
Not downloaded
· Council link
SuDS Officer comments
Consultation response
Not downloaded
· Council link
Surface Water Drainage Strategy
Supporting Information
Not downloaded
· Council link
Sustainability and Energy Statement
Supporting Information
Not downloaded
· Council link
Thames Water comments
Consultation response
Not downloaded
· Council link
Transport Statement
Supporting Information
Not downloaded
· Council link
Waste Officer comments
Consultation response
Not downloaded
· Council link