← Epsom & Ewell Borough Council

Status

Unknown Change of use
Received
Not recorded
New homes
7

Summary

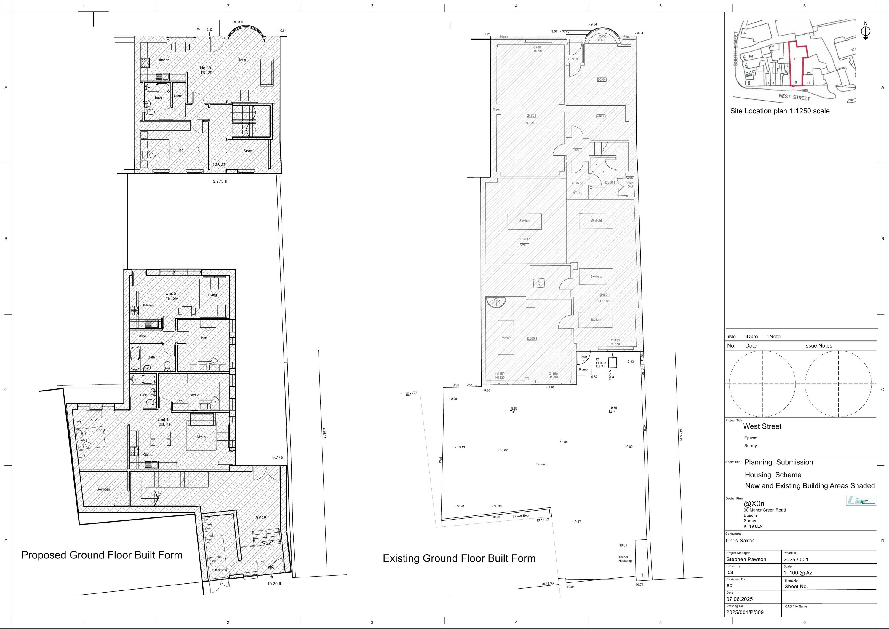
Change of use to residential and rear extension to provide seven residential units.

Full proposal

Change of use from Sui Generis (Hair and Beauty Salon) to 3 residential units. 2-3 storey detached rear extension to accommodate 7 residential units following demolition of existing single storey extension. Associated external and internal alterations.

Documents

ACKN
Correspondence
Not yet archived · Original link
Application Form - without Personal data
Application Form
Not yet archived · Original link
CIL Additional Information Form
Supporting Information
Not yet archived · Original link
CIL Assumption of Liability Form
Supporting Information
Not yet archived · Original link
Design and Access with Heritage
Supporting Information
Not yet archived · Original link
Ecology Officer comments
Consultation response
Not yet archived · Original link
GUAR_E
Planning Notice
Not yet archived · Original link
Highways Officer comments
Consultation response
Not yet archived · Original link
Highways Officer comments
Consultation response
Not yet archived · Original link
INVAL
Correspondence
Not yet archived · Original link
LBCA_E
Site Notice
Not yet archived · Original link
Marketing Report
Supporting Information
Not yet archived · Original link
Neighbour Consultation Letter
Correspondence
Not yet archived · Original link
NEIGHLIST
Neighbour Notification List
Not yet archived · Original link
Thames Water comments
Consultation response
Not yet archived · Original link
Waste Officer comments
Consultation response
Not yet archived · Original link

Have your say

Your comment matters. Councils must consider every representation that raises material planning considerations.

Write a comment