← Epsom & Ewell Borough Council
26/00126/FUL
Epsom & Ewell Borough Council
Status
Awaiting decision
New housing
Received
Not recorded
New homes
1
Full proposal
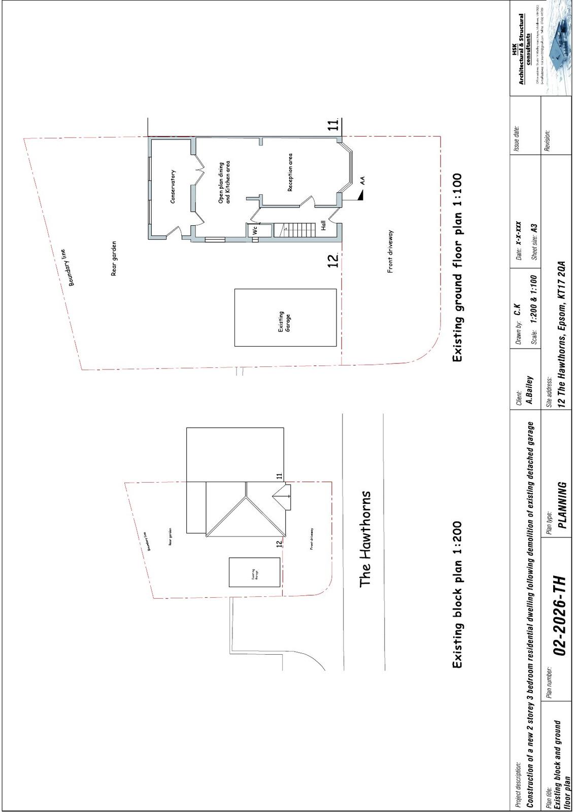
Construction of a new 2 storey 3 bedroom residential dwelling following demolition of existing detached garage.
Documents
Have your say
Your comment matters. Councils must consider every representation that raises material planning considerations.