← Epsom & Ewell Borough Council
26/00254/FLH
Epsom & Ewell Borough Council
Status
Awaiting decision
House extension
Received
Not recorded
New homes
0
Full proposal
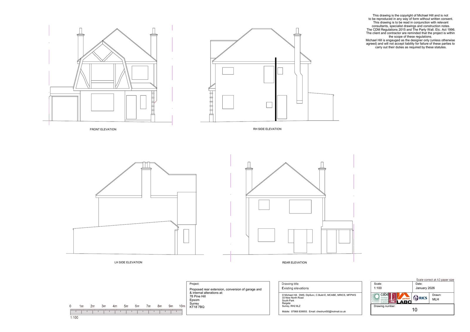
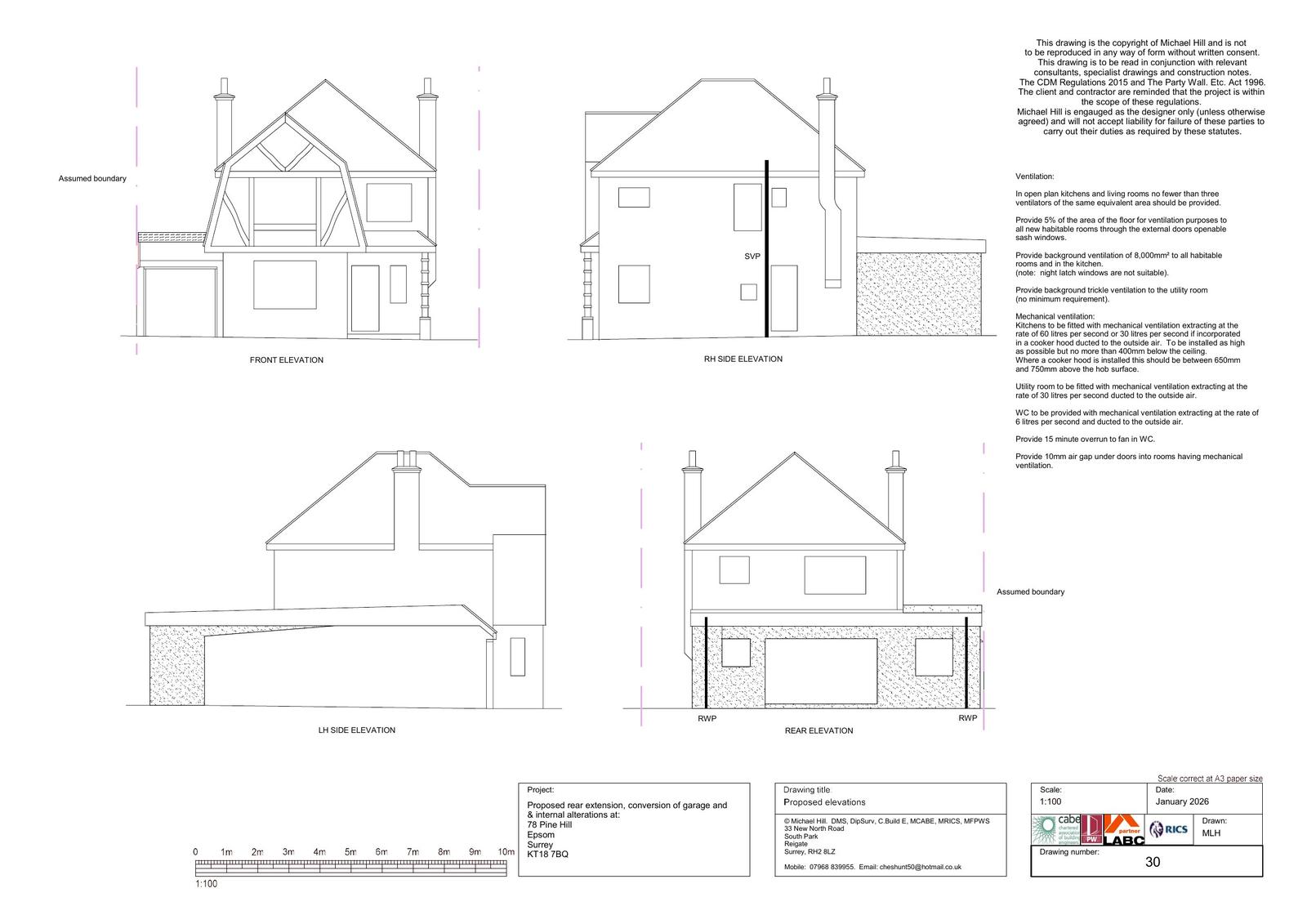
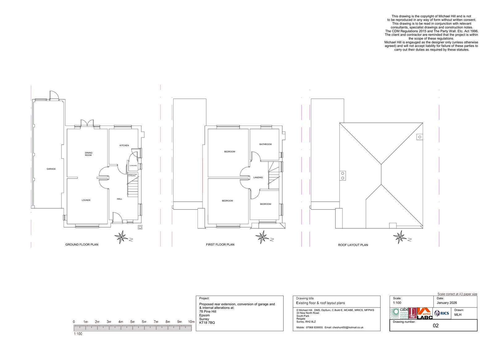
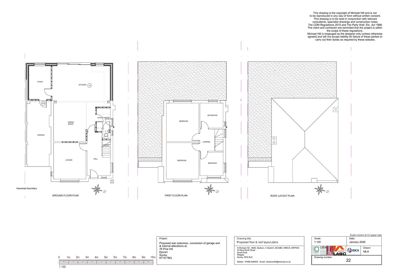
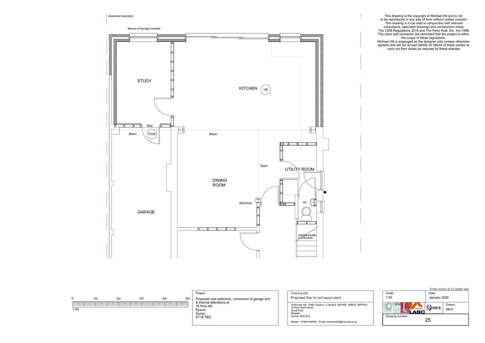
Single storey rear extension following part conversion and new roof to the existing garage
Documents
Have your say
Your comment matters. Councils must consider every representation that raises material planning considerations.